Let's take an overview
Ad reference : 3292ABBVIQ
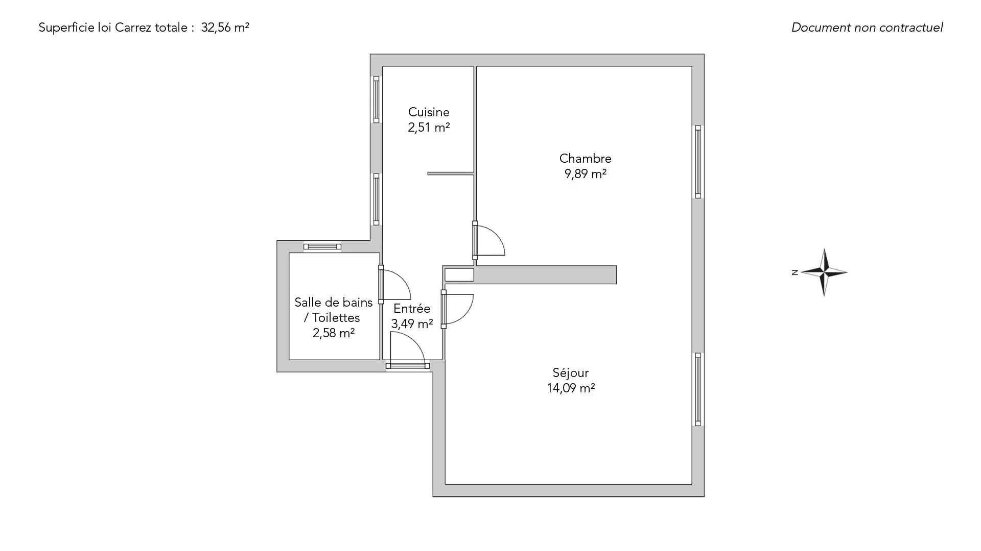
Ideally located near Rue des Abbesses and just steps from all shops, this charming 32.56sqm (Carrez Law) apartment is on the fifth floor of a well-maintained old building.
It features a south-facing living room, a bedroom, a fully equipped kitchen, and a bathroom with a toilet.
This apartment boasts an excellent layout with no wasted space. It features classic features such as parquet floors and a fireplace. Enjoying absolute peace and quiet, this bright apartment will charm you with its location.
A cellar completes this property.
- Habitable : 350,47 Sq Ft
- 2 rooms
- 1 bedroom
- 1 bathroom
- Floor 5/6
- Orientation South
- To refresh
What seduced us
- Last floor
- Luminous
- Calm
- Cellar
We say more
Regulations & financial information
Information on the risks to which this property is exposed is available on the Géorisques website. : www.georisques.gouv.fr
| Diagnostics |
|---|
Final energy consumption : D - 204 kWh/m²/an.
Logement à consommation énergétique excessive : classe F
Estimated annual energy costs for standard use: between 1 120,00 € and 1 550,00 € /year (including subscription).
Average energy price indexed to 01/01/2023.
| Financial elements |
|---|
Property tax : 627,00 € /an
Interior & exterior details
| Room | Surface | Detail |
|---|---|---|
| 1x Cellar | Floor : -1 | |
| 1x Entrance | 37.57 Sq Ft |
Floor : 5th Coating : Parquet |
| 1x Stay | 151.66 Sq Ft |
Floor : 5th Exposure : South Coating : Parquet |
| 1x Kitchen | 27.02 Sq Ft |
Floor : 5th Coating : Floor tile |
| 1x Bedroom | 106.45 Sq Ft |
Floor : 5th Exposure : South Coating : Parquet |
| 1x Bathroom/toilet | 27.77 Sq Ft |
Floor : 5th Coating : Floor tile |
Services
Building & Co-ownership
| Building |
|---|
-
Built in : 1875
-
Number of floors : 6
| Co-ownership |
|---|
40 housing lots
Average annual amount of the share of current charges : 1 116 €
Procedure in progress : Non
Meet your agency
Simulator financing
Calculate the amount of the monthly payments on your home loan corresponding to the loan you wish to make.
FAI property price
400 000 €
€
per month
Do you have to sell to buy?
Our real estate consultants are at your disposal to estimate the value of your property. All our estimates are free of charge.
Estimate my propertyA living space to suit you
Junot takes you on a tour of the neighborhoods in which our agencies welcome you, and presents the specific features and good addresses.
Explore the neighborhoods









