Let's take an overview
Ad reference : 5733JASPEI
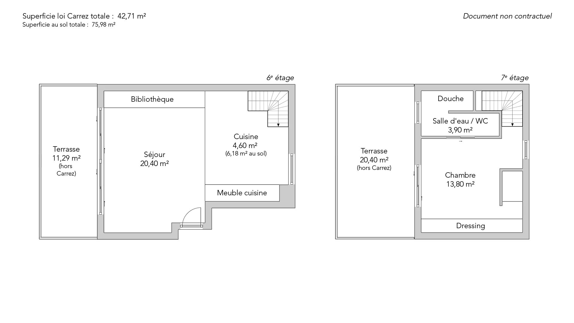
In the heart of the village of Auteuil, nestled on the top floors with elevator of a secure condominium with janitor, located in a private lane, this charming 42.71sqm Carrez two-bedroom apartment is spread over two levels, each benefiting from a south-facing terrace.
Bathed in light, the sixth floor features a living room with open kitchen opening onto an 11.29sqm terrace. The night space on the seventh floor comprises a large bedroom opening onto a vast 20.40sqm terrace, a shower room with toilet and a dressing room.
A cellar completes this property.
Parking available as an option.
- Habitable : 459,73 Sq Ft Total : 817,84 Sq Ft
- 2 rooms
- 1 bedroom
- 1 shower room
- Floor 6/7
- Orientation South, South West
- Excellent condition
What seduced us
- Balcony/Terrace
- Guardian
- Elevator
- Cellar
We say more
Regulations & financial information
Information on the risks to which this property is exposed is available on the Géorisques website. : www.georisques.gouv.fr
| Diagnostics |
|---|
Final energy consumption : F - 407 kWh/m²/an.
Logement à consommation énergétique excessive : classe F
Estimated annual energy costs for standard use: between 1 400,00 € and 1 910,00 € /year (including subscription).
Average energy price indexed to 01/01/2021.
| Financial elements |
|---|
Interior & exterior details
| Room | Surface | Detail |
|---|---|---|
| 1x Cellar | ||
| 1x Stay | 219.69 Sq Ft |
Floor : 6th Exposure : Sud, Sud-ouest |
| 1x Kitchen | 49.51 Sq Ft |
Floor : 6th Exposure : Nord, Nord-est |
| 1x Terrace | 121.52 Sq Ft |
Floor : 6th Exposure : Sud, Sud-ouest |
| 1x Bedroom | 148.54 Sq Ft |
Floor : 7th Exposure : Nord, Sud, Nord-est, Sud-ouest |
| 1x Shower room/toilet | 41.98 Sq Ft | Floor : 7th |
| 1x Terrace | 219.58 Sq Ft |
Floor : 7th Exposure : Sud, Sud-ouest |
Services
Building & Co-ownership
| Building |
|---|
-
Built in : 1850
-
Number of floors : 7
| Co-ownership |
|---|
Procedure in progress : Non
Meet your agency
Simulator financing
Calculate the amount of the monthly payments on your home loan corresponding to the loan you wish to make.
FAI property price
750 000 €
€
per month
Do you have to sell to buy?
Our real estate consultants are at your disposal to estimate the value of your property. All our estimates are free of charge.
Estimate my propertyA living space to suit you
Junot takes you on a tour of the neighborhoods in which our agencies welcome you, and presents the specific features and good addresses.
Explore the neighborhoods












