Let's take an overview
Ad reference : 771JFPLON
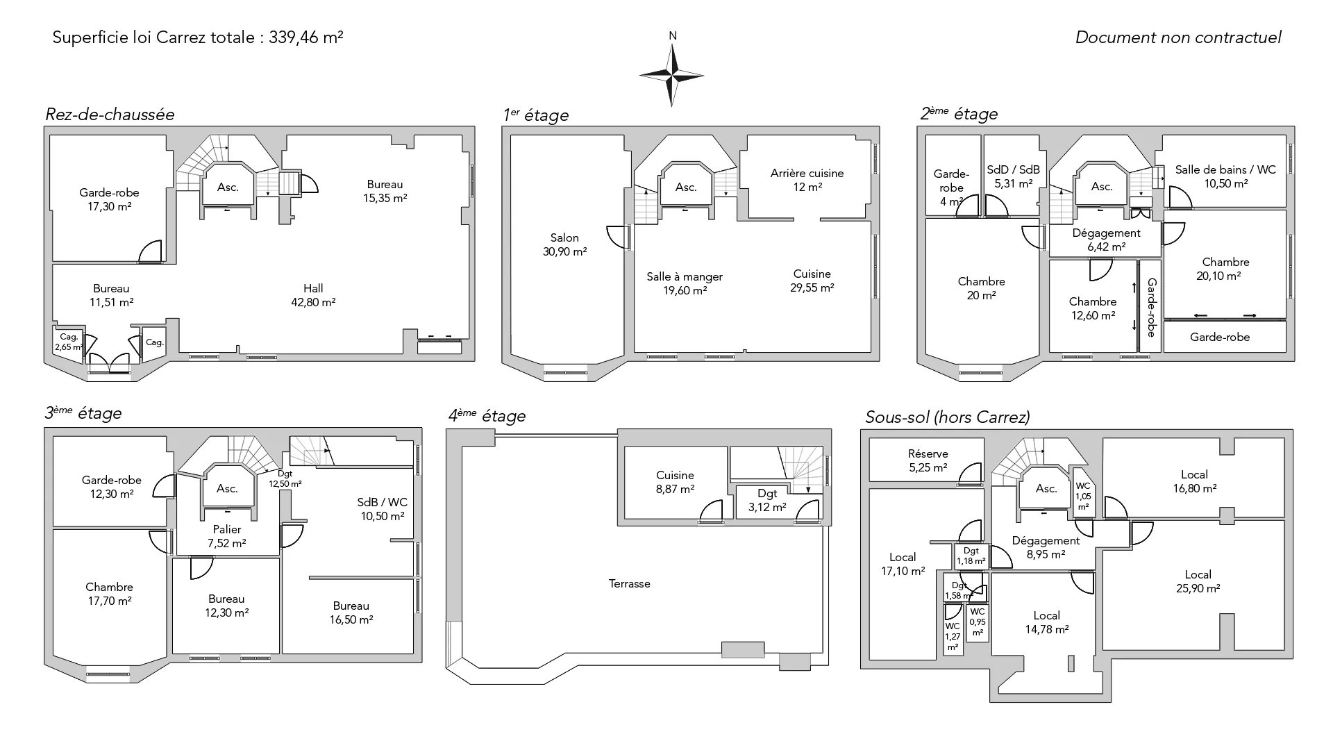
Magnificent private villa in a sought-after neighborhood near Place du Trocadero. The property comprises four levels with elevator and a 90sqm roof terrace. The ground floor comprises a reception/office, checkroom, dressing room and guest toilet. On the second floor: a beautiful south-facing living room, a large fitted kitchen, a dining room and a separate toilet. Second floor: three bedrooms, two shower rooms and separate toilet. The third floor comprises a master bedroom with en suite bathroom, dressing room and additional bedroom or office. At the very top is the south-facing roof terrace with its 9-meter-long summer kitchen. Finally, in the basement: two light-filled bedrooms and a shower room.
- Habitable : 4 789,94 Sq Ft
- 10 rooms
- 6 bedrooms
- 1 bathroom
- 3 shower rooms
- Orientation South
- Good condition
What seduced us
- Highly sought-after address
- Last floor
- Luminous
- Calm
- Elevator
- Open view
We say more
Regulations & financial information
Information on the risks to which this property is exposed is available on the Géorisques website. : www.georisques.gouv.fr
| Diagnostics |
|---|
| Financial elements |
|---|
Interior & exterior details
| Room | Surface | Detail |
|---|---|---|
| 2x Bedroom | Floor : Basement | |
| 1x Bathroom | Floor : Basement | |
| 1x Desk | Floor : Ground floor | |
| 1x Bathroom | Floor : Ground floor | |
| 1x Changing room | Floor : Ground floor | |
| 1x Dressing room | Floor : Ground floor | |
| 1x Living room |
Floor : 1st Exposure : South |
|
| 1x Kitchen | Floor : 1st | |
| 1x Dining room | Floor : 1st | |
| 1x Bathroom | Floor : 1st | |
| 3x Bedroom | Floor : 2nd | |
| 2x Bathroom | Floor : 2nd | |
| 1x Bathroom | Floor : 2nd | |
| 1x Master bedroom | Floor : 3rd | |
| 1x Bathroom/toilet | Floor : 3rd | |
| 1x Dressing room | Floor : 3rd | |
| 1x Desk | Floor : 3rd |
Services
Building & Co-ownership
| Building |
|---|
-
Built in : 1928
-
Number of floors : 3
| Co-ownership |
|---|
Procedure in progress : Non
Meet your agency
Simulator financing
Calculate the amount of the monthly payments on your home loan corresponding to the loan you wish to make.
FAI property price
6 900 000 €
€
per month
Do you have to sell to buy?
Our real estate consultants are at your disposal to estimate the value of your property. All our estimates are free of charge.
Estimate my propertyA living space to suit you
Junot takes you on a tour of the neighborhoods in which our agencies welcome you, and presents the specific features and good addresses.
Explore the neighborhoods




