Let's take an overview
Ad reference : 845JFPFRA
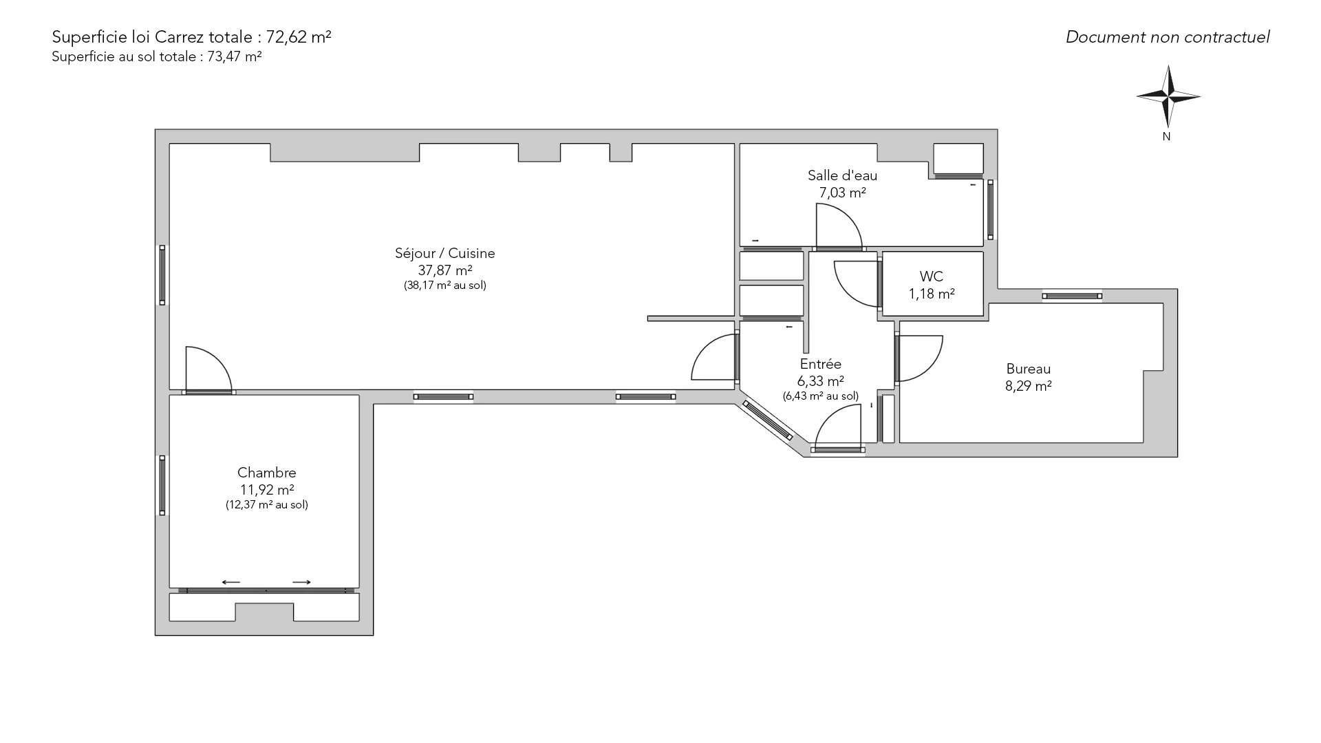
In a quiet location, this light-filled 72.62sqm Carrez law apartment is situated on the third floor of a beautiful building, Place du March, Saint-Honor. The space-saving layout comprises an entrance hall, living room with open kitchen, bedroom, study, shower room and guest toilet.
- Habitable : 785,76 Sq Ft Total : 781,67 Sq Ft
- 3 rooms
- 2 bedrooms
- 1 shower room
- Floor 3/6
- Orientation North
- Excellent condition
What seduced us
- Exceptional view
- Highly sought-after address
- Luminous
- Calm
- Open view
We say more
Regulations & financial information
Information on the risks to which this property is exposed is available on the Géorisques website. : www.georisques.gouv.fr
| Diagnostics |
|---|
Final energy consumption : E - 262 kWh/m²/an.
Estimated annual energy costs for standard use: between 1 360,00 € and 1 850,00 € /year (including subscription).
Average energy price indexed to 01/01/2021.
| Financial elements |
|---|
Interior & exterior details
| Room | Surface | Detail |
|---|---|---|
| 1x Entrance | 68.14 Sq Ft | Floor : 3rd |
| 1x Living room/kitchen | 407.63 Sq Ft | Floor : 3rd |
| 1x Bedroom | 128.31 Sq Ft | Floor : 3rd |
| 1x Bathroom | 75.67 Sq Ft | Floor : 3rd |
| 1x Bathroom | 12.7 Sq Ft | Floor : 3rd |
| 1x Bedroom | 89.23 Sq Ft | Floor : 3rd |
Services
Building & Co-ownership
| Building |
|---|
-
Built in : 1810
-
Type : cut stone
-
Number of floors : 6
-
Quality level : Luxury
| Co-ownership |
|---|
39 housing lots
Average annual amount of the share of current charges : 980 €
Procedure in progress : Non
Meet your agency
Simulator financing
Calculate the amount of the monthly payments on your home loan corresponding to the loan you wish to make.
FAI property price
1 350 000 €
€
per month
Do you have to sell to buy?
Our real estate consultants are at your disposal to estimate the value of your property. All our estimates are free of charge.
Estimate my propertyA living space to suit you
Junot takes you on a tour of the neighborhoods in which our agencies welcome you, and presents the specific features and good addresses.
Explore the neighborhoods










