Let's take an overview
Ad reference : 3364ABBRAF
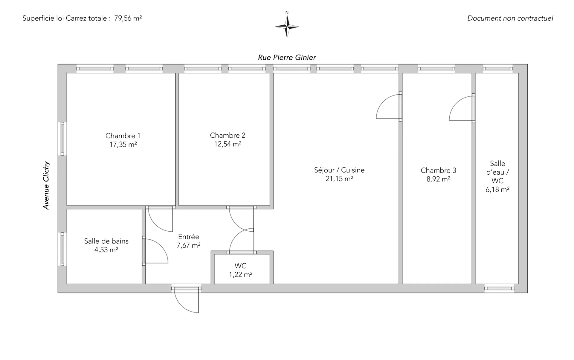
Located on the second floor by elevator, this bright apartment offers generous volumes with a ceiling height of 2.80sqm.
It includes an entrance, a large living room with an open kitchen, as well as three bedrooms, one of which has a private shower room with toilet, and an additional bathroom for more comfort and separate toilets.
Facing west, the apartment benefits from good natural light throughout the day. An ideal property for a family, combining space and light in a pleasant setting.
A cellar completes this property.
- Habitable : 856,38 Sq Ft
- 4 rooms
- 3 bedrooms
- 1 bathroom
- 1 shower room
- Floor 2/5
- Orientation North West
- Good condition
What seduced us
- Luminous
- Elevator
We say more
Regulations & financial information
Information on the risks to which this property is exposed is available on the Géorisques website. : www.georisques.gouv.fr
| Diagnostics |
|---|
Final energy consumption : a - 135 kWh/m²/an.
Estimated annual energy costs for standard use: between 1 520,00 € and 2 070,00 € /year (including subscription).
Average energy price indexed to 01/01/2023.
| Financial elements |
|---|
Property tax : 1 200,00 € /an
Interior & exterior details
| Room | Surface | Detail |
|---|---|---|
| 1x Entrance | 82.56 Sq Ft |
Floor : 2nd Coating : Parquet |
| 1x Bedroom | 186.75 Sq Ft |
Floor : 2nd Coating : Parquet |
| 1x Bathroom | 48.76 Sq Ft |
Floor : 2nd Coating : Floor tile |
| 1x Bedroom | 134.98 Sq Ft |
Floor : 2nd Coating : Parquet |
| 1x Living room/kitchen | 227.66 Sq Ft |
Floor : 2nd Coating : Parquet |
| 1x Bedroom | 96.01 Sq Ft |
Floor : 2nd Coating : Parquet |
| 1x Shower room/toilet | 66.52 Sq Ft |
Floor : 2nd Coating : Floor tile |
| 1x Bathroom | 13.13 Sq Ft | Floor : 2nd |
Services
Building & Co-ownership
| Building |
|---|
-
Built in : 1800
-
Number of floors : 5
-
Quality level : Normal
| Co-ownership |
|---|
Average annual amount of the share of current charges : 3 800 €
Procedure in progress : Non
Meet your agency
Simulator financing
Calculate the amount of the monthly payments on your home loan corresponding to the loan you wish to make.
FAI property price
760 000 €
€
per month
Do you have to sell to buy?
Our real estate consultants are at your disposal to estimate the value of your property. All our estimates are free of charge.
Estimate my propertyA living space to suit you
Junot takes you on a tour of the neighborhoods in which our agencies welcome you, and presents the specific features and good addresses.
Explore the neighborhoods











