Let's take an overview
Ad reference : 3231BRECHA
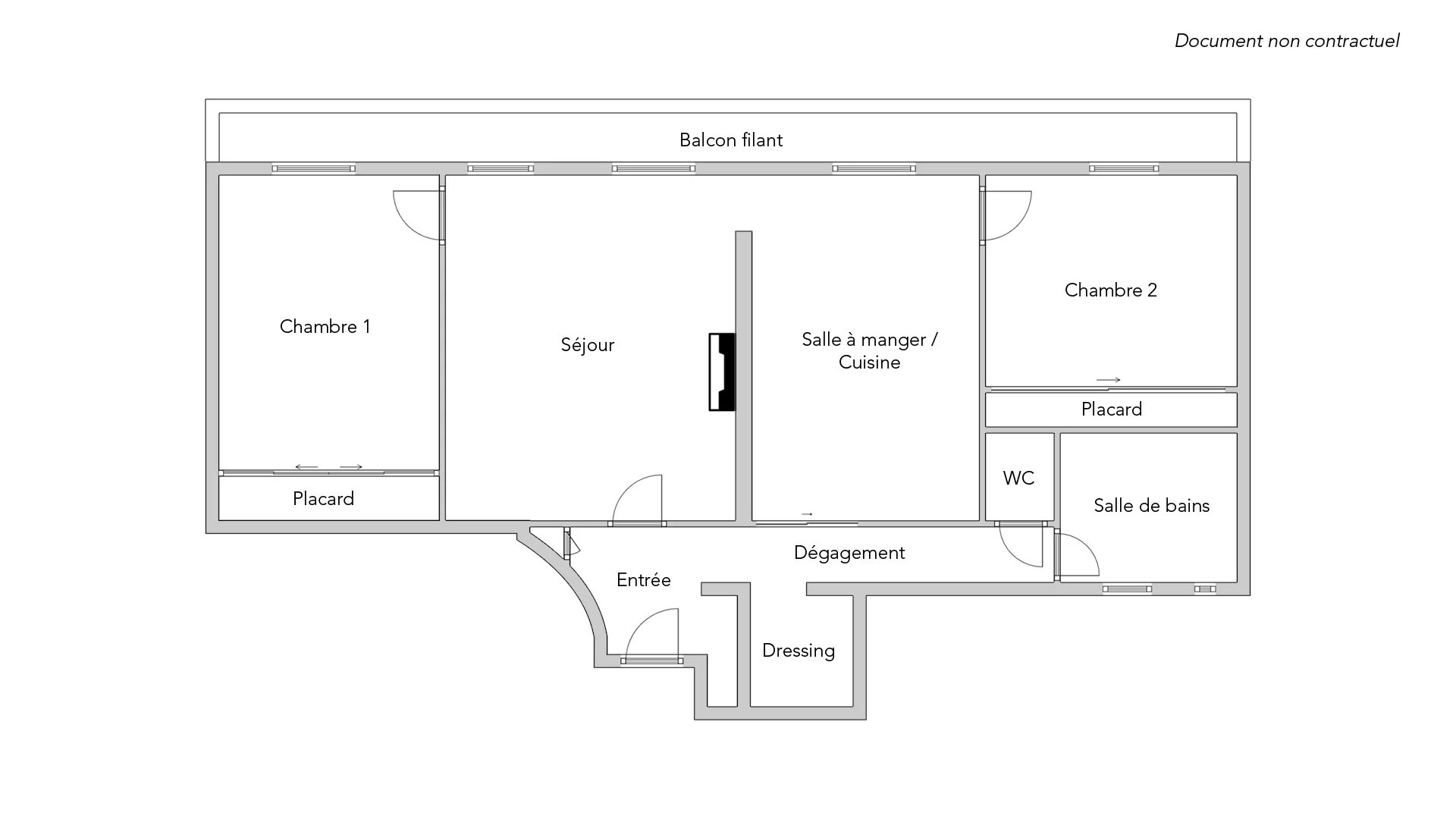
Ideally located in a quiet street on the edge of the Marais district, this 88.36sqm loi Carrez apartment is accessible by elevator from the fourth floor of a well-kept condominium. Bathed in sunlight thanks to its southern exposure, it comprises a pleasant living room, a vast dining kitchen, two bedrooms with ample storage space, a bathroom, a separate toilet and a storeroom. A lovely 10.25sqm balcony runs alongside this bright apartment. You'll love the optimized floor plan, the many windows and the quiet location.
- Habitable : 951,10 Sq Ft Total : 1 061,43 Sq Ft
- 3 rooms
- 2 bedrooms
- 1 bathroom
- Floor 4/7
- Fireplace
- Orientation South
- Good condition
What seduced us
- Balcony/Terrace
- Luminous
- Calm
- Elevator
- Open view
We say more
Regulations & financial information
Information on the risks to which this property is exposed is available on the Géorisques website. : www.georisques.gouv.fr
| Diagnostics |
|---|
Final energy consumption : B - 85 kWh/m²/an.
Estimated annual energy costs for standard use: between 1 360,00 € and 1 880,00 € /year (including subscription).
Average energy price indexed to 01/01/2021.
| Financial elements |
|---|
Property tax : 1 495,00 € /an
Interior & exterior details
| Room | Surface | Detail |
|---|---|---|
| 1x Balcony | 110.33 Sq Ft | Floor : 4th |
| 1x Entrance | 51.34 Sq Ft |
Floor : 4th Coating : Parquet |
| 1x Stay | 260.7 Sq Ft |
Floor : 4th Exposure : South Coating : Parquet Ceiling : 2.51m |
| 1x Bedroom | 173.73 Sq Ft |
Floor : 4th Exposure : South Coating : Parquet |
| 1x Dining room/Kitchen | 202.58 Sq Ft |
Floor : 4th Exposure : South Coating : Floor tile |
| 1x Bedroom | 143.27 Sq Ft |
Floor : 4th Exposure : South Coating : Parquet Ceiling : 2.51m |
| 1x Clearance | 38.32 Sq Ft |
Floor : 4th Coating : Parquet |
| 1x Bathroom | 9.36 Sq Ft |
Floor : 4th Coating : Floor tile |
| 1x Bathroom | 48.98 Sq Ft |
Floor : 4th Coating : Floor tile |
| 1x Dressing room | 22.82 Sq Ft |
Floor : 4th Coating : Parquet |
Services
Building & Co-ownership
| Building |
|---|
-
Built in : 1801
-
Type : Rock
-
Number of floors : 7
| Co-ownership |
|---|
18 housing lots
Average annual amount of the share of current charges : 2 400 €
Procedure in progress : Non
Meet your agency
Simulator financing
Calculate the amount of the monthly payments on your home loan corresponding to the loan you wish to make.
FAI property price
1 260 000 €
€
per month
Do you have to sell to buy?
Our real estate consultants are at your disposal to estimate the value of your property. All our estimates are free of charge.
Estimate my propertyA living space to suit you
Junot takes you on a tour of the neighborhoods in which our agencies welcome you, and presents the specific features and good addresses.
Explore the neighborhoods










