Let's take an overview
Ad reference : 2867WAGMBK
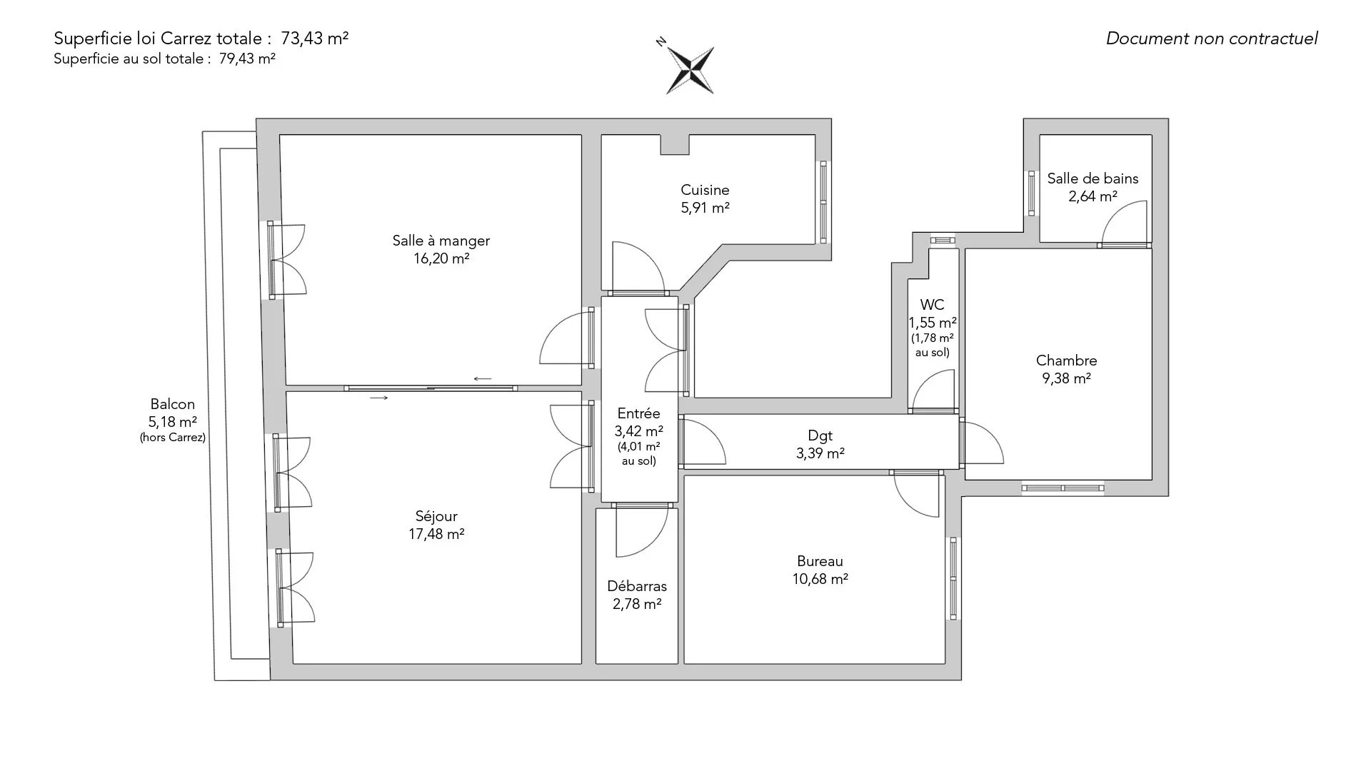
Boulevard Pereire, in a building, this 73.43sqm Carrez apartment is located on the fifth floor with elevator.
It comprises an entrance hall leading to a spacious double living room and a 5m² balcony with unobstructed north/west exposure, a separate kitchen, a dressing room, two bedrooms overlooking the courtyard, one with en suite bathroom, and a guest toilet.
The apartment retains its old-world charm and is in need of refurbishment.
A cellar completes this property.
EXCLUSIVITY.
- Habitable : 790,39 Sq Ft Total : 854,98 Sq Ft
- 3 rooms
- 2 bedrooms
- 1 bathroom
- Floor 5/6
- Fireplace
- Orientation North West
- To refresh
What seduced us
- Balcony/Terrace
- Crossing
- Elevator
- Cellar
- Open view
We say more
Regulations & financial information
Information on the risks to which this property is exposed is available on the Géorisques website. : www.georisques.gouv.fr
| Diagnostics |
|---|
Final energy consumption : D - 204 kWh/m²/an.
Estimated annual energy costs for standard use: between 1 410,00 € and 1 960,00 € /year (including subscription).
Average energy price indexed to 01/01/2023.
| Financial elements |
|---|
Property tax : 1 326,00 € /an
Interior & exterior details
| Room | Surface | Detail |
|---|---|---|
| 1x Stay | 188.15 Sq Ft |
Ceiling : 2.65m |
| 1x Dining room | 174.38 Sq Ft |
Ceiling : 2.65m |
| 1x Kitchen | 63.61 Sq Ft |
Ceiling : 2.65m |
| 1x Bedroom | 114.96 Sq Ft |
Ceiling : 2.65m |
| 1x Bedroom | 100.97 Sq Ft |
Ceiling : 2.65m |
| 1x Bathroom | 19.16 Sq Ft |
Ceiling : 2.65m |
| 1x Bathroom | 28.42 Sq Ft |
Ceiling : 2.65m |
| 1x Balcony | 55.76 Sq Ft | |
| 1x Dressing room | 29.92 Sq Ft |
Ceiling : 2.65m |
| 1x Cellar | ||
| 1x Clearance | 36.49 Sq Ft |
Ceiling : 2.65m |
| 1x Entrance | 43.16 Sq Ft |
Floor : 5th Ceiling : 2.65m |
Services
Building & Co-ownership
| Building |
|---|
-
Built in : 1880
-
Type : cut stone
-
Number of floors : 6
-
Quality level : Normal
| Co-ownership |
|---|
63 housing lots
Average annual amount of the share of current charges : 3 000 €
Procedure in progress : Non
Meet your agency
Simulator financing
Calculate the amount of the monthly payments on your home loan corresponding to the loan you wish to make.
FAI property price
875 000 €
€
per month
Do you have to sell to buy?
Our real estate consultants are at your disposal to estimate the value of your property. All our estimates are free of charge.
Estimate my propertyA living space to suit you
Junot takes you on a tour of the neighborhoods in which our agencies welcome you, and presents the specific features and good addresses.
Explore the neighborhoods










