Let's take an overview
Ad reference : 3163BREHUC
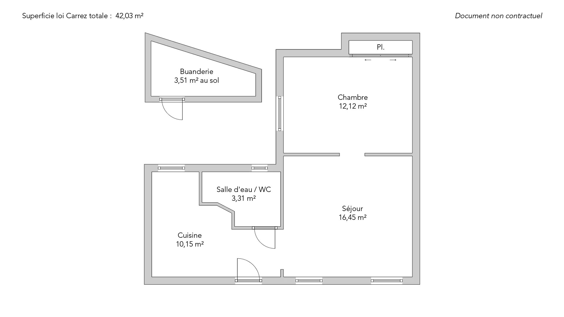
Located in the heart of the Marais, a 42sqm apartment on the third floor with elevator.
It comprises a living room with high ceilings, a fitted and equipped kitchen, a bedroom with storage space and a shower room with toilet.
Quiet and in good condition, it will seduce you with its period features (fireplace, stonework, wood panelling).
A 2sqm laundry room and a cellar complete this offer.
- Habitable : 452,41 Sq Ft Total : 490,19 Sq Ft
- 2 rooms
- 1 bedroom
- 1 shower room
- Floor 3/6
- Orientation East , West
- Good condition
What seduced us
- Calm
- Elevator
- Cellar
We say more
Regulations & financial information
Information on the risks to which this property is exposed is available on the Géorisques website. : www.georisques.gouv.fr
| Diagnostics |
|---|
Final energy consumption : D - 224 kWh/m²/an.
Logement à consommation énergétique excessive : classe G
Estimated annual energy costs for standard use: between 1 660,00 € and 2 280,00 € /year (including subscription).
Average energy price indexed to 01/01/2021.
| Financial elements |
|---|
Property tax : 736,00 € /an
Interior & exterior details
| Room | Surface | Detail |
|---|---|---|
| 1x Cellar | Floor : Basement | |
| 1x Living room | 177.07 Sq Ft |
Floor : 3rd Coating : Rock |
| 1x Kitchen | 109.25 Sq Ft |
Floor : 3rd Coating : Rock |
| 1x Bedroom | 130.46 Sq Ft |
Floor : 3rd Coating : Floor tile |
| 1x Shower room/toilet | 35.63 Sq Ft |
Floor : 3rd Coating : Parquet |
| 1x Laundry room | 37.78 Sq Ft | Floor : 3rd |
Services
Building & Co-ownership
| Building |
|---|
-
Built in : 1820
-
Type : Brick
-
Number of floors : 6
-
Quality level : Normal
| Co-ownership |
|---|
20 housing lots
Average annual amount of the share of current charges : 1 226 €
Procedure in progress : Non
Meet your agency
Simulator financing
Calculate the amount of the monthly payments on your home loan corresponding to the loan you wish to make.
FAI property price
590 000 €
€
per month
Do you have to sell to buy?
Our real estate consultants are at your disposal to estimate the value of your property. All our estimates are free of charge.
Estimate my propertyA living space to suit you
Junot takes you on a tour of the neighborhoods in which our agencies welcome you, and presents the specific features and good addresses.
Explore the neighborhoods











