Let's take an overview
Ad reference : 2674TERPAR3CH
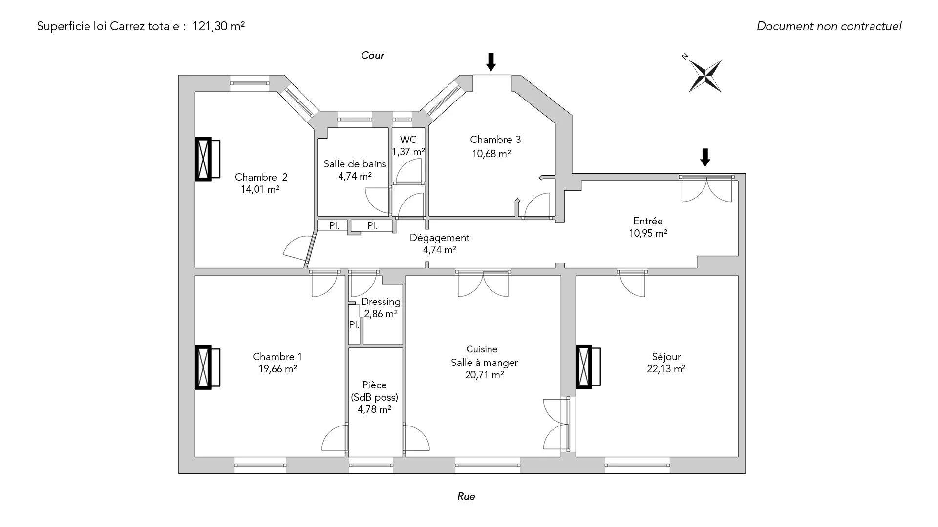
In the heart of a magnificent, recently renovated 1905 corner building, this 121.30sqm apartment offers excellent amenities.
The layout comprises an entrance hall leading to a living room with predominantly south-west exposure, a dining room, two large bedrooms, a separate kitchen, a dressing room, a shower room and a separate toilet.
The layout is flexible, with exceptional natural light and an unobstructed view over the lovely Rue Ampère. The original features have been preserved: high ceilings (3m), attractive moldings and fireplaces.
Possibility of adding a third bedroom and two bathrooms.
A storeroom on the service landing, two service rooms and a cellar complete this offer. Dedicated space for bicycles in the courtyard.
Additional parking space available.
- Habitable : 1 305,66 Sq Ft Total : 1 447,96 Sq Ft
- 4 rooms
- 2 bedrooms
- 1 bathroom
- Fireplace
- Orientation South West
- To renovate
What seduced us
- Luminous
We say more
Regulations & financial information
Information on the risks to which this property is exposed is available on the Géorisques website. : www.georisques.gouv.fr
| Diagnostics |
|---|
Final energy consumption : E - 287 kWh/m²/an.
Estimated annual energy costs for standard use: between 3 053,00 € and 4 131,00 € /year (including subscription).
Average energy price indexed to 01/01/2021.
| Financial elements |
|---|
Property tax : 2 212,00 € /an
Interior & exterior details
| Room | Surface | Detail |
|---|---|---|
| 1x Entrance | 117.86 Sq Ft | |
| 1x Dining room | 222.92 Sq Ft | |
| 1x Bedroom | 211.62 Sq Ft | |
| 1x Clearance | 50.27 Sq Ft | |
| 1x Closet | 51.02 Sq Ft | |
| 1x Bathroom | 14.75 Sq Ft | |
| 1x Bathroom | 51.02 Sq Ft | |
| 1x Bedroom | 150.8 Sq Ft | |
| 1x Dressing room | 30.78 Sq Ft | |
| 1x Kitchen | 114.96 Sq Ft | |
| 1x Clearance | 51.45 Sq Ft | |
| 1x Stay | 238.21 Sq Ft |
Floor : Ground floor Exposure : South West Ceiling : 3m |
| 1x Addiction | 18.51 Sq Ft | Floor : Ground floor |
| 1x Service room | 62.65 Sq Ft | Floor : 7th |
| 1x Service room | 37.57 Sq Ft | Floor : 7th |
Services
Building & Co-ownership
| Building |
|---|
-
Built in : 1903
-
Number of floors : 7
| Co-ownership |
|---|
Average annual amount of the share of current charges : 12 240 €
Procedure in progress : Non
Meet your agency
Simulator financing
Calculate the amount of the monthly payments on your home loan corresponding to the loan you wish to make.
FAI property price
1 200 000 €
€
per month
Do you have to sell to buy?
Our real estate consultants are at your disposal to estimate the value of your property. All our estimates are free of charge.
Estimate my propertyA living space to suit you
Junot takes you on a tour of the neighborhoods in which our agencies welcome you, and presents the specific features and good addresses.
Explore the neighborhoods












