Let's take an overview
Ad reference : 2797WAGBOU
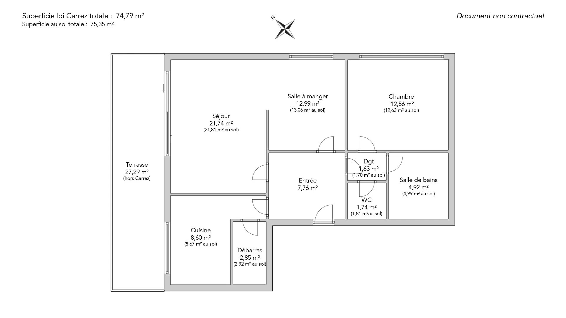
Rue Laugier. In the immediate vicinity of the Lebon market, in a recent, guarded condominium, we offer you a 74.79sqm Carrez apartment on the second floor by elevator, with a large 27.29sqm west-facing terrace.
In need of renovation, this apartment with great potential thanks to its modular layout offers a welcoming entrance hall, a living room opening onto a large sunny terrace, a kitchen (which can be opened onto the living room), two pleasant bedrooms, a bathroom and separate toilet.
Parking available in the building.
- Habitable : 805,03 Sq Ft Total : 811,06 Sq Ft
- 4 rooms
- 1 bedroom
- 1 bathroom
- Floor 2/6
- Orientation North West
- To renovate
What seduced us
- Balcony/Terrace
- Guardian
- Luminous
- Calm
- Elevator
- Open view
We say more
Regulations & financial information
Information on the risks to which this property is exposed is available on the Géorisques website. : www.georisques.gouv.fr
| Diagnostics |
|---|
Final energy consumption : D - 217 kWh/m²/an.
Estimated annual energy costs for standard use: between 1 330,00 € and 1 830,00 € /year (including subscription).
Average energy price indexed to 01/01/2021.
| Financial elements |
|---|
Property tax : 1 786,00 € /an
Interior & exterior details
| Room | Surface | Detail |
|---|---|---|
| 1x Clearance | 17.55 Sq Ft | Floor : 2nd |
| 1x Entrance | 83.53 Sq Ft | Floor : 2nd |
| 1x Kitchen | 92.57 Sq Ft | Floor : 2nd |
| 1x Clearance | 30.68 Sq Ft | Floor : 2nd |
| 1x Stay | 234.01 Sq Ft | Floor : 2nd |
| 1x Dining room | 139.82 Sq Ft | Floor : 2nd |
| 1x Clearance | 17.55 Sq Ft | Floor : 2nd |
| 1x Bathroom | 18.73 Sq Ft | Floor : 2nd |
| 1x Bathroom | 52.96 Sq Ft | Floor : 2nd |
| 1x Bedroom | 135.19 Sq Ft | Floor : 2nd |
| 1x Terrace | 293.75 Sq Ft | Floor : 2nd |
Services
Building & Co-ownership
| Building |
|---|
-
Built in : 1969
-
Number of floors : 6
-
Quality level : Normal
| Co-ownership |
|---|
176 housing lots
Average annual amount of the share of current charges : 4 500 €
Procedure in progress : Non
Meet your agency
Simulator financing
Calculate the amount of the monthly payments on your home loan corresponding to the loan you wish to make.
FAI property price
950 000 €
€
per month
Do you have to sell to buy?
Our real estate consultants are at your disposal to estimate the value of your property. All our estimates are free of charge.
Estimate my propertyA living space to suit you
Junot takes you on a tour of the neighborhoods in which our agencies welcome you, and presents the specific features and good addresses.
Explore the neighborhoods










