Let's take an overview
Ad reference : 3324ABBRAV
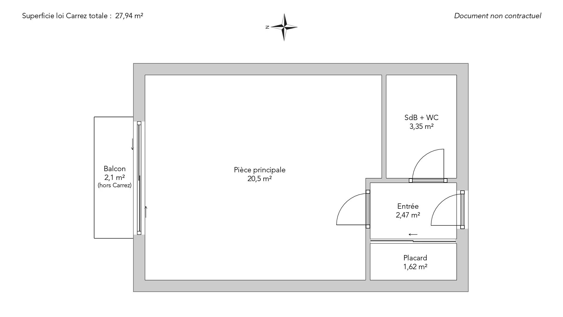
Located at the foot of Montmartre, in a beautiful 1960s building, on the sixth floor with elevator access, this 27.94 sq m (Carrez Law) apartment offers exceptional tranquility.
It comprises a small entrance hall leading to a spacious living room with an open-plan kitchen, and an adjoining bathroom with toilet.
The compact layout maximizes space. The building is of a very high standard.
A cellar completes this property.
EXCLUSIVE LISTING.
- Habitable : 300,74 Sq Ft
- 1 room
- suite
- 1 bathroom
- Floor 6/8
- Orientation North
- Good condition
What seduced us
- Balcony/Terrace
- Calm
- Elevator
- Cellar
- Open view
We say more
Regulations & financial information
Information on the risks to which this property is exposed is available on the Géorisques website. : www.georisques.gouv.fr
| Diagnostics |
|---|
Final energy consumption : D - 239 kWh/m²/an.
Estimated annual energy costs for standard use: between 520,00 € and 750,00 € /year (including subscription).
Average energy price indexed to 01/01/2023.
| Financial elements |
|---|
Property tax : 833,00 € /an
Interior & exterior details
| Room | Surface | Detail |
|---|---|---|
| 1x Cellar | ||
| 1x Bathroom/toilet | 36.06 Sq Ft | Floor : 6th |
| 1x Balcony | 22.6 Sq Ft | Floor : 6th |
| 1x Closet | 17.44 Sq Ft | Floor : 6th |
| 1x Entrance | 26.59 Sq Ft | Floor : 6th |
| 1x Living room/kitchen | 220.66 Sq Ft |
Floor : 6th Exposure : North Coating : Parquet Ceiling : 2.6m |
Services
Building & Co-ownership
| Building |
|---|
-
Built in : 1960
-
Type : Concrete
-
Number of floors : 8
-
Quality level : Normal
| Co-ownership |
|---|
Average annual amount of the share of current charges : 840 €
Procedure in progress : Non
Meet your agency
Simulator financing
Calculate the amount of the monthly payments on your home loan corresponding to the loan you wish to make.
FAI property price
300 000 €
€
per month
Do you have to sell to buy?
Our real estate consultants are at your disposal to estimate the value of your property. All our estimates are free of charge.
Estimate my propertyA living space to suit you
Junot takes you on a tour of the neighborhoods in which our agencies welcome you, and presents the specific features and good addresses.
Explore the neighborhoods













