Let's take an overview
Ad reference : 3449MARLAC/3403GRE
At a prestigious address, right next to the Champ de Mars gardens.
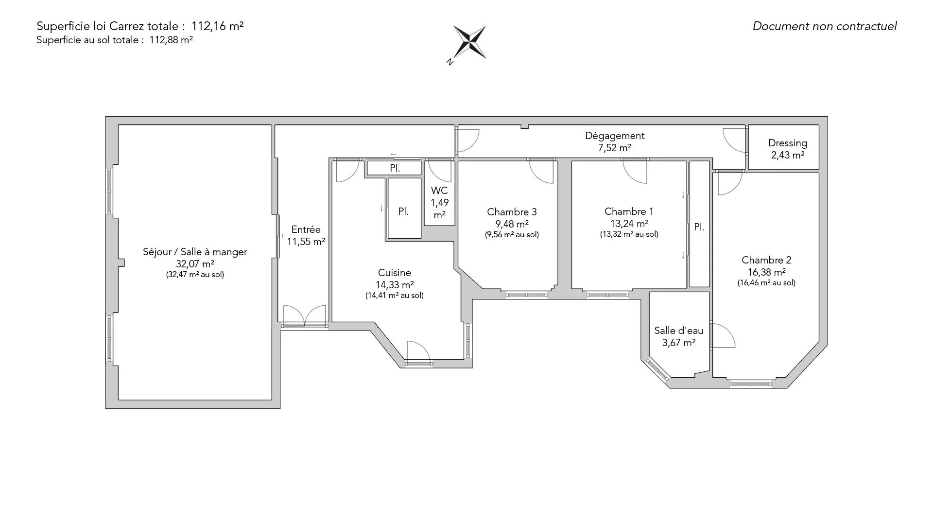
This 112.16sqm loi Carrez apartment is located on the second floor of a beautiful freestone condominium.
The layout comprises an entrance hall, a vast double living room facing north-east, a separate kitchen with laundry area, three quiet bedrooms overlooking the courtyard, one with en-suite shower room and toilet, a dressing room and separate toilet.
With a ceiling height of 2.98 meters, this property offers generous volumes. You'll be seduced by its highly sought-after location and preserved old-world charm.
EXCLUSIVE.
- Habitable : 1 207,28 Sq Ft Total : 1 215,03 Sq Ft
- 4 rooms
- 3 bedrooms
- 1 shower room
- Floor 1/6
- Fireplace
- Orientation Northeast
- Good condition
What seduced us
- Highly sought-after address
We say more
Regulations & financial information
Information on the risks to which this property is exposed is available on the Géorisques website. : www.georisques.gouv.fr
| Diagnostics |
|---|
Final energy consumption : D - 195 kWh/m²/an.
Estimated annual energy costs for standard use: between 2 010,00 € and 2 730,00 € /year (including subscription).
Average energy price indexed to 01/01/2023.
| Financial elements |
|---|
Interior & exterior details
| Room | Surface | Detail |
|---|---|---|
| 1x Entrance | 124.32 Sq Ft |
Floor : 1st Coating : Parquet |
| 1x Stay | 345.2 Sq Ft |
Floor : 1st Coating : Parquet Ceiling : 2.98m |
| 1x Equipped kitchen | 154.25 Sq Ft |
Floor : 1st Coating : Lino |
| 1x Bedroom | 142.51 Sq Ft |
Floor : 1st Coating : Carpet |
| 1x Bedroom | 176.31 Sq Ft |
Floor : 1st Coating : Carpet |
| 1x Bedroom | 102.04 Sq Ft |
Floor : 1st Coating : Carpet |
| 1x Dressing room | 26.16 Sq Ft |
Floor : 1st Coating : Carpet |
| 1x Shower room/toilet | 39.5 Sq Ft |
Floor : 1st Coating : Floor tile |
| 1x Clearance | 80.94 Sq Ft |
Floor : 1st Coating : Carpet |
| 1x Bathroom | 16.04 Sq Ft |
Floor : 1st Coating : Floor tile |
Services
Building & Co-ownership
| Building |
|---|
-
Built in : 1909
-
Number of floors : 6
| Co-ownership |
|---|
49 housing lots
Average annual amount of the share of current charges : 5 425 €
Procedure in progress : Non
Meet your agency
Simulator financing
Calculate the amount of the monthly payments on your home loan corresponding to the loan you wish to make.
FAI property price
1 650 000 €
€
per month
Do you have to sell to buy?
Our real estate consultants are at your disposal to estimate the value of your property. All our estimates are free of charge.
Estimate my propertyA living space to suit you
Junot takes you on a tour of the neighborhoods in which our agencies welcome you, and presents the specific features and good addresses.
Explore the neighborhoods










