Let's take an overview
Ad reference : 1119POIBON
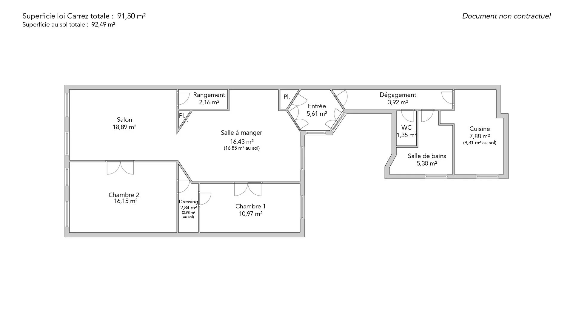
On the third floor of a handsome freestone building, this 91.5sqm loi Carrez apartment features spacious rooms and old-world charm.
The entrance hall leads to a dining room extended by a living room, a separate kitchen, a bedroom overlooking the courtyard with dressing room, a bedroom overlooking the street, a storage area, a bathroom and separate toilet. A third bedroom can be added if required.
Period fireplaces, moldings and parquet flooring have been preserved, bringing authenticity and elegance to the property.
Located in a sought-after neighborhood, close to shops and transport, this apartment enjoys a privileged address. Two cellars complete this property.
- Habitable : 984,90 Sq Ft Total : 995,55 Sq Ft
- 4 rooms
- 2 bedrooms
- 1 bathroom
- Orientation Northeast
- Good condition
What seduced us
- Calm
- Cellar
We say more
Regulations & financial information
Information on the risks to which this property is exposed is available on the Géorisques website. : www.georisques.gouv.fr
| Diagnostics |
|---|
Final energy consumption : E - 254 kWh/m²/an.
Estimated annual energy costs for standard use: between 2 110,00 € and 2 860,00 € /year (including subscription).
Average energy price indexed to 01/01/2021.
| Financial elements |
|---|
Interior & exterior details
| Room | Surface | Detail |
|---|---|---|
| 1x Cellar | ||
| 1x Entrance | 60.39 Sq Ft |
Floor : 3rd Coating : Parquet |
| 1x Dining room | 176.85 Sq Ft |
Floor : 3rd Coating : Parquet |
| 1x Kitchen | 84.82 Sq Ft |
Floor : 3rd Coating : Floor tile |
| 1x Bedroom | 118.08 Sq Ft |
Floor : 3rd Coating : Parquet |
| 1x Dressing room | 30.57 Sq Ft |
Floor : 3rd Coating : Parquet |
| 1x Bathroom | 14.53 Sq Ft |
Floor : 3rd Coating : Parquet |
| 1x Bathroom | 57.05 Sq Ft |
Floor : 3rd Coating : Parquet |
| 1x Clearance | 42.19 Sq Ft |
Floor : 3rd Coating : Parquet |
| 1x Living room | 203.33 Sq Ft |
Floor : 3rd Coating : Parquet |
| 1x Closet | 23.25 Sq Ft |
Floor : 3rd Coating : Parquet |
| 1x Bedroom | 173.84 Sq Ft |
Floor : 3rd Coating : Parquet |
Services
Building & Co-ownership
| Building |
|---|
-
Built in : 1880
| Co-ownership |
|---|
Average annual amount of the share of current charges : 1 992 €
Procedure in progress : Non
Meet your agency
Simulator financing
Calculate the amount of the monthly payments on your home loan corresponding to the loan you wish to make.
FAI property price
1 050 000 €
€
per month
Do you have to sell to buy?
Our real estate consultants are at your disposal to estimate the value of your property. All our estimates are free of charge.
Estimate my propertyA living space to suit you
Junot takes you on a tour of the neighborhoods in which our agencies welcome you, and presents the specific features and good addresses.
Explore the neighborhoods











