Let's take an overview
Ad reference : 3406STGMIC
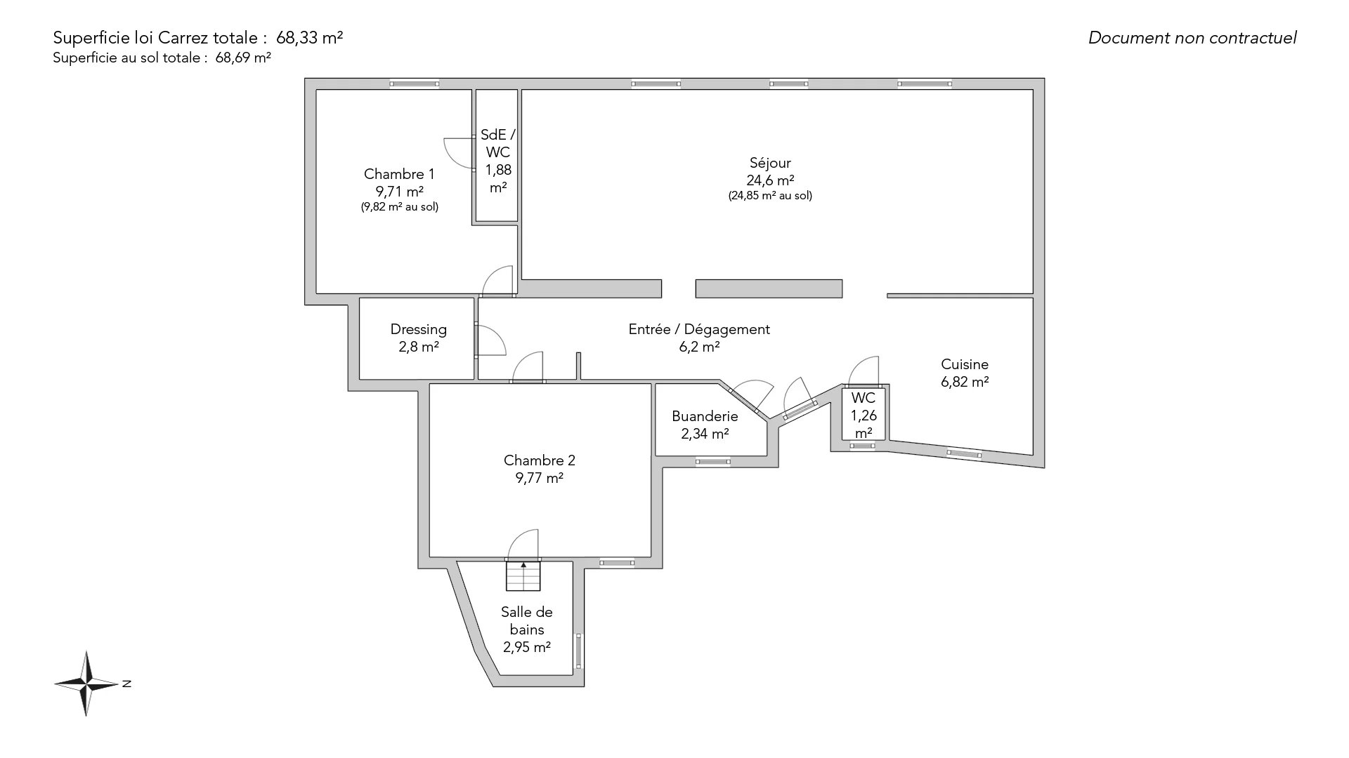
Ideally located a stone's throw from rue Lepic, in a beautiful, regularly-maintained building, this superb, fully renovated apartment, on the sixth and top floor by staircase, with a surface area of 68.33m² loi Carrez, benefits from unobstructed views.
Bright and airy, it comprises a west-facing double living room, semi-open kitchen, two bedrooms, shower room, bathroom, laundry room and separate toilet.
This property will seduce you with its location, its brightness, the quality of its renovation and its space-saving layout.
EXCLUSIVE
- Habitable : 735,50 Sq Ft Total : 739,37 Sq Ft
- 4 rooms
- 2 bedrooms
- 1 bathroom
- 1 shower room
- Floor 6/6
- Orientation East , West
- Nine
What seduced us
- Last floor
- Luminous
- Calm
- Open view
We say more
Regulations & financial information
Information on the risks to which this property is exposed is available on the Géorisques website. : www.georisques.gouv.fr
| Diagnostics |
|---|
Final energy consumption : D - 237 kWh/m²/an.
Estimated annual energy costs for standard use: between 1 380,00 € and 1 930,00 € /year (including subscription).
Average energy price indexed to 01/01/2023.
| Financial elements |
|---|
Property tax : 1 377,00 € /an
Interior & exterior details
| Room | Surface | Detail |
|---|---|---|
| 1x Entrance | 66.74 Sq Ft |
Floor : 6th Coating : Parquet |
| 1x Stay | 264.79 Sq Ft |
Floor : 6th Exposure : West Coating : Parquet |
| 1x Kitchen | 73.41 Sq Ft |
Floor : 6th Coating : Floor tile |
| 1x Bedroom | 104.52 Sq Ft |
Floor : 6th Coating : Parquet |
| 1x Bedroom | 105.16 Sq Ft |
Floor : 6th Coating : Parquet |
| 1x Bathroom | 31.75 Sq Ft | Floor : 6th |
| 1x Shower room/toilet | 20.24 Sq Ft |
Floor : 6th Coating : Floor tile |
| 1x Dressing room | 30.14 Sq Ft |
Floor : 6th Coating : Parquet |
| 1x Laundry room | 25.19 Sq Ft |
Floor : 6th Coating : Floor tile |
| 1x Bathroom | 13.56 Sq Ft |
Floor : 6th Coating : Floor tile |
Services
Building & Co-ownership
| Building |
|---|
-
Built in : 1880
-
Type : Rock
-
Number of floors : 6
-
Quality level : Standing
| Co-ownership |
|---|
66 housing lots
Average annual amount of the share of current charges : 4 800 €
Procedure in progress : Non
Meet your agency
Simulator financing
Calculate the amount of the monthly payments on your home loan corresponding to the loan you wish to make.
FAI property price
890 000 €
€
per month
Do you have to sell to buy?
Our real estate consultants are at your disposal to estimate the value of your property. All our estimates are free of charge.
Estimate my propertyA living space to suit you
Junot takes you on a tour of the neighborhoods in which our agencies welcome you, and presents the specific features and good addresses.
Explore the neighborhoods










