Let's take an overview
Ad reference : 2842WAGBOU
Ideally located close to Passy, quality shops and transport.
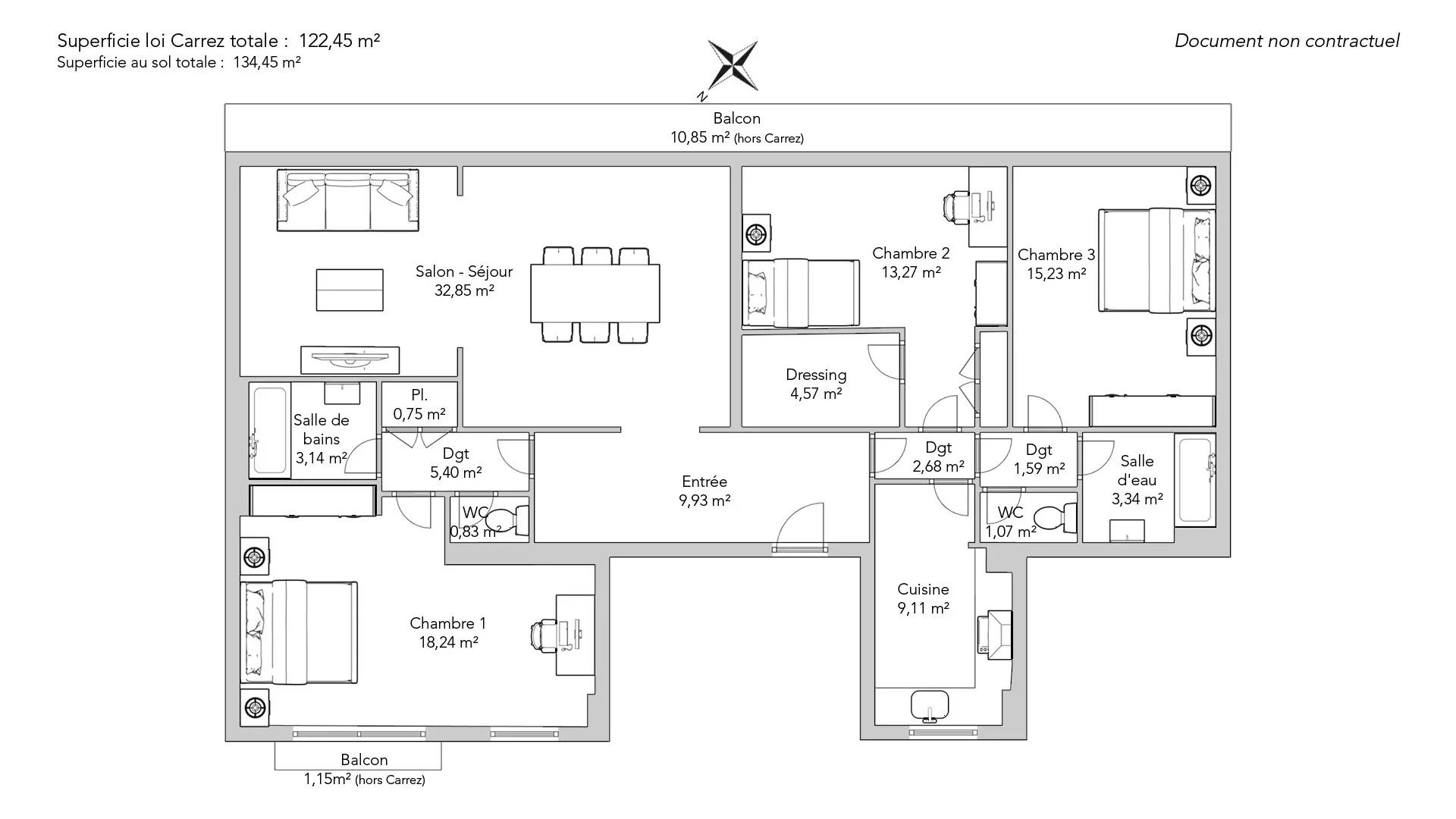
On the fourth floor by elevator of a modern and secure condominium, we offer you a charming family apartment of 122.45sqm Carrez.
The result of the reunification of two apartments, the perfectly optimized layout features a double living room opening onto a long 10.85m² balcony with a view of the Eiffel Tower, three large bedrooms, including a master suite with its own bathroom, another shower room, a fully-equipped kitchen, two separate toilets and plenty of storage space.
Two cellars complete this offer. Additional parking space available in the building.
- Habitable : 1 318,04 Sq Ft Total : 1 447,21 Sq Ft
- 5 rooms
- 3 bedrooms
- 1 bathroom
- 1 shower room
- Floor 4/7
- Orientation South East
- To refresh
What seduced us
- Balcony/Terrace
- Highly sought-after address
- Historical monument view
- Luminous
- Crossing
- Elevator
We say more
Regulations & financial information
Information on the risks to which this property is exposed is available on the Géorisques website. : www.georisques.gouv.fr
| Diagnostics |
|---|
Final energy consumption : E - 258 kWh/m²/an.
Estimated annual energy costs for standard use: between 2 800,00 € and 3 800,00 € /year (including subscription).
Average energy price indexed to 01/01/2021.
| Financial elements |
|---|
Property tax : 4 010,00 € /an
Interior & exterior details
| Room | Surface | Detail |
|---|---|---|
| 1x Entrance | 106.89 Sq Ft | Floor : 4th |
| 1x Stay | 353.59 Sq Ft |
Floor : 4th Exposure : South East Ceiling : 2.65m |
| 1x Clearance | 58.13 Sq Ft | Floor : 4th |
| 1x Closet | 8.07 Sq Ft | Floor : 4th |
| 1x Bathroom | 8.93 Sq Ft | Floor : 4th |
| 1x Bathroom | 33.8 Sq Ft | Floor : 4th |
| 1x Bedroom | 196.33 Sq Ft | Floor : 4th |
| 1x Balcony | 12.38 Sq Ft | Floor : 4th |
| 1x Clearance | 28.85 Sq Ft | Floor : 4th |
| 1x Kitchen | 98.06 Sq Ft | Floor : 4th |
| 1x Closet | 4.84 Sq Ft | Floor : 4th |
| 1x Dressing room | 49.19 Sq Ft | Floor : 4th |
| 1x Bedroom | 142.84 Sq Ft | Floor : 4th |
| 1x Clearance | 17.11 Sq Ft | Floor : 4th |
| 1x Bathroom | 11.52 Sq Ft | Floor : 4th |
| 1x Bedroom | 163.93 Sq Ft | Floor : 4th |
| 1x Bathroom | 35.95 Sq Ft | Floor : 4th |
| 1x Balcony | 19.91 Sq Ft | Floor : 4th |
Services
Building & Co-ownership
| Building |
|---|
-
Built in : 1968
-
Number of floors : 7
| Co-ownership |
|---|
131 housing lots
Average annual amount of the share of current charges : 8 826 €
Procedure in progress : Non
Meet your agency
Simulator financing
Calculate the amount of the monthly payments on your home loan corresponding to the loan you wish to make.
FAI property price
1 450 000 €
€
per month
Do you have to sell to buy?
Our real estate consultants are at your disposal to estimate the value of your property. All our estimates are free of charge.
Estimate my propertyA living space to suit you
Junot takes you on a tour of the neighborhoods in which our agencies welcome you, and presents the specific features and good addresses.
Explore the neighborhoods












