Let's take an overview
Ad reference : 5765JASJOU
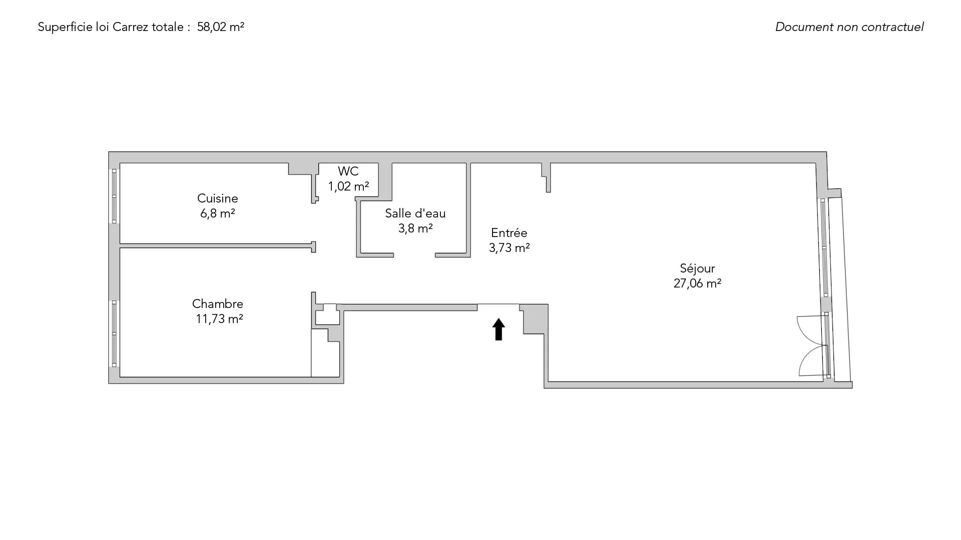
On the fourth floor by elevator of a secure, well-maintained building, 58.02sqm Carrez apartment.
The layout comprises an entrance hall with dressing room, a spacious, bright west-facing living room, separate kitchen, a quiet bedroom, shower room and guest toilet.
Numerous custom-designed storage spaces optimize the overall layout.
A cellar completes this property.
Close to shops and transport links.
- Habitable : 624,52 Sq Ft
- 2 rooms
- 1 bedroom
- 1 shower room
- Orientation West
- To refresh
What seduced us
- Calm
- Crossing
- Elevator
- Cellar
We say more
Regulations & financial information
Information on the risks to which this property is exposed is available on the Géorisques website. : www.georisques.gouv.fr
| Diagnostics |
|---|
Final energy consumption : D - 245 kWh/m²/an.
Logement à consommation énergétique excessive : classe F
Estimated annual energy costs for standard use: between 1 990,00 € and 2 710,00 € /year (including subscription).
Average energy price indexed to 01/01/2021.
| Financial elements |
|---|
Interior & exterior details
| Room | Surface | Detail |
|---|---|---|
| 1x Cellar | ||
| 1x Entrance | 40.15 Sq Ft | Floor : 4th |
| 1x Stay | 291.27 Sq Ft | Floor : 4th |
| 1x Kitchen | 73.19 Sq Ft | Floor : 4th |
| 1x Bedroom | 126.26 Sq Ft | Floor : 4th |
| 1x Bathroom | 40.9 Sq Ft | Floor : 4th |
| 1x Bathroom | 10.98 Sq Ft | Floor : 4th |
| 1x Clearance | 41.76 Sq Ft | Floor : 4th |
Services
Building & Co-ownership
| Building |
|---|
-
Built in : 1961
| Co-ownership |
|---|
32 housing lots
Average annual amount of the share of current charges : 4 000 €
Procedure in progress : Non
Meet your agency
Simulator financing
Calculate the amount of the monthly payments on your home loan corresponding to the loan you wish to make.
FAI property price
565 000 €
€
per month
Do you have to sell to buy?
Our real estate consultants are at your disposal to estimate the value of your property. All our estimates are free of charge.
Estimate my propertyA living space to suit you
Junot takes you on a tour of the neighborhoods in which our agencies welcome you, and presents the specific features and good addresses.
Explore the neighborhoods













