Let's take an overview
Ad reference : 3466BRESAT2P
Quiet rue Jacques Cœur, close to the Seine and Opéra Bastille.
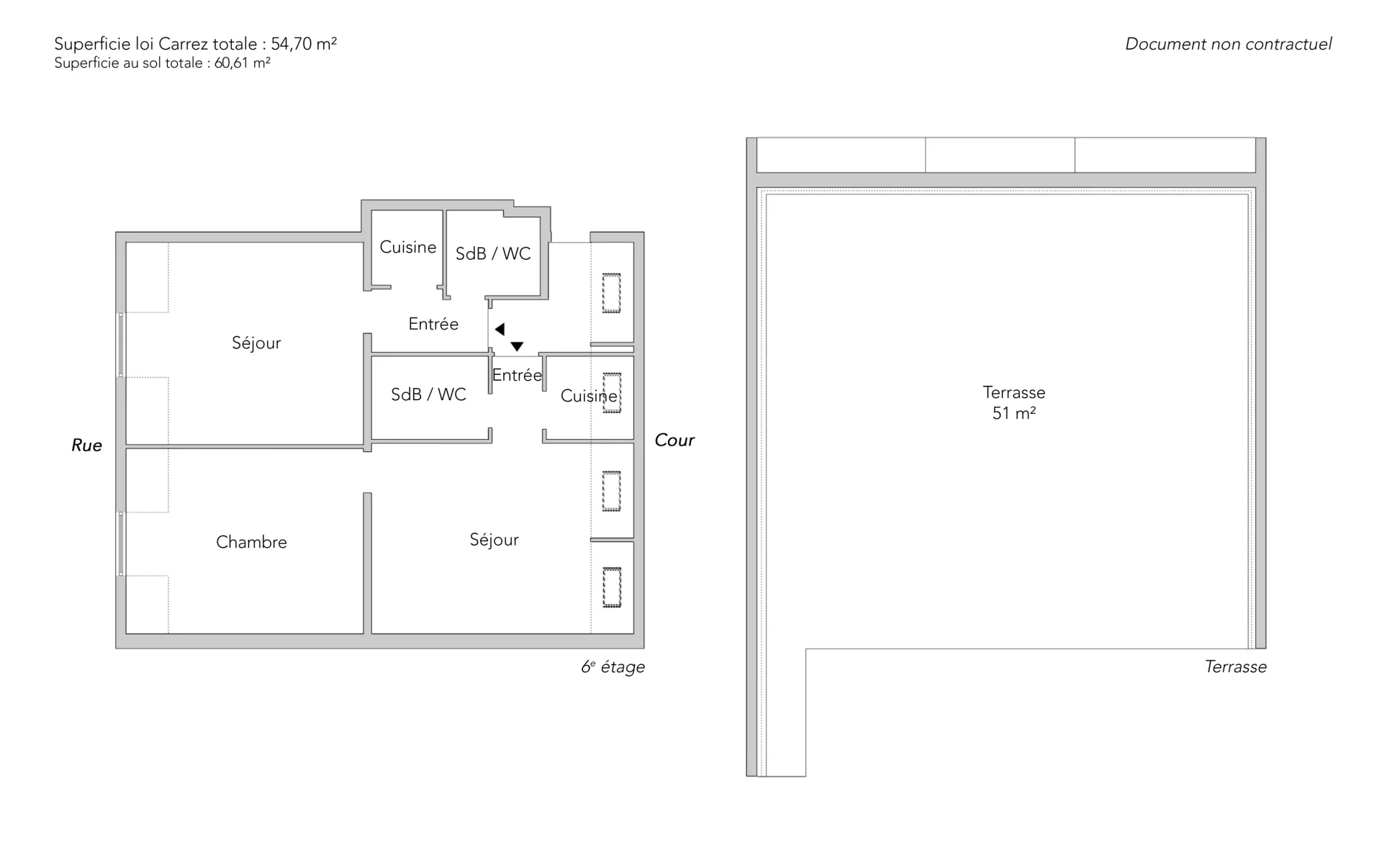
On the top floors of a stone building with elevator to the fifth floor, two/three-room apartment to renovate and connect with a terrace offering a panoramic view of 51m².
This set of lots to be reunited (with planning and co-ownership authorizations already granted) is composed as follows:
On the sixth floor, two apartments with a total surface area of 54.70sqm loi Carrez (60.61sqm on the ground).
On the seventh floor: a 51m² panoramic terrace.
A cellar completes the property.
Light, calm, views and vast outdoor space.
A rare find.
- Habitable : 621,18 Sq Ft Total : 635,07 Sq Ft
- 2 rooms
- suite
- Floor 5/6
- Orientation East , West
- To renovate
What seduced us
- Luminous
- Calm
- Elevator
- Open view
We say more
Regulations & financial information
Information on the risks to which this property is exposed is available on the Géorisques website. : www.georisques.gouv.fr
| Diagnostics |
|---|
| Financial elements |
|---|
Services
Building & Co-ownership
| Building |
|---|
-
Built in : 1900
-
Number of floors : 6
| Co-ownership |
|---|
13 housing lots
Average annual amount of the share of current charges : 3 960 €
Procedure in progress : Non
Meet your agency
Simulator financing
Calculate the amount of the monthly payments on your home loan corresponding to the loan you wish to make.
FAI property price
990 000 €
€
per month
Do you have to sell to buy?
Our real estate consultants are at your disposal to estimate the value of your property. All our estimates are free of charge.
Estimate my propertyA living space to suit you
Junot takes you on a tour of the neighborhoods in which our agencies welcome you, and presents the specific features and good addresses.
Explore the neighborhoods










