Let's take an overview
Ad reference : 5786JUNBEA
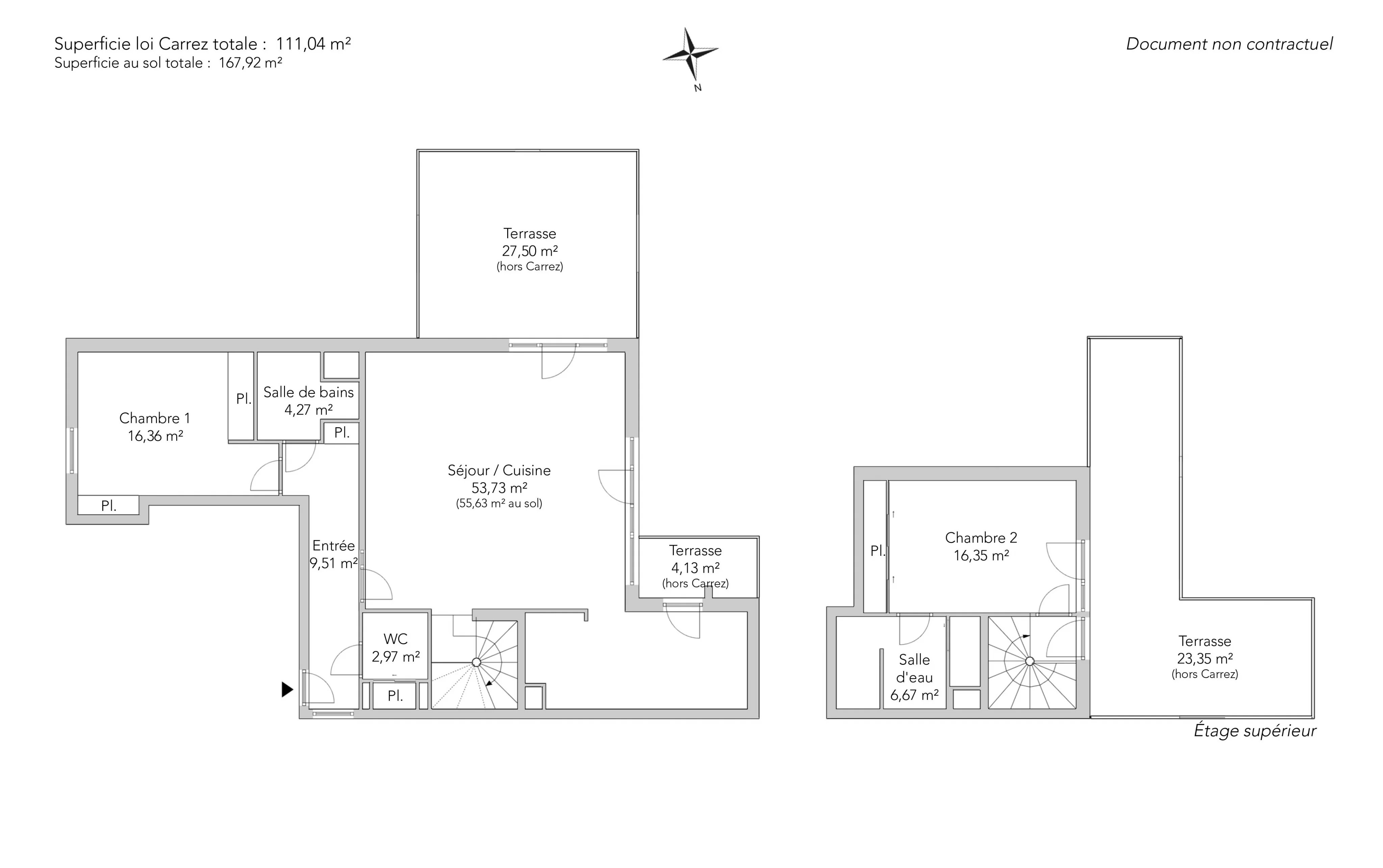
Located in a quiet, private cul-de-sac on the top two floors of a 2017 residence, this superb 111.04sqm duplex features three terraces totaling 54.98sqm.
The first level features a vast south- and west-facing living room opening onto a first terrace, an open-plan kitchen with a second terrace, a bedroom with bespoke storage, a shower room and separate toilet.
Upstairs, a large master suite with dressing room, shower room with toilet and access to the third terrace.
In perfect condition, this beautifully appointed apartment offers a discreet and exceptional living environment in Montmartre, right in the heart of Les Abbesses.
A cellar completes this property.
Possibility of acquiring a parking space in the building with direct elevator access.
- Habitable : 1 807,47 Sq Ft
- 3 rooms
- 2 bedrooms
- 1 bathroom
- 1 shower room
- Orientation West, South
- Nine
What seduced us
- Balcony/Terrace
- Highly sought-after address
- Last floor
- Luminous
- Calm
- Elevator
We say more
Regulations & financial information
Information on the risks to which this property is exposed is available on the Géorisques website. : www.georisques.gouv.fr
| Diagnostics |
|---|
Final energy consumption : a - 69 kWh/m²/an.
Estimated annual energy costs for standard use: between 840,00 € and 1 150,00 € /year (including subscription).
Average energy price indexed to 01/01/2021.
| Financial elements |
|---|
Property tax : 2 600,00 € /an
Interior & exterior details
| Room | Surface | Detail |
|---|---|---|
| 1x Entrance | 102.36 Sq Ft | Floor : Ground floor |
| 1x Bathroom | 31.97 Sq Ft | Floor : Ground floor |
| 1x Bedroom | 176.1 Sq Ft | Floor : Ground floor |
| 1x Bathroom | 45.96 Sq Ft | Floor : Ground floor |
| 1x Living room/kitchen | 598.8 Sq Ft |
Floor : Ground floor Exposure : South West |
| 1x Terrace | 296.01 Sq Ft | Floor : Ground floor |
| 1x Terrace | 44.45 Sq Ft | Floor : Ground floor |
| 1x Landing | 12.7 Sq Ft | Floor : 1st |
| 1x Bedroom | 175.99 Sq Ft | Floor : 1st |
| 1x Bathroom | 71.8 Sq Ft | Floor : 1st |
| 1x Terrace | 251.34 Sq Ft | Floor : 1st |
Services
Building & Co-ownership
| Building |
|---|
-
Built in : 2017
-
Type : Drink
-
Number of floors : 1
| Co-ownership |
|---|
Average annual amount of the share of current charges : 5 737 €
Procedure in progress : Non
Meet your agency
Simulator financing
Calculate the amount of the monthly payments on your home loan corresponding to the loan you wish to make.
FAI property price
2 249 000 €
€
per month
Do you have to sell to buy?
Our real estate consultants are at your disposal to estimate the value of your property. All our estimates are free of charge.
Estimate my propertyA living space to suit you
Junot takes you on a tour of the neighborhoods in which our agencies welcome you, and presents the specific features and good addresses.
Explore the neighborhoods












