Let's take an overview
Ad reference : 1168POIPLA
Rue Drouot.
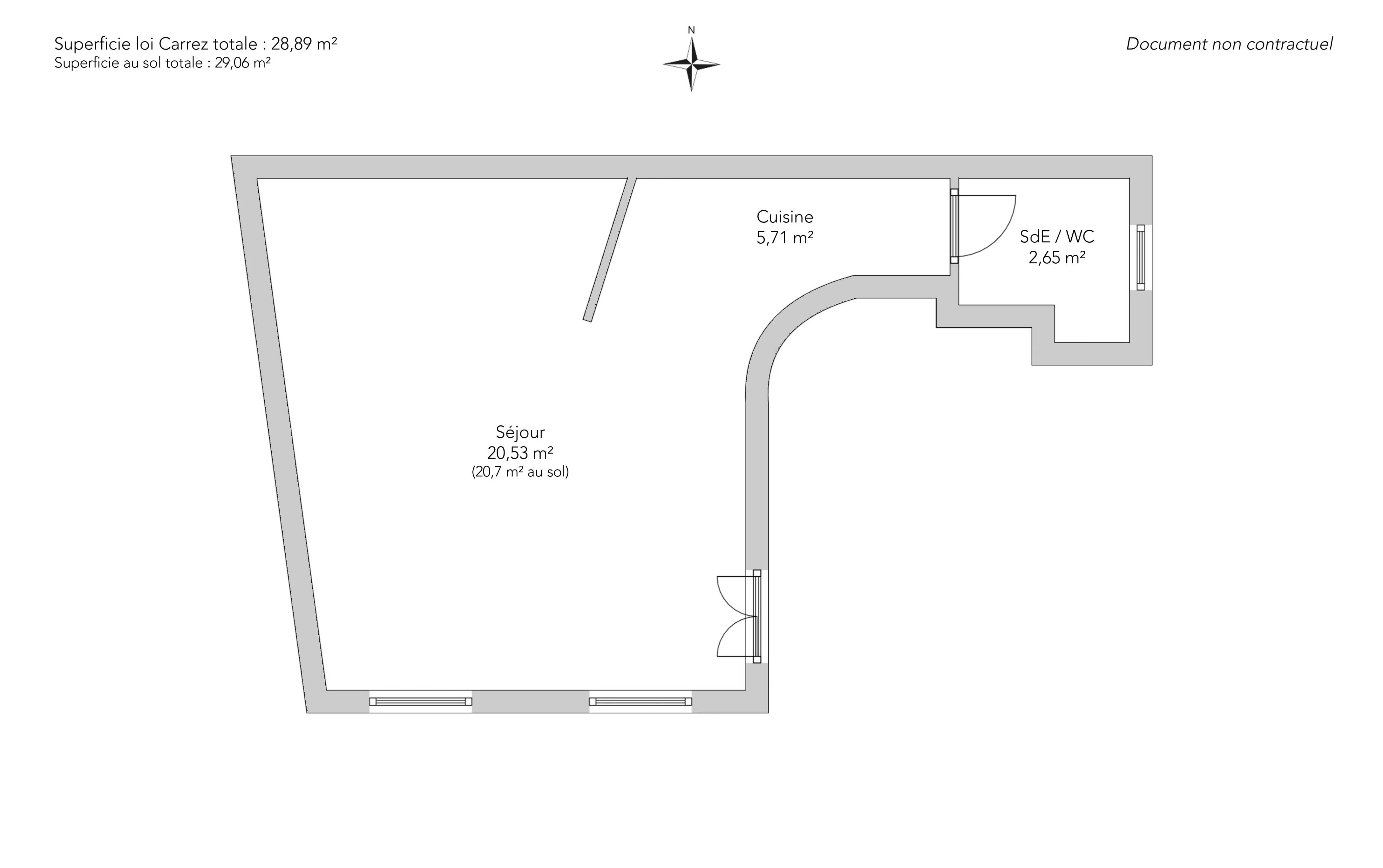
On the fifth floor by elevator of a beautiful stone building renovated in 2025, magnificent studio apartment in perfect condition, 28.89sqm loi Carrez.
Set in a quiet courtyard, the apartment benefits from plenty of natural light and incoming sunlight thanks to its southern exposure.
Renovated by an architect, it is fully equipped and sold furnished.
- Habitable : 310,97 Sq Ft Total : 312,80 Sq Ft
- 1 room
- suite
- 1 shower room
- Floor 5/7
- Orientation South
- Excellent condition
What seduced us
- Luminous
- Calm
- Elevator
- Open view
We say more
Regulations & financial information
Information on the risks to which this property is exposed is available on the Géorisques website. : www.georisques.gouv.fr
| Diagnostics |
|---|
Final energy consumption : a - 60 kWh/m²/an.
Estimated annual energy costs for standard use: between 320,00 € and 470,00 € /year (including subscription).
Average energy price indexed to 01/01/2023.
| Financial elements |
|---|
Property tax : 532,00 € /an
Interior & exterior details
| Room | Surface | Detail |
|---|---|---|
| 1x Stay | 220.98 Sq Ft |
Floor : 5th Exposure : South Coating : Parquet |
| 1x Kitchen | 61.46 Sq Ft |
Floor : 5th Coating : Floor tile |
| 1x Shower room/toilet | 28.52 Sq Ft | Floor : 5th |
Services
Building & Co-ownership
| Building |
|---|
-
Built in : 1890
-
Number of floors : 7
-
Quality level : Standing
| Co-ownership |
|---|
11 housing lots
Procedure in progress : Non
Meet your agency
Simulator financing
Calculate the amount of the monthly payments on your home loan corresponding to the loan you wish to make.
FAI property price
440 000 €
€
per month
Do you have to sell to buy?
Our real estate consultants are at your disposal to estimate the value of your property. All our estimates are free of charge.
Estimate my propertyA living space to suit you
Junot takes you on a tour of the neighborhoods in which our agencies welcome you, and presents the specific features and good addresses.
Explore the neighborhoods












