Let's take an overview
Ad reference : 1978VHUVER
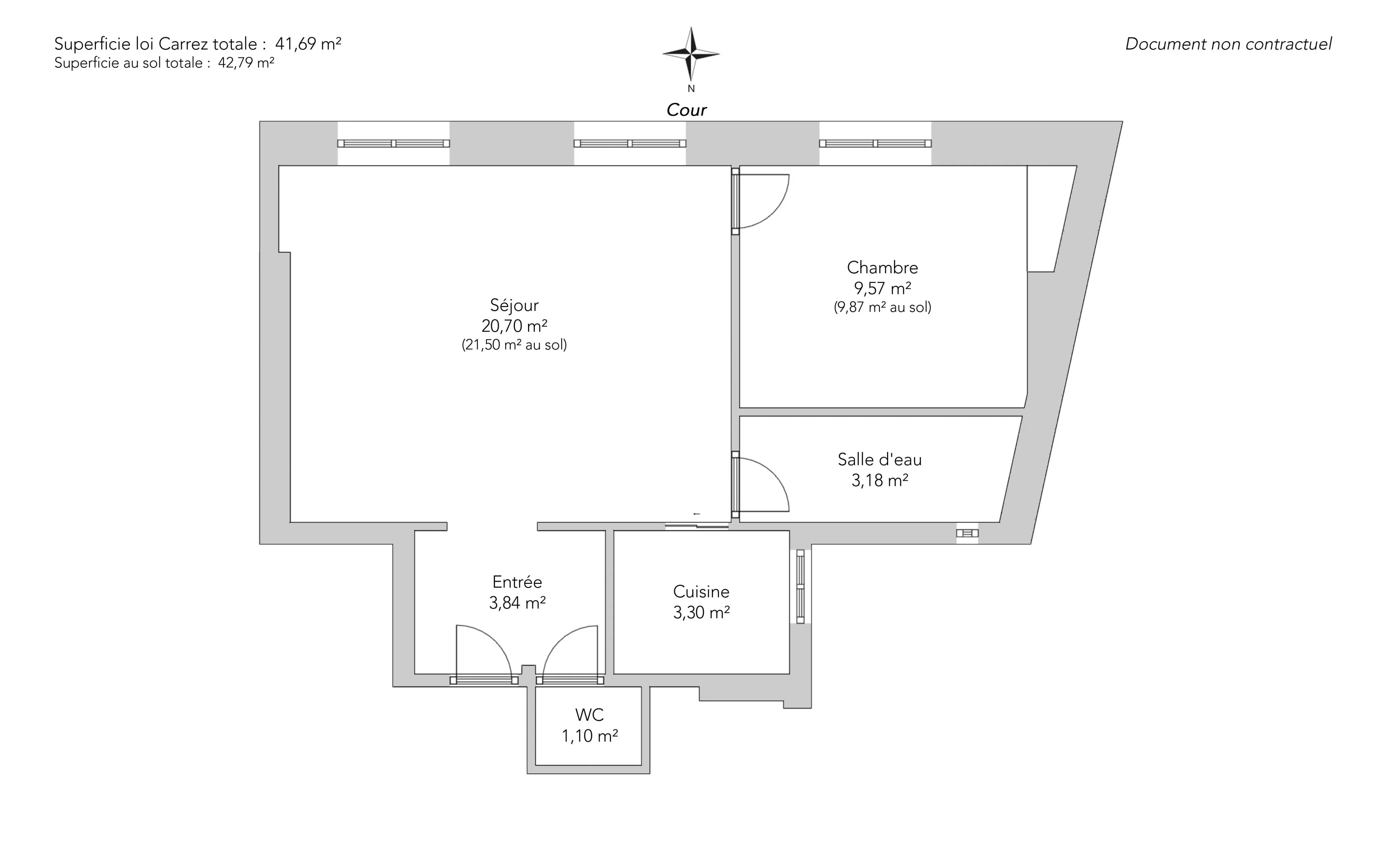
Located in the heart of the 16th arrondissement, halfway between Place de Mexico and Place Victor Hugo, this 41.69 sq m (Carrez Law) apartment is on the second floor (with elevator) of a very well-maintained building.
Overlooking a large courtyard and offering complete privacy, it comprises an entrance hall leading to a 20 sq m living room with two large south-facing windows and a bedroom with ample built-in storage. The kitchen is fully equipped, the shower room has a window, and there is a separate toilet.
The renovation is of high quality. The apartment benefits from a quiet setting and plenty of natural light.
In close proximity to the shops of Place Victor Hugo, public transport, and all the amenities of the neighborhood, this property enjoys a sought-after location in western Paris.
A cellar completes this property.
EXCLUSIVE.
- Habitable : 448,75 Sq Ft Total : 459,83 Sq Ft
- 2 rooms
- 1 bedroom
- 1 shower room
- Floor 2/4
- Orientation South
- Excellent condition
What seduced us
- Highly sought-after address
- Guardian
- Luminous
- Calm
- Elevator
- Cellar
- Open view
We say more
Regulations & financial information
Information on the risks to which this property is exposed is available on the Géorisques website. : www.georisques.gouv.fr
| Diagnostics |
|---|
Final energy consumption : C - 138 kWh/m²/an.
Estimated annual energy costs for standard use: between 1 070,00 € and 1 450,00 € /year (including subscription).
Average energy price indexed to 01/01/2023.
| Financial elements |
|---|
Property tax : 1 279,00 € /an
Interior & exterior details
| Room | Surface | Detail |
|---|---|---|
| 1x Cellar | ||
| 1x Entrance | 41.33 Sq Ft |
Floor : 2nd Ceiling : 2.78m |
| 1x Stay | 222.81 Sq Ft |
Floor : 2nd Exposure : South |
| 1x Bathroom | 11.84 Sq Ft | Floor : 2nd |
| 1x Kitchen | 35.52 Sq Ft | Floor : 2nd |
| 1x Bathroom | 34.23 Sq Ft | Floor : 2nd |
| 1x Bedroom | 103.01 Sq Ft | Floor : 2nd |
Services
Building
| Building |
|---|
-
Built in : 1860
-
Number of floors : 4
-
Quality level : Standing
Meet your agency
Simulator financing
Calculate the amount of the monthly payments on your home loan corresponding to the loan you wish to make.
FAI property price
585 000 €
€
per month
Do you have to sell to buy?
Our real estate consultants are at your disposal to estimate the value of your property. All our estimates are free of charge.
Estimate my propertyA living space to suit you
Junot takes you on a tour of the neighborhoods in which our agencies welcome you, and presents the specific features and good addresses.
Explore the neighborhoods













