• Exclusivity

Apartment
Paris 5e - PANTHÉON / MONTAGNE-SAINTE-GENEVIÈVE

690 000 €

Fees payable by the seller

Fee schedule Simulate your financing

Do you like this property?

Let's take an overview

Ad reference : 1995CHMSAR

In the heart of the Latin Quarter, in an environment steeped in history and particularly sought-after, discover this apartment ideally located on rue de la Montagne Sainte-Geneviève, in the immediate vicinity of the Pantheon and the grandes écoles.

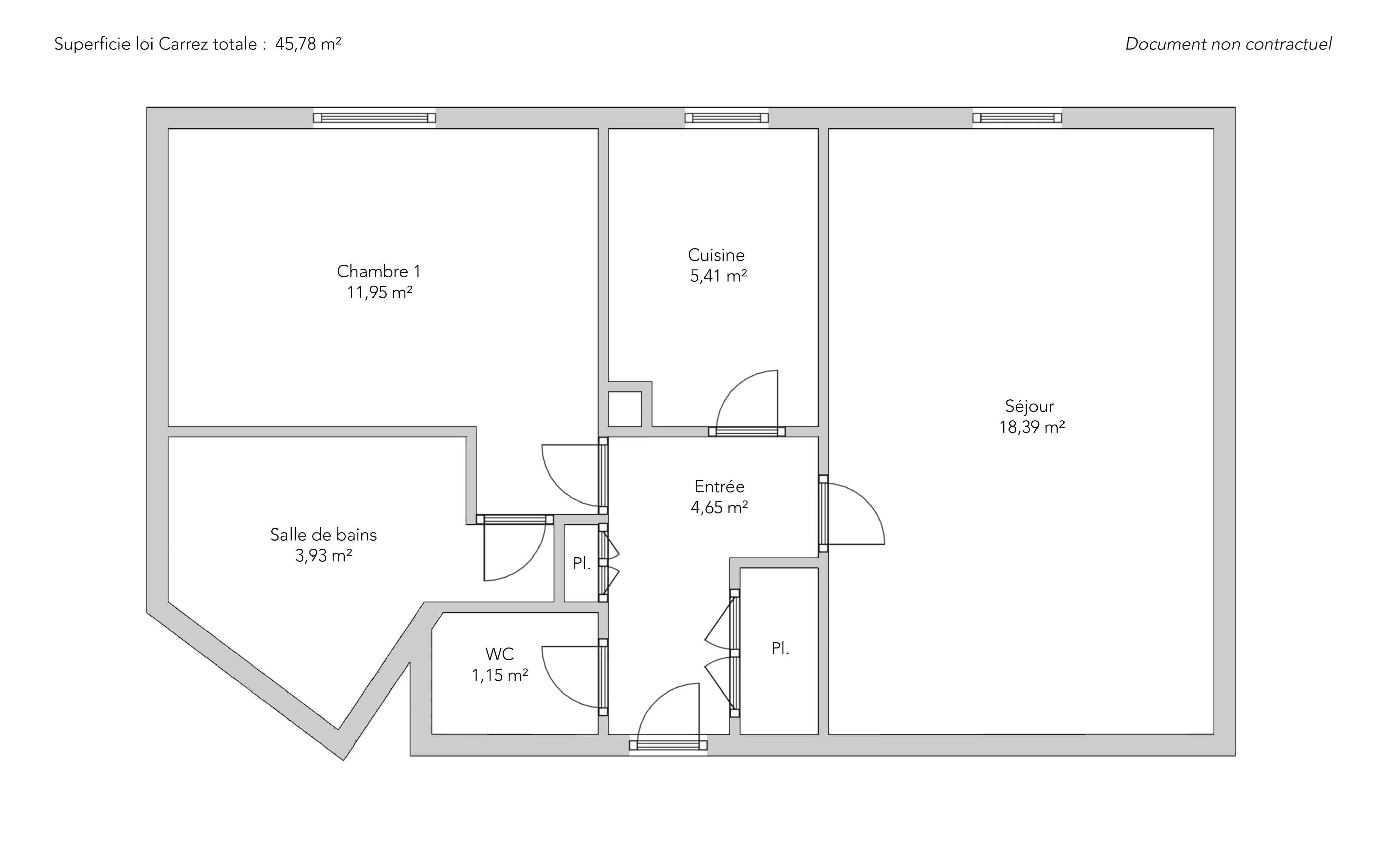
On the second floor by elevator of a well-maintained renovated building, this 45,48sqm loi Carrez apartment features an entrance hall leading to a pleasant living room, a separate kitchen with the option of opening onto the living room, a comfortable bedroom, a shower room and a separate toilet.

The apartment benefits from a functional layout and a basement cellar, ideal for storage.

An exceptional location, just a stone's throw from shops, transport and prestigious establishments, this offer is ideal for a pied-à-terre, a first purchase or a quality rental investment.

EXCLUSIVE.

  • Habitable : 489,54 Sq Ft Total : 492,77 Sq Ft
  • 2 rooms
  • 1 bedroom
  • 1 bathroom
  • Floor 2/3
  • Orientation South
  • To refresh

What seduced us

  • Exceptional view
  • Highly sought-after address
  • Calm
  • Elevator
  • Cellar

We say more

Regulations & financial information

Information on the risks to which this property is exposed is available on the Géorisques website. : www.georisques.gouv.fr


Diagnostics

DPE Graph GES Graph

Final energy consumption : C - 147 kWh/m²/an.
Estimated annual energy costs for standard use: between 550,00 € and 800,00 € /year (including subscription).
Average energy price indexed to 01/01/2023.


Financial elements
Average annual amount of the share of current charges : 4 380 €

Property tax : 1 248,00 € /an

Interior & exterior details

Room Surface Detail
1x Cellar Floor : Basement
1x Entrance 50.05 Sq Ft Floor : 2nd
1x Stay 197.95 Sq Ft Floor : 2nd
1x Equipped kitchen 58.23 Sq Ft Floor : 2nd
1x Bedroom 128.63 Sq Ft Floor : 2nd
1x Bathroom 42.3 Sq Ft Floor : 2nd
1x Bathroom 12.38 Sq Ft Floor : 2nd

Services

☑ Internet
☑ Elevator
☑ Intercom
☑ Reinforced door
☑ Videophone
☑ Digicode
☑ Triple glazing
☑ Optical fiber
☑ Single flow ventilation
☑ PVC window

Building & Co-ownership

Building
  • Built in : 1975
  • Type : Reinforced concrete
  • Number of floors : 3
  • Quality level : Normal

Co-ownership

71 housing lots
Average annual amount of the share of current charges : 4 380 €
Procedure in progress : Non

Simulator financing

Calculate the amount of the monthly payments on your home loan corresponding to the loan you wish to make.

FAI property price

690 000 €

This calculation takes into account registration fees of 7%.

per month

This is a simulation, only your bank can give you a precise value. Our consultants are at your disposal to support you.
Be contacted

You may also be interested in these properties

    Do you have to sell to buy?

    Our real estate consultants are at your disposal to estimate the value of your property. All our estimates are free of charge.

    Estimate my property

    A living space to suit you

    Junot takes you on a tour of the neighborhoods in which our agencies welcome you, and presents the specific features and good addresses.

    Explore the neighborhoods
I would like to visit
Do you really want to leave the page?
Do you really want to leave the page?
Do you really want to leave the page?
Do you really want to leave the page?
Do you really want to leave the page?
Do you really want to leave the page?
Do you really want to leave the page?
Do you really want to leave the page?
Do you really want to leave the page?
Do you really want to leave the page?
Do you really want to leave the page?