Let's take an overview
Ad reference : 1989CHMHEN
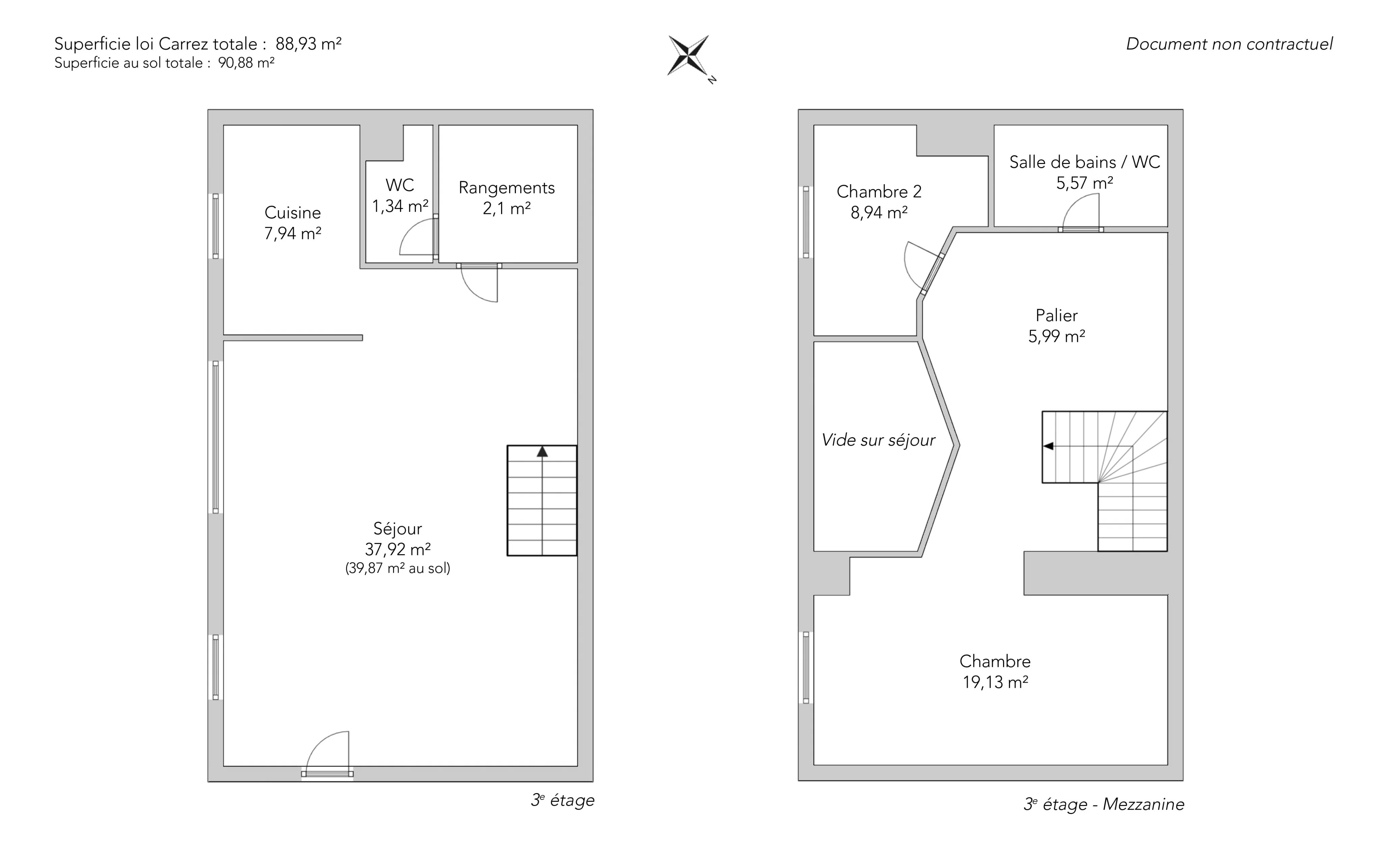
Rue du Cherche-Midi, near the Carrefour de la Croix-Rouge, on the third floor by staircase of an elegant old building, an artist's studio of 88.93sqm loi Carrez and 90.88sqm on the ground.
Located in one of the most sought-after areas of the 6th arrondissement, this apartment enjoys a lively and refined environment, with galleries, bookshops, historic cafés and confidential addresses. Rue du Cherche-Midi has a discreet elegance and an unspoilt residential atmosphere.
The apartment features a mezzanine floor plan that reflects the style of an artist's studio: spacious open spaces, high ceilings and generous natural light.
The first level features a well-balanced double reception room, a separate kitchen and a guest toilet.
An interior staircase leads to the mezzanine. The second level features a landing leading to two bedrooms and a bathroom with toilet. The layout offers a clear separation between reception and sleeping areas.
The apartment enjoys an unobstructed view over a tree-lined courtyard, in absolute calm, away from the hustle and bustle of the neighborhood. This location gives the apartment a peaceful atmosphere, rare at this address.
A cellar completes this offer.
- Habitable : 957,23 Sq Ft Total : 978,22 Sq Ft
- 3 rooms
- 2 bedrooms
- 1 bathroom
- Floor 3/4
- Orientation South East
- To refresh
What seduced us
- Highly sought-after address
- Luminous
- Calm
We say more
Regulations & financial information
Information on the risks to which this property is exposed is available on the Géorisques website. : www.georisques.gouv.fr
| Diagnostics |
|---|
Final energy consumption : a - 114 kWh/m²/an.
Estimated annual energy costs for standard use: between 1 800,00 € and 2 470,00 € /year (including subscription).
Average energy price indexed to 01/01/2023.
| Financial elements |
|---|
Property tax : 1 418,00 € /an
Interior & exterior details
| Room | Surface | Detail |
|---|---|---|
| 1x Stay | 408.17 Sq Ft | Floor : 3rd |
| 1x Kitchen | 85.47 Sq Ft | Floor : 3rd |
| 1x Clearance | 22.6 Sq Ft | Floor : 3rd |
| 1x Bathroom | 14.42 Sq Ft | Floor : 3rd |
| 1x Landing | 64.48 Sq Ft | Floor : 3rd |
| 1x Bedroom | 205.91 Sq Ft | Floor : 3rd |
| 1x Bedroom | 96.23 Sq Ft | Floor : 3rd |
| 1x Bathroom/toilet | 59.95 Sq Ft | Floor : 3rd |
Services
Building & Co-ownership
| Building |
|---|
-
Built in : 1800
-
Type : cut stone
-
Number of floors : 4
| Co-ownership |
|---|
44 housing lots
Average annual amount of the share of current charges : 888 €
Procedure in progress : Non
Meet your agency
Simulator financing
Calculate the amount of the monthly payments on your home loan corresponding to the loan you wish to make.
FAI property price
1 415 000 €
€
per month
Do you have to sell to buy?
Our real estate consultants are at your disposal to estimate the value of your property. All our estimates are free of charge.
Estimate my propertyA living space to suit you
Junot takes you on a tour of the neighborhoods in which our agencies welcome you, and presents the specific features and good addresses.
Explore the neighborhoods












