Let's take an overview
Ad reference : 3581GRECOL
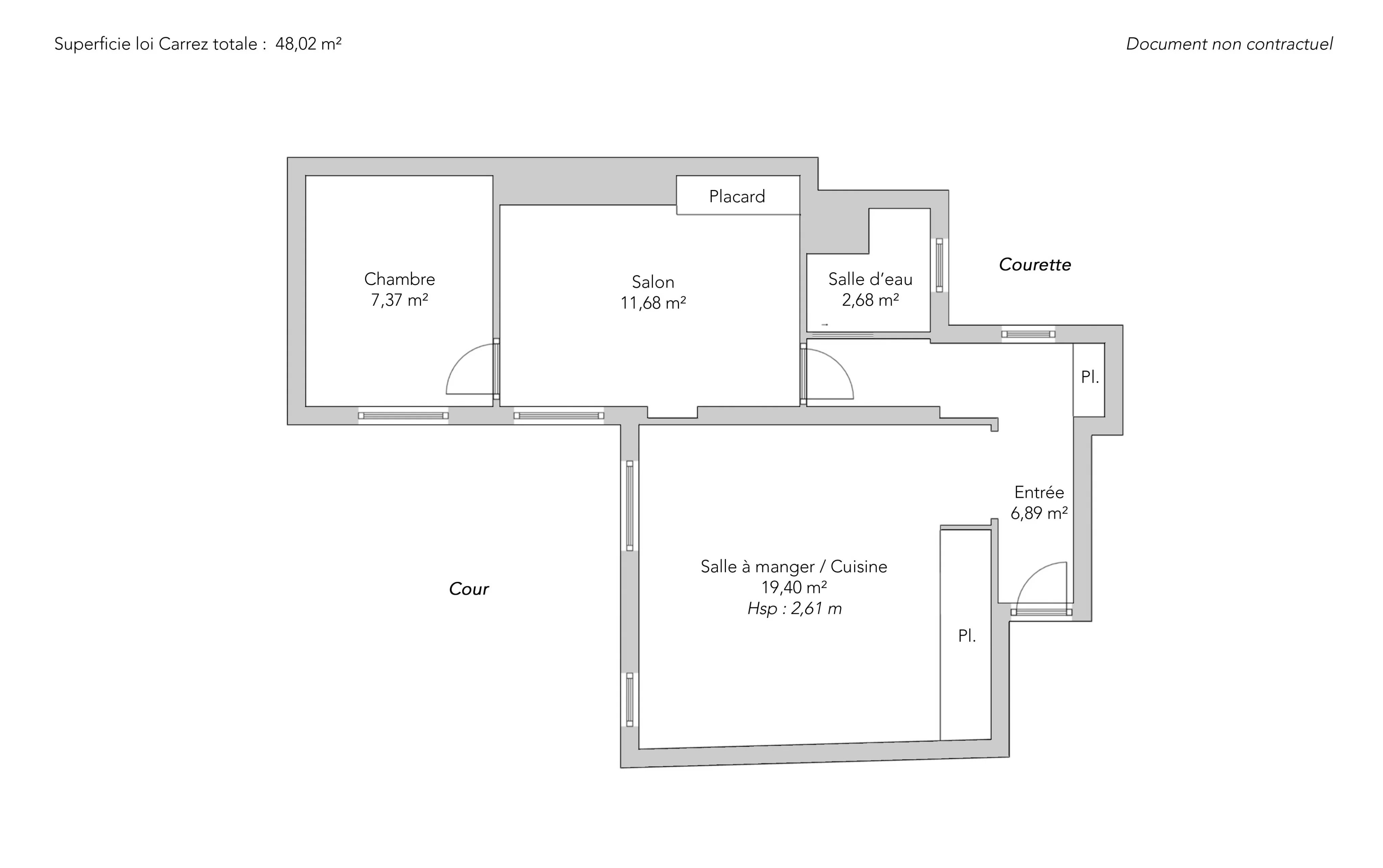
Ideally located in the heart of the Gros Caillou district and close to all amenities, rue Saint-Dominique, this beautiful three-room apartment (48.02sqm loi Carrez) is on the third floor (by elevator) of a charming old condominium with janitor.
It comprises an entrance hall, living room, dining room with open-plan fitted and equipped kitchen, bedroom and shower room with toilet. A second bedroom can easily be converted from one of the two living rooms.
The property, in excellent general condition, is bright and sunny, very quiet and overlooks a pretty, large wooded courtyard.
- Habitable : 516,88 Sq Ft
- 3 rooms
- 1 bedroom
- 1 shower room
- Floor 3/5
- Orientation North, West
- Good condition
What seduced us
- Guardian
- Luminous
- Calm
- Elevator
We say more
Regulations & financial information
Information on the risks to which this property is exposed is available on the Géorisques website. : www.georisques.gouv.fr
| Diagnostics |
|---|
Final energy consumption : a - 245 kWh/m²/an.
Climate class: E - estimated emissions 54 kg CO₂/m²·yr
Estimated annual energy costs for standard use: between 690,00 € and 970,00 € /year (including subscription).
Average energy price indexed to 01/01/2023.
| Financial elements |
|---|
Property tax : 990,00 € /an
Interior & exterior details
| Room | Surface | Detail |
|---|---|---|
| 1x Entrance | 74.16 Sq Ft | Floor : 3rd |
| 1x Dining room/Kitchen | 208.82 Sq Ft | Floor : 3rd |
| 1x Living room | 125.72 Sq Ft | Floor : 3rd |
| 1x Bedroom | 79.33 Sq Ft | Floor : 3rd |
| 1x Shower room/toilet | 28.85 Sq Ft | Floor : 3rd |
Services
Building & Co-ownership
| Building |
|---|
-
Built in : 1850
-
Number of floors : 5
-
Quality level : Standing
| Co-ownership |
|---|
301 housing lots
Average annual amount of the share of current charges : 1 860 €
Procedure in progress : Non
Meet your agency
Simulator financing
Calculate the amount of the monthly payments on your home loan corresponding to the loan you wish to make.
FAI property price
695 000 €
€
per month
Do you have to sell to buy?
Our real estate consultants are at your disposal to estimate the value of your property. All our estimates are free of charge.
Estimate my propertyA living space to suit you
Junot takes you on a tour of the neighborhoods in which our agencies welcome you, and presents the specific features and good addresses.
Explore the neighborhoods












