Let's take an overview
Ad reference : 3293GREGEN-2
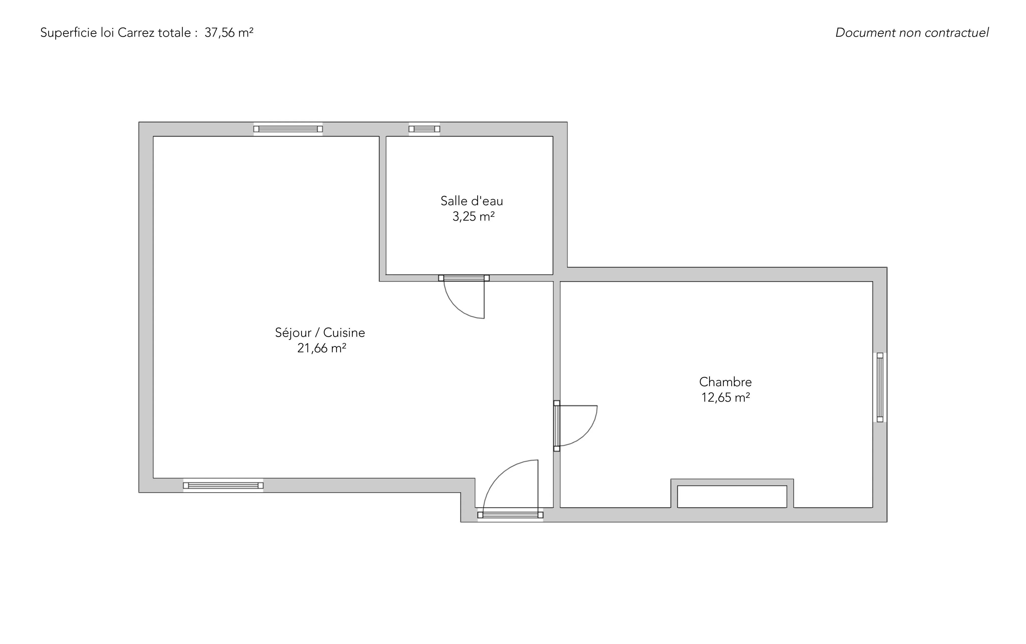
A stone's throw from the Esplanade des Invalides, in a sumptuous condominium with a caretaker, this two-room apartment measuring 37.14sqm Carrez law charms with its absolute calm and elegance.
Located on the first floor with lift access, it enjoys a view of the inner courtyard and a peaceful atmosphere, rare in the heart of the 7th arrondissement.
Completely and carefully renovated, the apartment offers a living room with a perfectly integrated open kitchen that combines aesthetics and functionality. The bedroom is intimate and comfortable. A contemporary shower room with toilet completes this property.
Its prestigious address, the quality of its layout and the harmony of its spaces make it an ideal pied-à-terre or a quality investment in one of the most sought-after neighbourhoods on the Left Bank.
- Habitable : 399,77 Sq Ft
- 2 rooms
- 1 bedroom
- 1 bathroom
- Floor 1/4
- Fireplace
- Orientation East
- Excellent condition
What seduced us
- Highly sought-after address
- Guardian
- Calm
- Crossing
- Elevator
We say more
Regulations & financial information
Information on the risks to which this property is exposed is available on the Géorisques website. : www.georisques.gouv.fr
| Diagnostics |
|---|
Final energy consumption : C - 181 kWh/m²/an.
Logement à consommation énergétique excessive : classe F
Average energy price indexed to 01/01/2021.
| Financial elements |
|---|
Interior & exterior details
| Room | Surface | Detail |
|---|---|---|
| 1x Living room/kitchen | 229.27 Sq Ft | Floor : 1st |
| 1x Bathroom | 34.98 Sq Ft | Floor : 1st |
| 1x Bedroom | 135.52 Sq Ft |
Floor : 1st Ceiling : 4.3m |
Services
Building & Co-ownership
| Building |
|---|
-
Built in : 1880
-
Type : cut stone
-
Number of floors : 4
-
Quality level : Standing
| Co-ownership |
|---|
14 housing lots
Procedure in progress : Non
Meet your agency
Simulator financing
Calculate the amount of the monthly payments on your home loan corresponding to the loan you wish to make.
FAI property price
720 000 €
€
per month
Do you have to sell to buy?
Our real estate consultants are at your disposal to estimate the value of your property. All our estimates are free of charge.
Estimate my propertyA living space to suit you
Junot takes you on a tour of the neighborhoods in which our agencies welcome you, and presents the specific features and good addresses.
Explore the neighborhoods












