Let's take an overview
Ad reference : 3042ABBRAF93
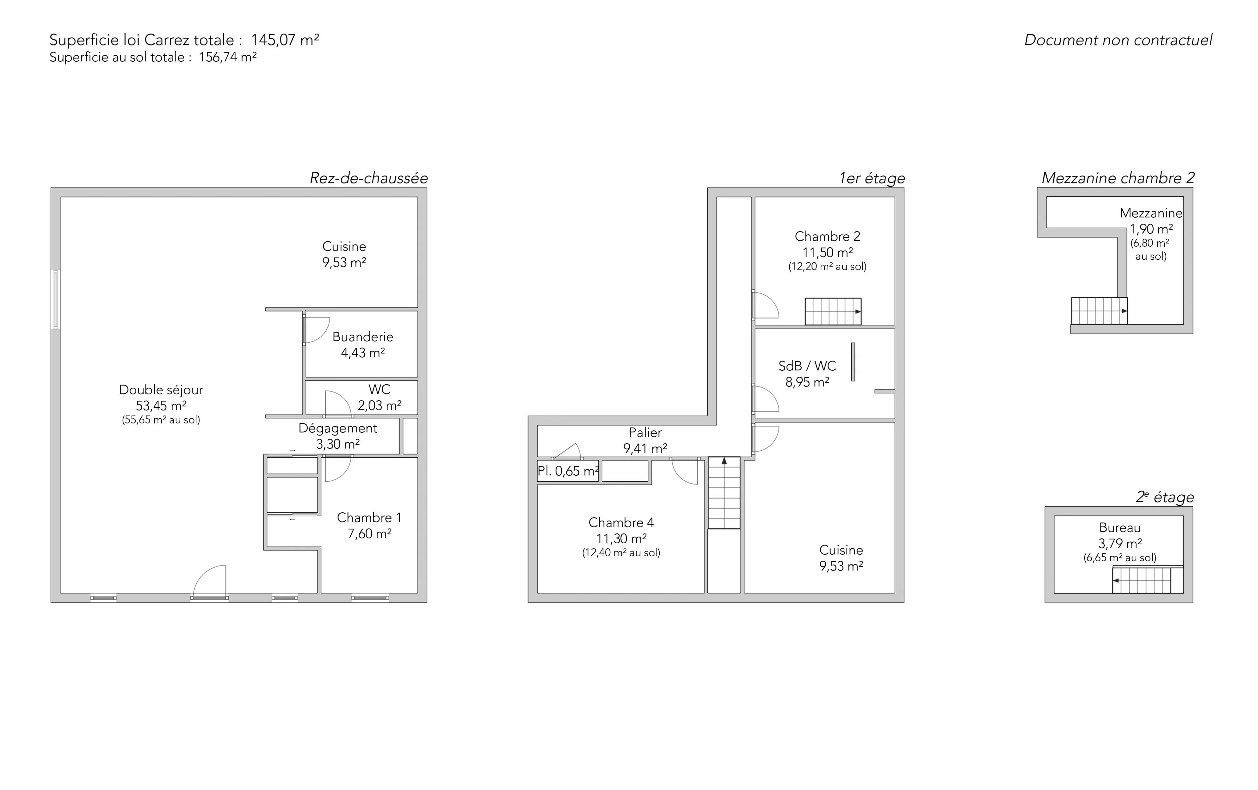
Within a recent, pleasant and secure co-ownership, this 145.07sqm industrial and contemporary style workshop loft offers vast open spaces and exceptional brightness thanks to its cathedral ceiling of more than ten meters high. On the ground floor, a spectacular living space includes a vast living room of approximately 60sqm combining lounge and open kitchen. Adjoining this main space, an office that can be used as a bedroom accompanied by its separate toilet, offers flexibility of use. Upstairs on the mezzanine: three spacious bedrooms, a bathroom equipped with toilet serve this space. On the top level, a mezzanine-office dominates the entire loft, offering an inspiring workspace with a breathtaking view of the living room and its impressive ceiling height.
- Habitable : 1 561,52 Sq Ft Total : 1 687,13 Sq Ft
- 6 rooms
- 4 bedrooms
- 1 bathroom
- Orientation South East, North West
- Excellent condition
What seduced us
- Luminous
- Calm
- Crossing
We say more
Regulations & financial information
Information on the risks to which this property is exposed is available on the Géorisques website. : www.georisques.gouv.fr
| Diagnostics |
|---|
Final energy consumption : C - 145 kWh/m²/an.
Estimated annual energy costs for standard use: between 2 060,00 € and 2 830,00 € /year (including subscription).
| Financial elements |
|---|
Property tax : 2 534,00 € /an
Interior & exterior details
| Room | Surface | Detail |
|---|---|---|
| 1x Double reception | 575.33 Sq Ft |
Floor : Ground floor Coating : Parquet |
| 1x Kitchen | 102.58 Sq Ft |
Floor : Ground floor Coating : Floor tile |
| 1x Laundry room | 47.68 Sq Ft | Floor : Ground floor |
| 1x Bathroom | 21.85 Sq Ft | Floor : Ground floor |
| 1x Bedroom | 81.81 Sq Ft |
Floor : Ground floor Coating : Parquet |
| 1x Clearance | 35.52 Sq Ft |
Floor : Ground floor Coating : Parquet |
| 1x Landing | 101.29 Sq Ft |
Floor : 1st Coating : Concrete |
| 1x Bathroom/toilet | 96.34 Sq Ft |
Floor : 1st Coating : Floor tile |
| 1x Bedroom | 123.78 Sq Ft |
Floor : 1st Coating : Parquet |
| 1x Bedroom | 185.46 Sq Ft |
Floor : 1st Coating : Parquet |
| 1x Bedroom | 121.63 Sq Ft |
Floor : 1st Coating : Parquet |
| 1x Closet | 7 Sq Ft | Floor : 1st |
| 1x Mezzanine | 20.45 Sq Ft |
Floor : 1st Coating : Concrete |
| 1x Desk | 40.8 Sq Ft |
Floor : 2nd Coating : Concrete |
Services
Building & Co-ownership
| Building |
|---|
-
Built in : 2007
-
Type : Brick
-
Number of floors : 2
-
Quality level : Standing
| Co-ownership |
|---|
Average annual amount of the share of current charges : 1 880 €
Procedure in progress : Non
Meet your agency
Simulator financing
Calculate the amount of the monthly payments on your home loan corresponding to the loan you wish to make.
FAI property price
950 000 €
€
per month
Do you have to sell to buy?
Our real estate consultants are at your disposal to estimate the value of your property. All our estimates are free of charge.
Estimate my propertyA living space to suit you
Junot takes you on a tour of the neighborhoods in which our agencies welcome you, and presents the specific features and good addresses.
Explore the neighborhoods









