Let's take an overview
Ad reference : 2212PASCAS
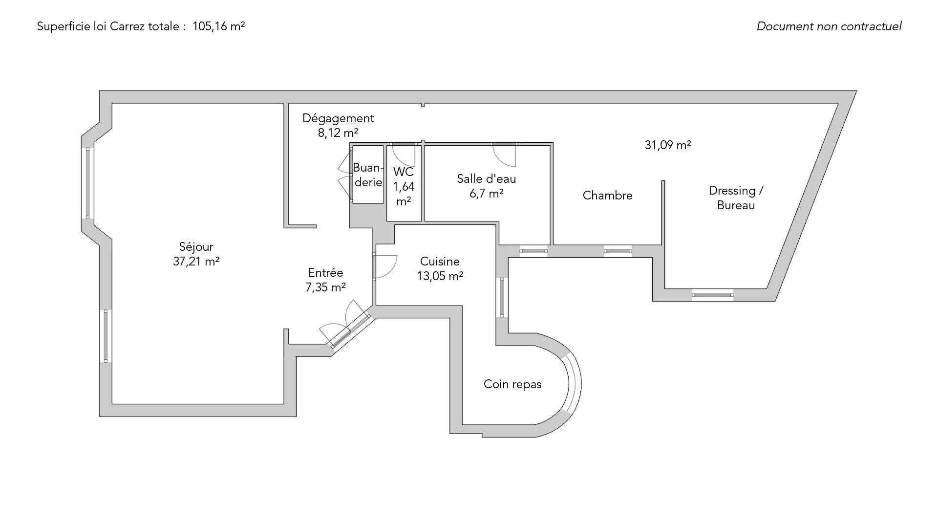
On the fourth floor with elevator of a very attractive, perfectly maintained and refurbished 1930 building, 105.16sqm Carrez apartment entirely renovated with quality materials.
The layout comprises an entrance hall, a double living room opening onto the street with balconies, a beautiful kitchen/dining room, then a vast master suite with bathroom and large study with dressing room. A second bedroom is possible.
Plenty of made-to-measure storage space.
Crossing east/west.
A cellar completes this property.
Additional parking is available in the building.
- Habitable : 1 131,93 Sq Ft
- 4 rooms
- 1 bedroom
- 1 shower room
- Floor 4/6
- Orientation East , West
- Excellent condition
What seduced us
- Balcony/Terrace
- Calm
- Crossing
- Elevator
- Cellar
We say more
Regulations & financial information
Information on the risks to which this property is exposed is available on the Géorisques website. : www.georisques.gouv.fr
| Diagnostics |
|---|
Final energy consumption : B - 85 kWh/m²/an.
Estimated annual energy costs for standard use: between 1 020,00 € and 1 400,00 € /year (including subscription).
Average energy price indexed to 01/01/2021.
| Financial elements |
|---|
Property tax : 2 854,00 € /an
Interior & exterior details
| Room | Surface | Detail |
|---|---|---|
| 1x Cellar | ||
| 1x Entrance | 79.11 Sq Ft | Floor : 4th |
| 1x Stay | 400.52 Sq Ft | Floor : 4th |
| 1x Balcony | 8.72 Sq Ft | Floor : 4th |
| 1x Balcony | 6.78 Sq Ft | Floor : 4th |
| 1x Kitchen | 140.47 Sq Ft | Floor : 4th |
| 1x Clearance | 87.4 Sq Ft | Floor : 4th |
| 1x Bedroom | 334.65 Sq Ft | Floor : 4th |
| 1x Bathroom | 72.12 Sq Ft | Floor : 4th |
| 1x Bathroom | 17.65 Sq Ft | Floor : 4th |
Services
Building & Co-ownership
| Building |
|---|
-
Built in : 1931
-
Type : cut stone
-
Number of floors : 6
| Co-ownership |
|---|
27 housing lots
Average annual amount of the share of current charges : 3 780 €
Procedure in progress : Non
Meet your agency
Simulator financing
Calculate the amount of the monthly payments on your home loan corresponding to the loan you wish to make.
FAI property price
990 000 €
€
per month
Do you have to sell to buy?
Our real estate consultants are at your disposal to estimate the value of your property. All our estimates are free of charge.
Estimate my propertyA living space to suit you
Junot takes you on a tour of the neighborhoods in which our agencies welcome you, and presents the specific features and good addresses.
Explore the neighborhoods











