Let's take an overview
Ad reference : 5672JASPAS
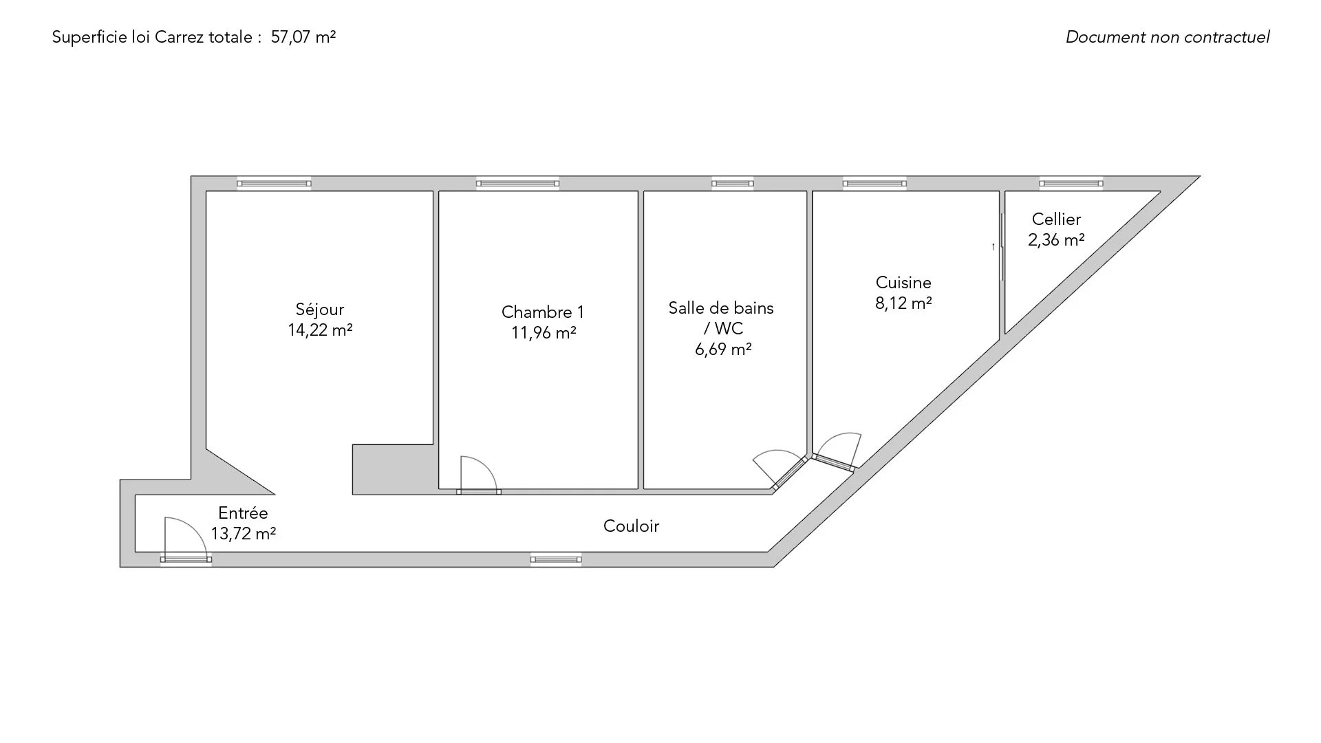
Located on the top floor by elevator, this elegant 57.01sqm Carrez apartment features an unobstructed view and plenty of natural light. In perfect condition, it combines modern comfort with old-world charm, thanks in particular to its beautiful parquet flooring, which adds warmth and authenticity.
It features a bright living room, a quiet bedroom, a functional kitchen with an adjoining room ideal for storage, and a recently refurbished bathroom.
Its optimized layout and complementary spaces make it a practical and pleasant place to live every day.
Ideally located close to shops and transport, it offers a sought-after living environment, combining practicality and serenity.
A rare apartment, ready to welcome its new owners.
A cellar completes this property.
EXCLUSIVE
- Habitable : 613,65 Sq Ft
- 2 rooms
- 1 bedroom
- 1 bathroom
- Floor 6/6
- Orientation North
- Excellent condition
What seduced us
- Last floor
- Crossing
- Elevator
- Cellar
- Open view
We say more
Regulations & financial information
Information on the risks to which this property is exposed is available on the Géorisques website. : www.georisques.gouv.fr
| Diagnostics |
|---|
Final energy consumption : F - 332 kWh/m²/an.
Logement à consommation énergétique excessive : classe F
Estimated annual energy costs for standard use: between 1 540,00 € and 2 100,00 € /year (including subscription).
Average energy price indexed to 01/01/2021.
| Financial elements |
|---|
Interior & exterior details
| Room | Surface | Detail |
|---|---|---|
| 1x Cellar | ||
| 1x Stay | 153.06 Sq Ft | Floor : 6th |
| 1x Bedroom | 128.74 Sq Ft | Floor : 6th |
| 1x Equipped kitchen | 87.4 Sq Ft | Floor : 6th |
| 1x Bathroom/toilet | 72.01 Sq Ft | Floor : 6th |
| 1x Laundry room | 25.4 Sq Ft | Floor : 6th |
| 1x Clearance | 147.68 Sq Ft | Floor : 6th |
Services
Building & Co-ownership
| Building |
|---|
-
Built in : 1938
-
Number of floors : 6
| Co-ownership |
|---|
Average annual amount of the share of current charges : 2 952 €
Procedure in progress : Non
Meet your agency
Simulator financing
Calculate the amount of the monthly payments on your home loan corresponding to the loan you wish to make.
FAI property price
480 000 €
€
per month
Do you have to sell to buy?
Our real estate consultants are at your disposal to estimate the value of your property. All our estimates are free of charge.
Estimate my propertyA living space to suit you
Junot takes you on a tour of the neighborhoods in which our agencies welcome you, and presents the specific features and good addresses.
Explore the neighborhoods













