Let's take an overview
Ad reference : 2205PASTHI
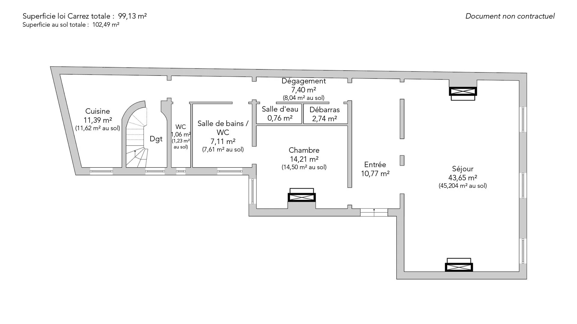
Highly sought-after format for this elegant 99.14sqm Carrez apartment on the ground floor of an elegant, secure condominium with live-in janitor.
Light and airy, the layout features a vast 43sqm double living room (easily convertible into a second bedroom while retaining pleasant reception areas), separate kitchen, bedroom, bathroom, hallway with laundry area and separate toilet.
Parisian charm.
A cellar completes this property.
EXCLUSIVE
- Habitable : 1 067,13 Sq Ft
- 3 rooms
- 2 bedrooms
- 1 bathroom
- 1 shower room
- Fireplace
- Orientation South
- To refresh
What seduced us
- Highly sought-after address
- Guardian
- Calm
- Crossing
- Cellar
We say more
Regulations & financial information
Information on the risks to which this property is exposed is available on the Géorisques website. : www.georisques.gouv.fr
| Diagnostics |
|---|
Final energy consumption : D - 193.3 kWh/m²/an.
Estimated annual energy costs for standard use: between 1 800,00 € and 2 450,00 € /year (including subscription).
Average energy price indexed to 01/01/2021.
| Financial elements |
|---|
Interior & exterior details
| Room | Surface | Detail |
|---|---|---|
| 2x Cellar | ||
| 1x Bedroom | ||
| 1x Entrance | 115.93 Sq Ft | Floor : Ground floor |
| 1x Stay | 469.84 Sq Ft | Floor : Ground floor |
| 1x Kitchen | 122.71 Sq Ft | Floor : Ground floor |
| 1x Bedroom | 153.06 Sq Ft | Floor : Ground floor |
| 1x Bathroom/toilet | 76.64 Sq Ft | Floor : Ground floor |
| 1x Bathroom | 8.29 Sq Ft | Floor : Ground floor |
| 1x Bathroom | 11.52 Sq Ft | Floor : Ground floor |
| 1x Clearance | 79.65 Sq Ft | Floor : Ground floor |
| 1x Clearance | 29.49 Sq Ft | Floor : Ground floor |
Services
Building & Co-ownership
| Building |
|---|
-
Built in : 1904
-
Number of floors : 6
| Co-ownership |
|---|
28 housing lots
Average annual amount of the share of current charges : 3 444 €
Procedure in progress : Non
Meet your agency
Simulator financing
Calculate the amount of the monthly payments on your home loan corresponding to the loan you wish to make.
FAI property price
1 090 000 €
€
per month
Do you have to sell to buy?
Our real estate consultants are at your disposal to estimate the value of your property. All our estimates are free of charge.
Estimate my propertyA living space to suit you
Junot takes you on a tour of the neighborhoods in which our agencies welcome you, and presents the specific features and good addresses.
Explore the neighborhoods










