Let's take an overview
Ad reference : 3293GREGEN
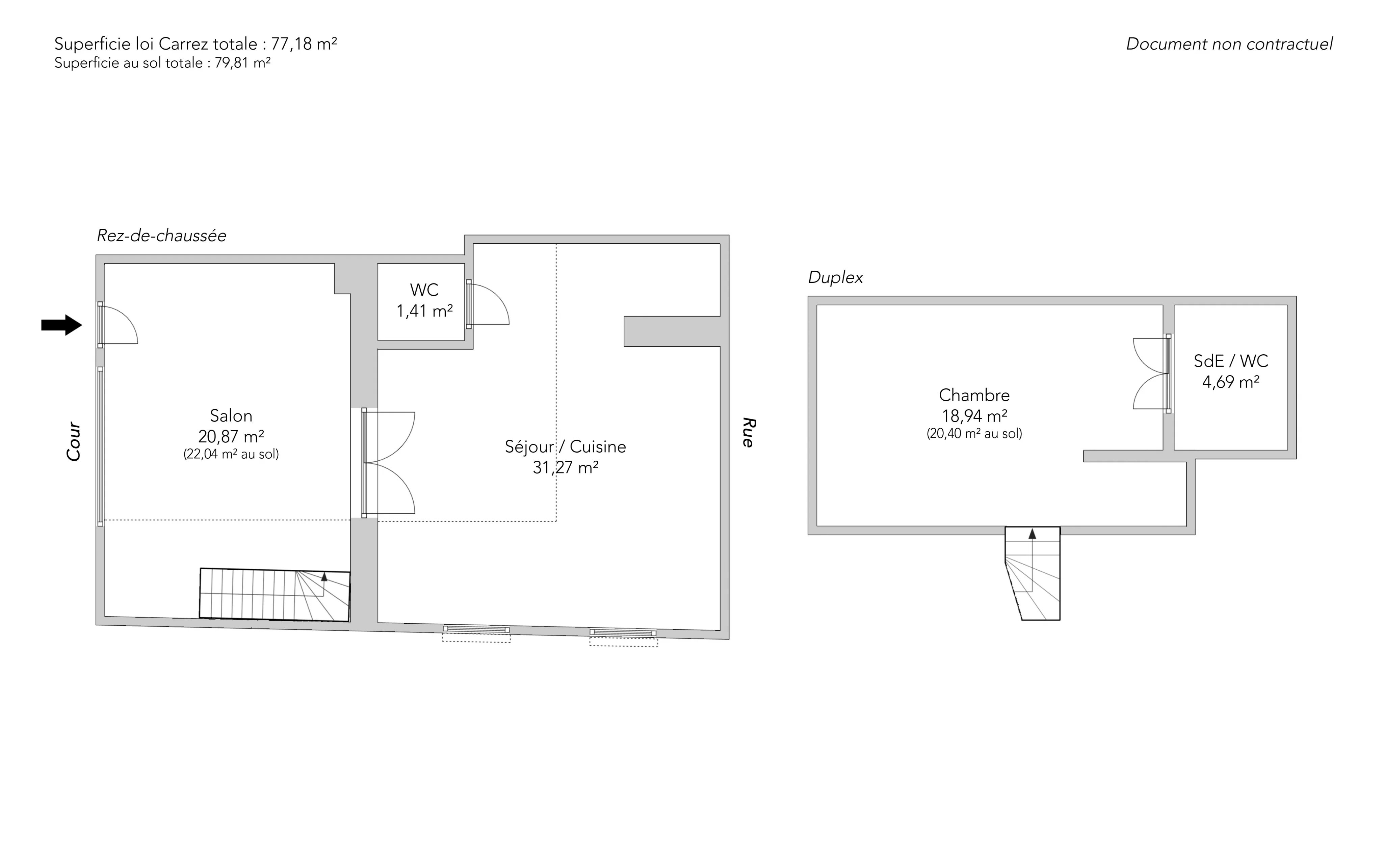
A few meters from the Esplanade des Invalides, in a sumptuous condominium with janitor, a three-room apartment of 77.18sqm loi Carrez and 79.81sqm on the ground, in perfect condition.
Set in a quiet courtyard, it comprises two levels. On the main level, a living room with open-plan kitchen and separate toilet.
A souplex as a bedroom with a superb shower room and toilet.
- Habitable : 830,76 Sq Ft Total : 859,07 Sq Ft
- 3 rooms
- 1 bedroom
- 1 bathroom
- Fireplace
- Orientation East
- Excellent condition
What seduced us
- Highly sought-after address
- Guardian
- Calm
- Elevator
We say more
Regulations & financial information
Information on the risks to which this property is exposed is available on the Géorisques website. : www.georisques.gouv.fr
| Diagnostics |
|---|
Final energy consumption : a - 73 kWh/m²/an.
Estimated annual energy costs for standard use: between 981,00 € and 1 150,00 € /year (including subscription).
Average energy price indexed to 01/01/2021.
| Financial elements |
|---|
Property tax : 3 969,00 € /an
Interior & exterior details
| Room | Surface | Detail |
|---|---|---|
| 1x Bedroom | 203.87 Sq Ft | Floor : Basement |
| 1x Bathroom/toilet | 50.48 Sq Ft | Floor : Basement |
| 1x Living room | 224.64 Sq Ft | Floor : Ground floor |
| 1x Living room/kitchen | 336.59 Sq Ft | Floor : Ground floor |
| 1x Bathroom | 15.18 Sq Ft | Floor : Ground floor |
Services
Building & Co-ownership
| Building |
|---|
-
Built in : 1880
-
Type : cut stone
-
Number of floors : 4
-
Quality level : Standing
| Co-ownership |
|---|
14 housing lots
Procedure in progress : Non
Meet your agency
Simulator financing
Calculate the amount of the monthly payments on your home loan corresponding to the loan you wish to make.
FAI property price
1 090 000 €
€
per month
Do you have to sell to buy?
Our real estate consultants are at your disposal to estimate the value of your property. All our estimates are free of charge.
Estimate my propertyA living space to suit you
Junot takes you on a tour of the neighborhoods in which our agencies welcome you, and presents the specific features and good addresses.
Explore the neighborhoods












