Let's take an overview
Ad reference : OA1124POIGAR
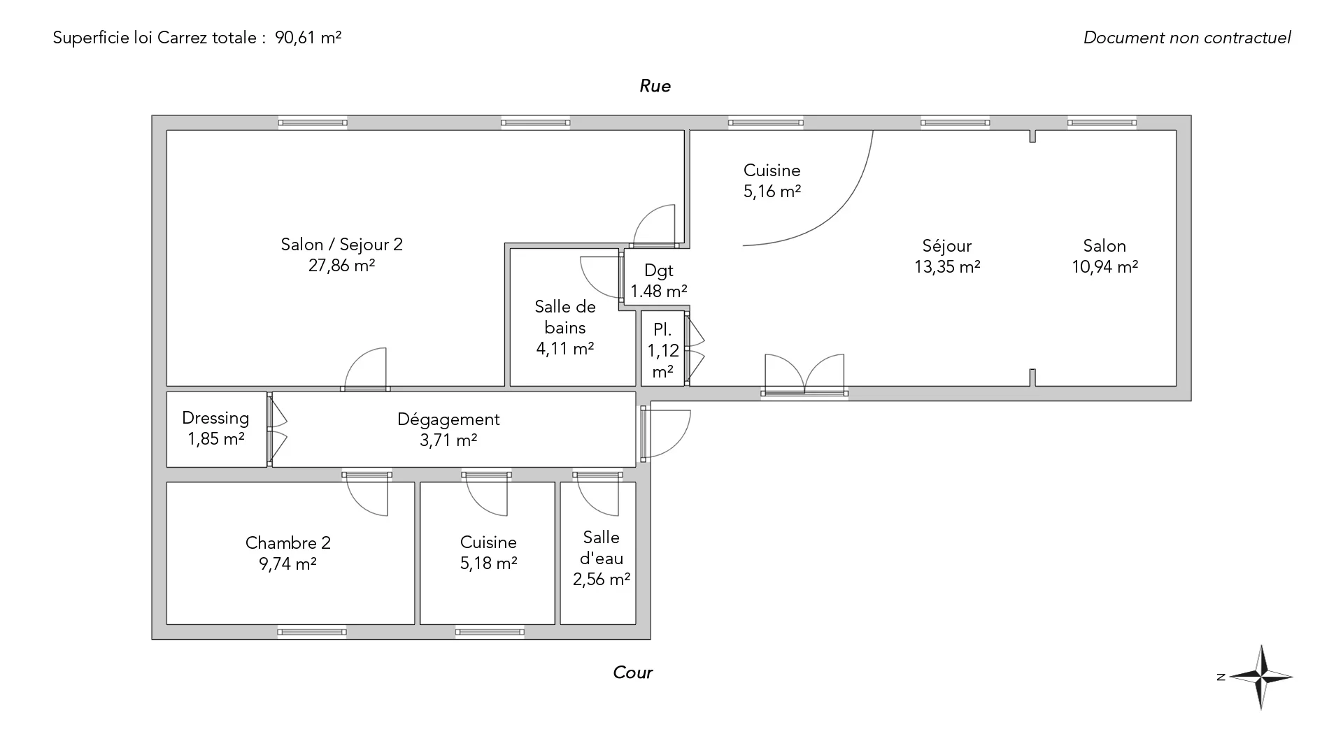
Located in the heart of the Pajol district, between the creative addresses and new energies of the 18th arrondissement, this 90.61sqm loi Carrez apartment occupies the fourth floor by staircase of a well-maintained building.
A real blank page to be completely rethought, it offers great potential in a fast-changing environment.
With its two separate entrances, the property can be used to create two independent apartments or a large, modular, custom-designed living space.
The current layout, with two bedrooms (one on the courtyard side) and two bathrooms with toilet, boasts generous light and an unobstructed view from the west-facing living room.
Two cellars complete this high-potential property.
EXCLUSIVE.
- Habitable : 975,32 Sq Ft
- 4 rooms
- 2 bedrooms
- 2 bathrooms
- Floor 4/6
- Orientation East , West
- Excellent condition
What seduced us
- Guardian
- Crossing
- Cellar
We say more
Regulations & financial information
Information on the risks to which this property is exposed is available on the Géorisques website. : www.georisques.gouv.fr
| Diagnostics |
|---|
Final energy consumption : D - 240.5 kWh/m²/an.
Estimated annual energy costs for standard use: between 2 180,00 € and 3 030,00 € /year (including subscription).
Average energy price indexed to 01/01/2021.
| Financial elements |
|---|
Property tax : 1 742,00 € /an
Interior & exterior details
| Room | Surface | Detail |
|---|---|---|
| 1x Cellar | ||
| 1x Cellar | ||
| 1x Stay | 143.7 Sq Ft |
Floor : 4th Coating : Carpet |
| 1x Living room | 117.76 Sq Ft |
Floor : 4th Coating : Carpet |
| 1x Closet | 12.06 Sq Ft |
Floor : 4th Coating : Carpet |
| 1x Kitchen | 55.54 Sq Ft |
Floor : 4th Coating : Floor tile |
| 1x Clearance | 7.86 Sq Ft |
Floor : 4th Coating : Carpet |
| 1x Closet | 8.07 Sq Ft |
Floor : 4th Coating : Carpet |
| 1x Bathroom | 44.24 Sq Ft |
Floor : 4th Coating : Floor tile |
| 1x Bedroom | 299.88 Sq Ft |
Floor : 4th Coating : Carpet |
| 1x Clearance | 39.93 Sq Ft |
Floor : 4th Coating : Carpet |
| 1x Dressing room | 19.91 Sq Ft |
Floor : 4th Coating : Carpet |
| 1x Bedroom | 104.84 Sq Ft |
Floor : 4th Coating : Parquet |
| 1x Kitchen | 55.76 Sq Ft |
Floor : 4th Coating : Floor tile |
| 1x Bathroom | 27.56 Sq Ft |
Floor : 4th Coating : Floor tile |
Services
Building & Co-ownership
| Building |
|---|
-
Built in : 1900
-
Type : Pierre, Brique
-
Number of floors : 6
| Co-ownership |
|---|
80 housing lots
Average annual amount of the share of current charges : 2 920 €
Procedure in progress : Non
Meet your agency
Simulator financing
Calculate the amount of the monthly payments on your home loan corresponding to the loan you wish to make.
FAI property price
620 000 €
€
per month
Do you have to sell to buy?
Our real estate consultants are at your disposal to estimate the value of your property. All our estimates are free of charge.
Estimate my propertyA living space to suit you
Junot takes you on a tour of the neighborhoods in which our agencies welcome you, and presents the specific features and good addresses.
Explore the neighborhoods











