 
    Let's take an overview
Ad reference : 1881VHUDEM
On the sixth floor of a beautiful, ultra-secure condominium in the heart of the iconic Avenue Foch, this 2,200 sq ft south-facing apartment has been luxuriously renovated and offers superb unobstructed views of the Eiffel Tower.
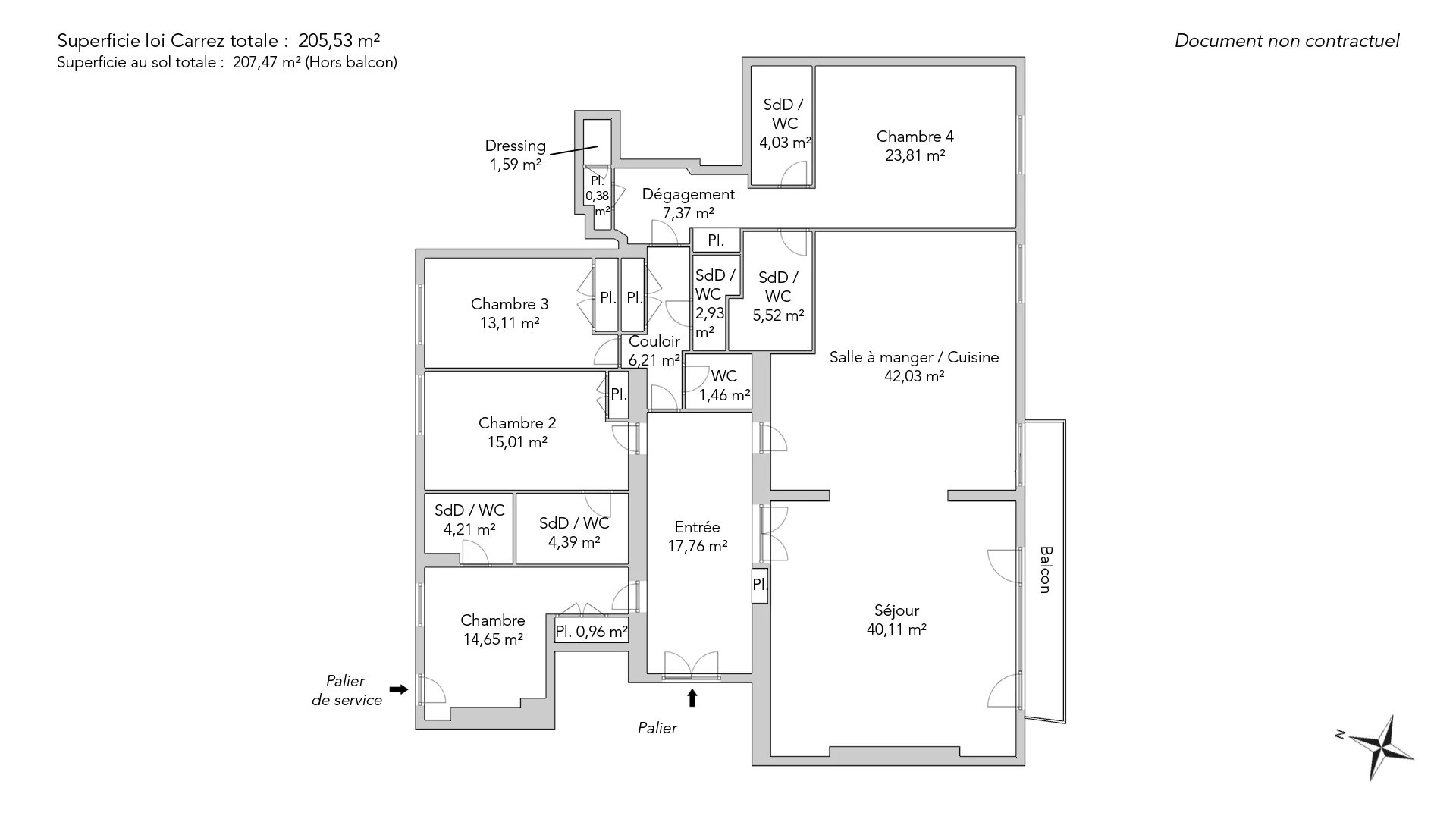
Fully air-conditioned, its marble entrance gallery leads to a perfectly proportioned 83m² double reception room with no overlooking neighbors, featuring a fireplace, Versailles parquet flooring, wood paneling, and over 3m high ceilings, overlooking the avenue, a large sunny balcony, and a high-end open kitchen. 
On the night side, there are four suites with their own shower rooms and toilets, including a large, sunny master suite with a view of the Eiffel Tower, walk-in closets, and two facing powder rooms.
A large cellar and a 315 sq ft double garage in the basement complete this exceptional offer.
A 20.30m² Carrez studio is available at an additional cost (€200,000). 
Janson de Sailly district.
- Habitable : 2 212,30 Sq Ft Total : 2 233,19 Sq Ft
- 6 rooms
- 4 bedrooms
- 5 shower rooms
- Floor 6/8
- Fireplace
- Orientation South
- Excellent condition
What seduced us
- Balcony/Terrace
- Highly sought-after address
- Exceptional services
- Guardian
- Historical monument view
- Luminous
- Crossing
- Elevator
- Cellar
- Open view
We say more
Regulations & financial information
Information on the risks to which this property is exposed is available on the Géorisques website. : www.georisques.gouv.fr
| Diagnostics | 
|---|
Final energy consumption : E - 268 kWh/m²/an.
Estimated annual energy costs for standard use: between 3 820,00 € and 5 180,00 € /year (including subscription).
Average energy price indexed to 01/01/2021.
| Financial elements | 
|---|
Property tax : 5 090,00 € /an
Interior & exterior details
| Room | Surface | Detail | 
|---|---|---|
| 1x Cellar | Floor : Basement | |
| 1x Indoor parking | Floor : Basement | |
| 1x Service room | 218.51 Sq Ft | Floor : Ground floor | 
| 1x Entrance | 191.17 Sq Ft | Floor : 6th Coating : Marble | 
| 1x Bedroom | 157.69 Sq Ft | Floor : 6th Exposure : North | 
| 1x Shower room/toilet | 45.32 Sq Ft | Floor : 6th Exposure : North | 
| 1x Stay | 431.74 Sq Ft | Floor : 6th Exposure : South Coating : Parquet Ceiling : 3.03m | 
| 1x Dining room/Kitchen | 452.41 Sq Ft | Floor : 6th Exposure : South | 
| 1x Bedroom | 161.57 Sq Ft | Floor : 6th Exposure : North | 
| 1x Shower room/toilet | 47.25 Sq Ft | Floor : 6th | 
| 1x Clearance | 66.84 Sq Ft | Floor : 6th | 
| 1x Bathroom | 15.72 Sq Ft | Floor : 6th | 
| 1x Shower room/toilet | 31.54 Sq Ft | Floor : 6th | 
| 1x Bedroom | 141.11 Sq Ft | Floor : 6th Exposure : North | 
| 1x Clearance | 79.33 Sq Ft | Floor : 6th | 
| 1x Closet | 4.09 Sq Ft | Floor : 6th | 
| 1x Dressing room | 17.11 Sq Ft | Floor : 6th | 
| 1x Master bedroom | 256.29 Sq Ft | Floor : 6th Exposure : South | 
| 1x Shower room/toilet | 43.38 Sq Ft | Floor : 6th | 
| 1x Shower room/toilet | 59.42 Sq Ft | Floor : 6th | 
| 1x Balcony | Floor : 6th Exposure : South | 
Services
Building & Co-ownership
| Building | 
|---|
- 
                                                                                                                            Built in : 1960
 
- 
                                                                                                                            Number of floors : 8
 
- 
                                                                                                                            Quality level : Luxury
 
| Co-ownership | 
|---|
                                                                                                                                                                            Average annual amount of the share of current charges : 18 000 €
                                                                                                                Procedure in progress : Non
                                                    
Meet your agency
 
    Simulator financing
Calculate the amount of the monthly payments on your home loan corresponding to the loan you wish to make.
FAI property price
3 900 000 €
€
per month
Do you have to sell to buy?
Our real estate consultants are at your disposal to estimate the value of your property. All our estimates are free of charge.
Estimate my propertyA living space to suit you
Junot takes you on a tour of the neighborhoods in which our agencies welcome you, and presents the specific features and good addresses.
Explore the neighborhoods 
                             
                             
                             
                             
                             
                             
                             
                             
                             
                             
                             
                             
                             
                             
                             
                             
                             
                             
                             
                             
                             
                             
                             
                             
                             
                             
                             
                             
                             
                             
                             
                             
                             
                             
                             
                             
                             
                             
                             
                             
                             
                             
                             
                            










 
                                                 
                                                 
                                                 
                                                 
                                                 
                                                 
                                                 
                                                 
                                                 
                                                 
                                                 
                                                 
                                                 
                                                 
                                                 
                                                 
                                                 
                                                 
                                                 
                                                 
                                                 
                                                 
                                                 
                                             
                                             
                                             
                                             
                                             
                                             
                                             
                                             
                                             
                                             
                                             
                                             
                                             
                                             
                                             
                                             
                                             
                                             
                                             
                                             
                                             
                                             
                                            