Let's take an overview
Ad reference : 1159POIFAS
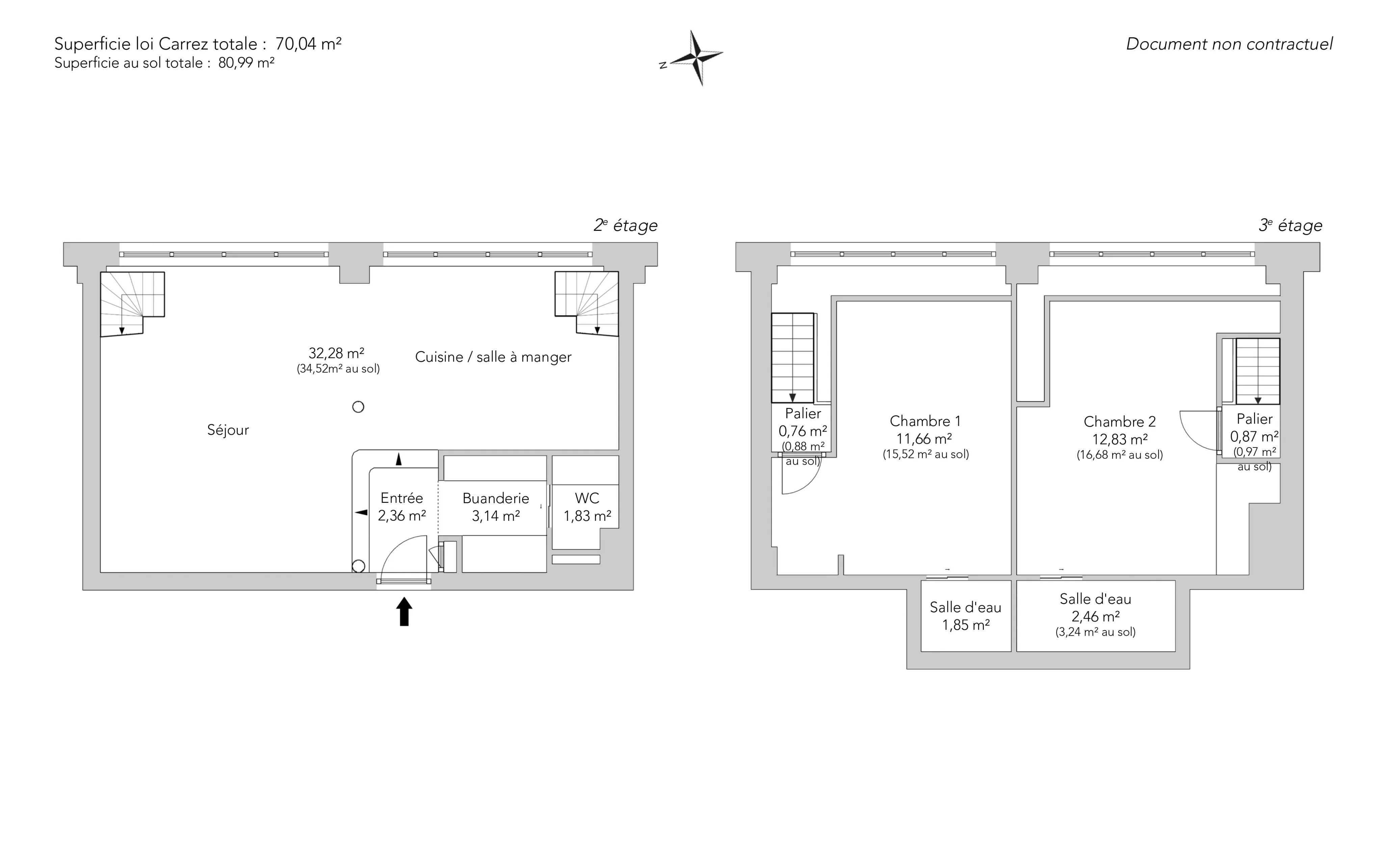
In a renovated former printing works, on the second and top floor with elevator, very attractive duplex loft of 70.04sqm Carrez (81sqm floor area), absolute calm and unoverlooked.
The apartment comprises an entrance hall, a superb living room bathed in light thanks to its large studio windows and 3.75m high ceilings, a fully-equipped open kitchen, a dressing area and a separate toilet.
Upstairs, two under-roof bedrooms, each with its own private shower room.
Beautifully appointed, preserved industrial charm, east-facing, in a lively, sought-after area of the Xᵉ arrondissement.
A rare property, bright and full of character.
- Habitable : 871,77 Sq Ft
- 3 rooms
- 2 bedrooms
- 2 shower rooms
- Floor 2/2
- Orientation East
- Good condition
What seduced us
- Last floor
- Luminous
- Calm
- Elevator
We say more
Regulations & financial information
Information on the risks to which this property is exposed is available on the Géorisques website. : www.georisques.gouv.fr
| Diagnostics |
|---|
Final energy consumption : B - 97 kWh/m²/an.
Estimated annual energy costs for standard use: between 800,00 € and 1 140,00 € /year (including subscription).
Average energy price indexed to 01/01/2023.
| Financial elements |
|---|
Property tax : 1 471,00 € /an
Interior & exterior details
| Room | Surface | Detail |
|---|---|---|
| 2x Laundry room | 33.8 Sq Ft |
Floor : 2nd Coating : Floor tile |
| 1x Bathroom | 19.7 Sq Ft |
Floor : 2nd Coating : Floor tile |
| 1x Entrance | 25.4 Sq Ft |
Floor : 2nd Exposure : East Coating : Parquet |
| 1x Living room/kitchen | 347.46 Sq Ft |
Floor : 2nd Exposure : East Coating : Parquet Ceiling : 3.75m |
| 1x Bedroom | 125.51 Sq Ft | Floor : 3rd |
| 1x Bathroom | 19.91 Sq Ft |
Floor : 3rd Coating : Floor tile |
| 1x Landing | 8.18 Sq Ft | Floor : 3rd |
| 1x Bedroom | 138.1 Sq Ft | Floor : 3rd |
| 1x Bathroom | 26.48 Sq Ft |
Floor : 3rd Coating : Floor tile |
| 1x Landing | 9.36 Sq Ft |
Floor : 3rd Coating : Parquet |
Services
Building & Co-ownership
| Building |
|---|
-
Built in : 1890
-
Number of floors : 2
| Co-ownership |
|---|
45 housing lots
Average annual amount of the share of current charges : 3 200 €
Procedure in progress : Non
Meet your agency
Simulator financing
Calculate the amount of the monthly payments on your home loan corresponding to the loan you wish to make.
FAI property price
1 050 000 €
€
per month
Do you have to sell to buy?
Our real estate consultants are at your disposal to estimate the value of your property. All our estimates are free of charge.
Estimate my propertyA living space to suit you
Junot takes you on a tour of the neighborhoods in which our agencies welcome you, and presents the specific features and good addresses.
Explore the neighborhoods











