Let's take an overview
Ad reference : 3479MARLAC
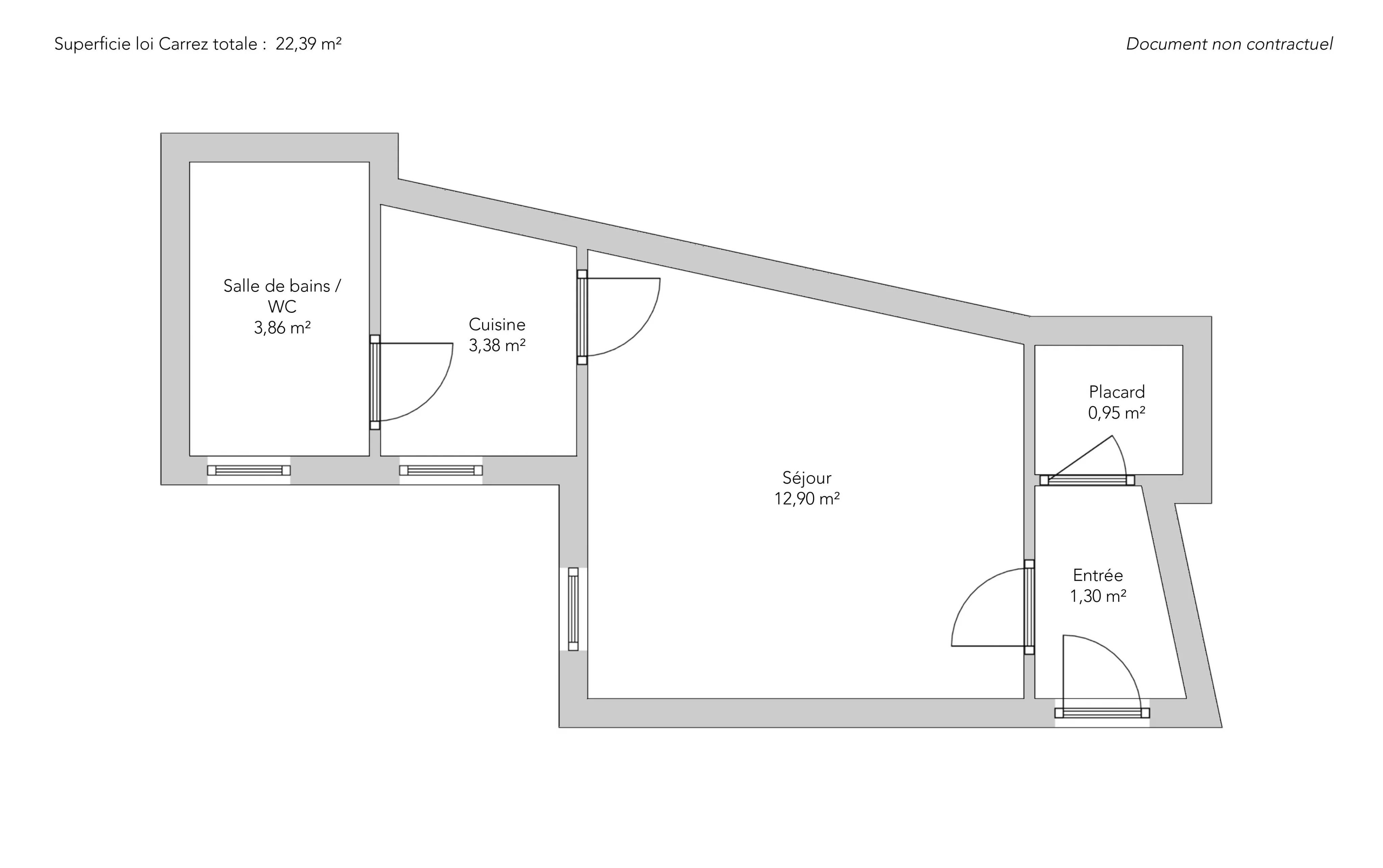
Ideally located in the Saint-Augustin district, with transport and shops nearby, charming 22.39sqm loi Carrez studio on the fourth floor with elevator of a very attractive, well-maintained building.
It comprises a beautiful, quiet living room overlooking the courtyard, a separate kitchen with a shower room and toilet.
The apartment is in very good condition and benefits from high ceilings. Absolutely quiet, bright, unobstructed view over courtyard.
Ideal for investors / pied à terre.
EXCLUSIVE
- Habitable : 241,00 Sq Ft
- 1 room
- suite
- 1 shower room
- Floor 5/8
- Orientation East , Northeast
- To refresh
What seduced us
- Highly sought-after address
- Guardian
- Calm
- Elevator
- Open view
We say more
Regulations & financial information
Information on the risks to which this property is exposed is available on the Géorisques website. : www.georisques.gouv.fr
| Diagnostics |
|---|
Final energy consumption : F - 450 kWh/m²/an.
Logement à consommation énergétique excessive : classe F
Estimated annual energy costs for standard use: between 820,00 € and 1 150,00 € /year (including subscription).
Average energy price indexed to 01/01/2023.
| Financial elements |
|---|
Interior & exterior details
| Room | Surface | Detail |
|---|---|---|
| 1x Entrance | 13.99 Sq Ft |
Floor : 5th Exposure : East Coating : Parquet |
| 1x Stay | 138.85 Sq Ft |
Floor : 5th Exposure : Northeast Coating : Parquet Ceiling : 2.68m |
| 1x Kitchen | 36.38 Sq Ft |
Floor : 5th Coating : Floor tile |
| 1x Shower room/toilet | 41.55 Sq Ft |
Floor : 5th Coating : Floor tile |
| 1x Closet | 10.23 Sq Ft |
Floor : 5th Coating : Floor tile |
Services
Building & Co-ownership
| Building |
|---|
-
Built in : 1925
-
Number of floors : 8
-
Quality level : Normal
| Co-ownership |
|---|
60 housing lots
Average annual amount of the share of current charges : 2 712 €
Procedure in progress : Non
Meet your agency
Simulator financing
Calculate the amount of the monthly payments on your home loan corresponding to the loan you wish to make.
FAI property price
240 000 €
€
per month
Do you have to sell to buy?
Our real estate consultants are at your disposal to estimate the value of your property. All our estimates are free of charge.
Estimate my propertyA living space to suit you
Junot takes you on a tour of the neighborhoods in which our agencies welcome you, and presents the specific features and good addresses.
Explore the neighborhoods













