Let's take an overview
Ad reference : 2876TERPAR
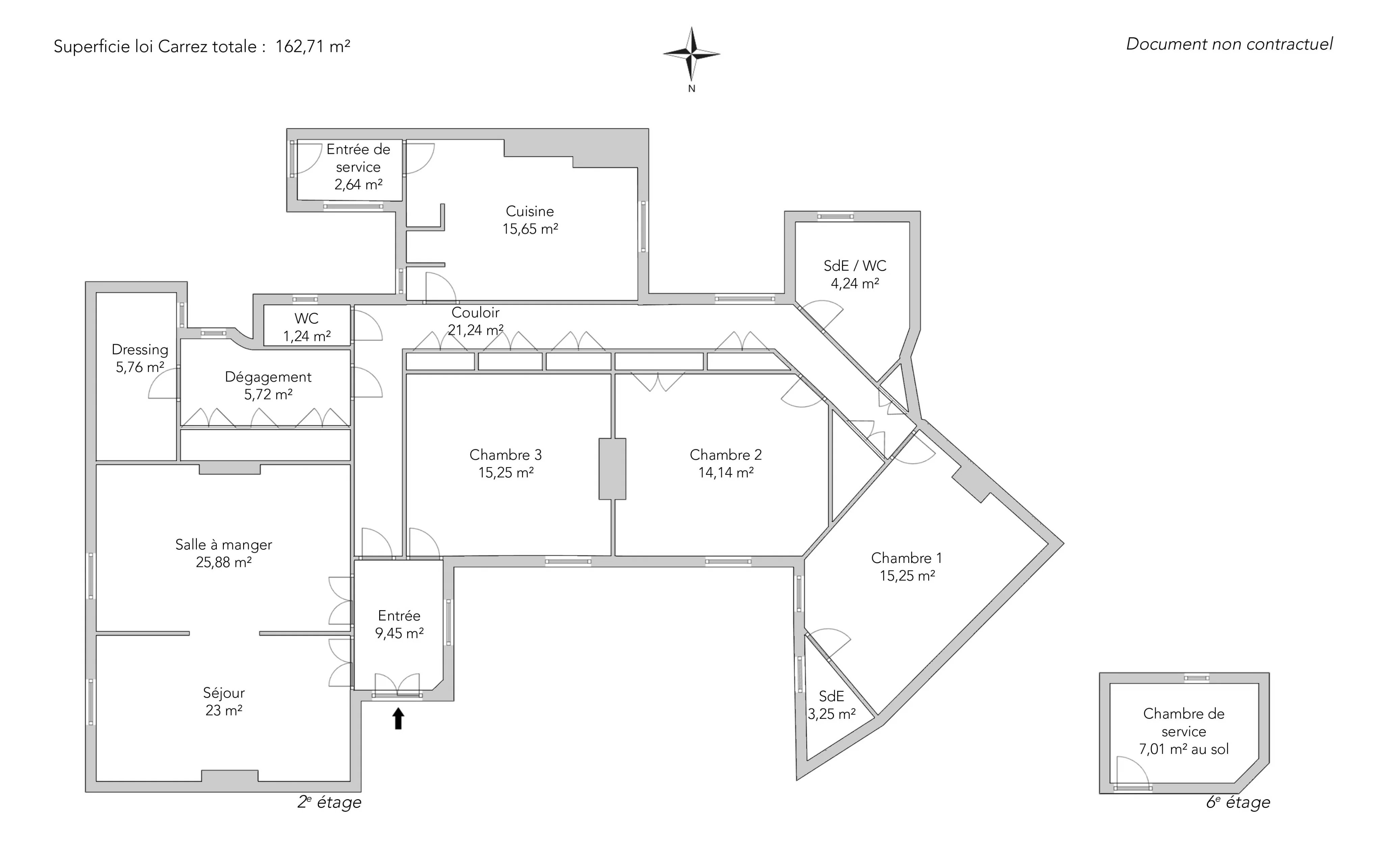
Between Place de l'Étoile and Les Ternes, in a janitor's stone building with sumptuous common areas, very attractive 162.71sqm apartment to sublimate.
Situated on the second floor by elevator, this through-planning, absolutely quiet apartment will seduce you with its location, its preserved old-world charm (herringbone parquet flooring, fireplaces and attractive moldings) and its spaciousness thanks to its 3.20m high ceilings.
A 7.01sqm utility room with fireplace and water point, as well as two cellars, complete this offer.
RCP AUTHORIZES LIBERAL PROFESSIONS.
- Habitable : 1 751,39 Sq Ft
- 5 rooms
- 3 bedrooms
- 2 shower rooms
- Floor 2/6
- Fireplace
- Orientation South East
- To renovate
What seduced us
- Guardian
- Calm
- Crossing
- Elevator
- Cellar
We say more
Regulations & financial information
Information on the risks to which this property is exposed is available on the Géorisques website. : www.georisques.gouv.fr
| Diagnostics |
|---|
Final energy consumption : D - 184 kWh/m²/an.
Estimated annual energy costs for standard use: between 2 820,00 € and 3 816,00 € /year (including subscription).
| Financial elements |
|---|
Interior & exterior details
| Room | Surface | Detail |
|---|---|---|
| 1x Cellar | 183.52 Sq Ft | Floor : -1 |
| 1x Cellar | 143.7 Sq Ft | Floor : -1 |
| 1x Entrance | 101.72 Sq Ft | Floor : 2nd |
| 1x Dining room | 278.57 Sq Ft | Floor : 2nd |
| 1x Corridor | 228.63 Sq Ft | Floor : 2nd |
| 1x Dressing room | 62 Sq Ft | Floor : 2nd |
| 1x Clearance | 61.57 Sq Ft | Floor : 2nd |
| 1x Kitchen | 196.87 Sq Ft | Floor : 2nd |
| 1x Bedroom | 164.15 Sq Ft | Floor : 2nd |
| 1x Bedroom | 152.2 Sq Ft | Floor : 2nd |
| 1x Bedroom | 164.15 Sq Ft | Floor : 2nd |
| 1x Shower room/toilet | 45.64 Sq Ft | Floor : 2nd |
| 1x Bathroom | 34.98 Sq Ft | Floor : 2nd |
| 1x Bathroom | 13.35 Sq Ft | Floor : 2nd |
| 1x Stay | 247.57 Sq Ft |
Floor : 2nd Exposure : East |
| 1x Service room | 75.45 Sq Ft | Floor : 6th |
Services
Building & Co-ownership
| Building |
|---|
-
Number of floors : 6
| Co-ownership |
|---|
Average annual amount of the share of current charges : 3 720 €
Procedure in progress : Non
Meet your agency
Simulator financing
Calculate the amount of the monthly payments on your home loan corresponding to the loan you wish to make.
FAI property price
1 940 000 €
€
per month
Do you have to sell to buy?
Our real estate consultants are at your disposal to estimate the value of your property. All our estimates are free of charge.
Estimate my propertyA living space to suit you
Junot takes you on a tour of the neighborhoods in which our agencies welcome you, and presents the specific features and good addresses.
Explore the neighborhoods













