Let's take an overview
Ad reference : 2805TERGUI
Just a stone's throw from Parc Monceau, a prime location close to the best schools, quality shops and transport links.
In the setting of a 1900 Haussmann building with remarkable common areas, a 171.9sqm apartment of rare elegance is revealed on the second floor. With only one landing, it guarantees absolute calm and privacy.
Entirely redesigned in 2019 by a renowned architect, this exceptional property masterfully blends the charm of classic architecture with contemporary refinement.
Generous volumes, noble materials and meticulous finishes create a unique art of living.
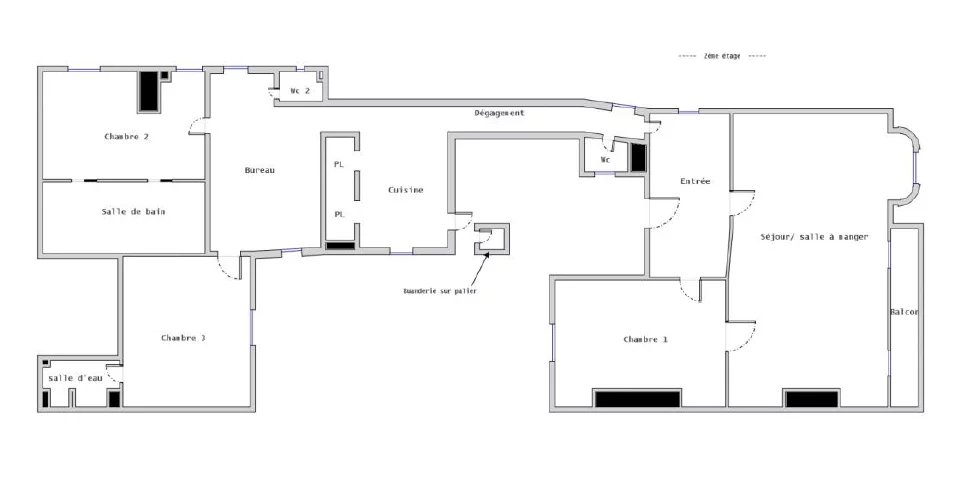
The harmonious layout features a welcoming entrance hall, a double reception room bathed in natural light, enhanced by a period fireplace and extended by a long balcony. The night space features three bedrooms, including a master suite, a flexible study, two bathrooms and a separate fitted kitchen.
Two spacious cellars and a janitor complete the features of this luxury building.
A confidential address for lovers of Parisian excellence.
- Habitable : 1 850,31 Sq Ft
- 5 rooms
- 3 bedrooms
- 1 bathroom
- 1 shower room
- Fireplace
- Orientation North West
- Excellent condition
What seduced us
- Balcony/Terrace
- Highly sought-after address
- Guardian
- Calm
- Elevator
We say more
Regulations & financial information
Information on the risks to which this property is exposed is available on the Géorisques website. : www.georisques.gouv.fr
| Diagnostics |
|---|
Final energy consumption : C - 141 kWh/m²/an.
Estimated annual energy costs for standard use: between 4 190,00 € and 5 720,00 € /year (including subscription).
| Financial elements |
|---|
Interior & exterior details
| Room | Surface | Detail |
|---|---|---|
| 1x Entrance | 142.08 Sq Ft | |
| 1x Bedroom | 182.45 Sq Ft | |
| 1x Stay | 526.35 Sq Ft |
Ceiling : 3m |
| 1x Clearance | 93.32 Sq Ft | |
| 1x Bathroom | 20.99 Sq Ft | |
| 1x Kitchen | 117.43 Sq Ft | |
| 1x Desk | 202.47 Sq Ft | |
| 1x Bathroom | 16.36 Sq Ft | |
| 1x Bedroom | 190.84 Sq Ft | |
| 1x Bathroom | 117.33 Sq Ft | |
| 1x Bedroom | 205.05 Sq Ft | |
| 1x Bathroom | 35.63 Sq Ft | |
| 1x Balcony | ||
| 1x Laundry room |
Services
Building & Co-ownership
| Building |
|---|
-
Built in : 1900
-
Type : cut stone
-
Quality level : Standing
| Co-ownership |
|---|
Average annual amount of the share of current charges : 7 920 €
Procedure in progress : Non
Meet your agency
Simulator financing
Calculate the amount of the monthly payments on your home loan corresponding to the loan you wish to make.
FAI property price
2 190 000 €
€
per month
Do you have to sell to buy?
Our real estate consultants are at your disposal to estimate the value of your property. All our estimates are free of charge.
Estimate my propertyA living space to suit you
Junot takes you on a tour of the neighborhoods in which our agencies welcome you, and presents the specific features and good addresses.
Explore the neighborhoods












