Let's take an overview
Ad reference : 3506ABBRAV
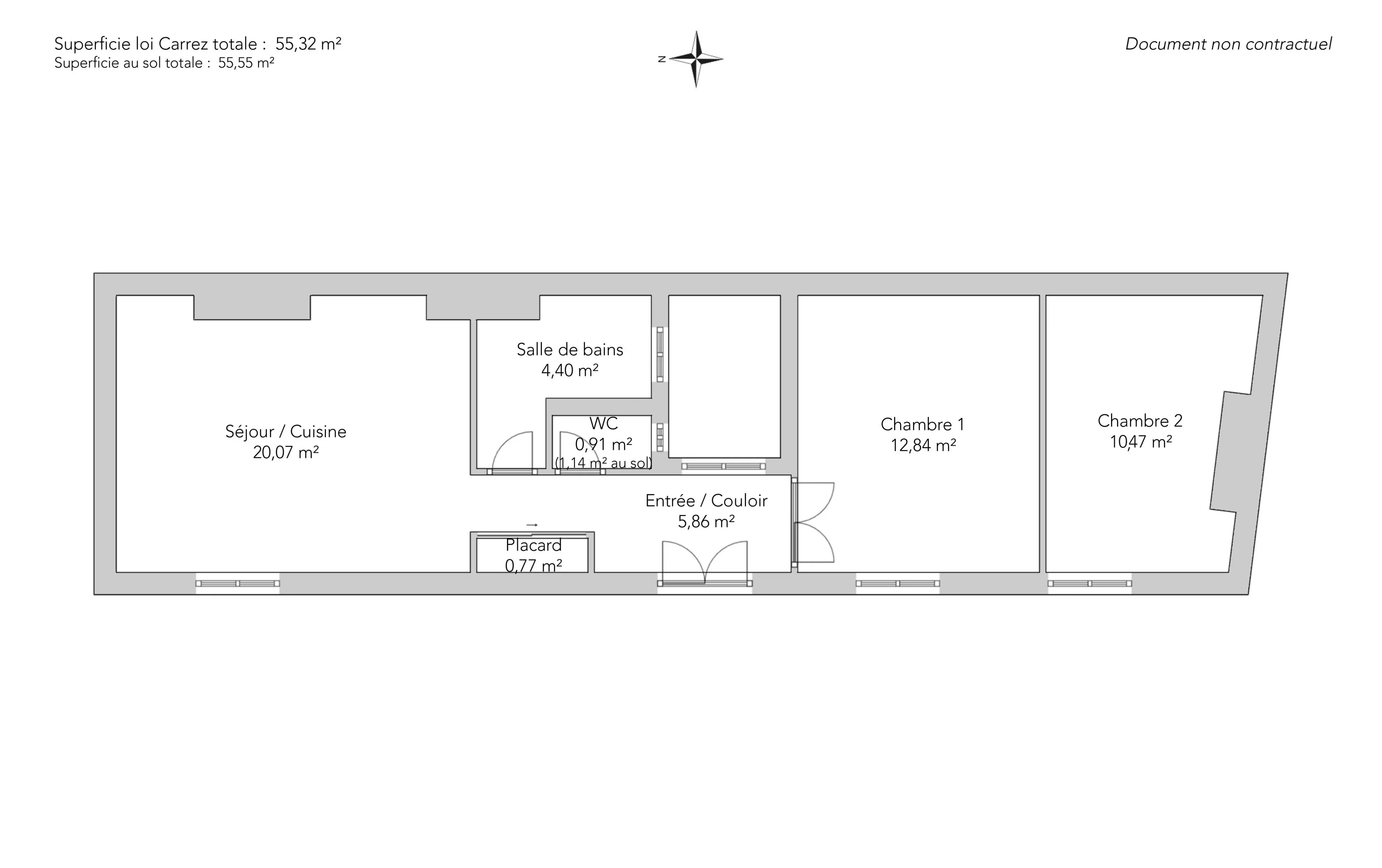
Rue Condorcet, in the heart of the Martyrs district, beautiful three-room apartment of 55.32sqm, entirely renovated by an architect.
On the fourth floor by staircase of an old building, this apartment comprises an entrance hall leading to a living room with an open-plan fitted kitchen, two bedrooms with fitted wardrobes, a shower room and separate toilet. This property has been renovated to a very high standard.
A cellar completes this offer.
- Habitable : 595,46 Sq Ft Total : 597,93 Sq Ft
- 3 rooms
- 2 bedrooms
- 1 bathroom
- Floor 4/6
- Fireplace
- Orientation East , West
- Excellent condition
What seduced us
- Highly sought-after address
- Exceptional services
- Luminous
- Calm
- Cellar
We say more
Regulations & financial information
Information on the risks to which this property is exposed is available on the Géorisques website. : www.georisques.gouv.fr
| Diagnostics |
|---|
Final energy consumption : E - 261 kWh/m²/an.
Estimated annual energy costs for standard use: between 1 370,00 € and 1 910,00 € /year (including subscription).
Average energy price indexed to 01/01/2023.
| Financial elements |
|---|
Property tax : 1 060,00 € /an
Interior & exterior details
| Room | Surface | Detail |
|---|---|---|
| 1x Living room/kitchen | 216.03 Sq Ft |
Exposure : West Coating : Parquet Ceiling : 2.8m |
| 1x Cellar | ||
| 1x Closet | 8.29 Sq Ft |
Exposure : East |
| 1x Bedroom | 138.21 Sq Ft |
Floor : 4th Exposure : West Coating : Parquet |
| 1x Bedroom | 112.7 Sq Ft |
Floor : 4th Exposure : West Coating : Parquet |
| 1x Bathroom | 47.36 Sq Ft |
Floor : 4th Coating : Floor tile |
| 1x Bathroom | 9.8 Sq Ft |
Floor : 4th Coating : Floor tile |
| 1x Entrance | 63.08 Sq Ft |
Floor : 4th Exposure : East Coating : Parquet |
Services
Building & Co-ownership
| Building |
|---|
-
Built in : 1900
-
Type : cut stone
-
Number of floors : 6
-
Quality level : Standing
| Co-ownership |
|---|
61 housing lots
Average annual amount of the share of current charges : 1 548 €
Procedure in progress : Non
Meet your agency
Simulator financing
Calculate the amount of the monthly payments on your home loan corresponding to the loan you wish to make.
FAI property price
750 000 €
€
per month
Do you have to sell to buy?
Our real estate consultants are at your disposal to estimate the value of your property. All our estimates are free of charge.
Estimate my propertyA living space to suit you
Junot takes you on a tour of the neighborhoods in which our agencies welcome you, and presents the specific features and good addresses.
Explore the neighborhoods










