Let's take an overview
Ad reference : 2015CHMGIR
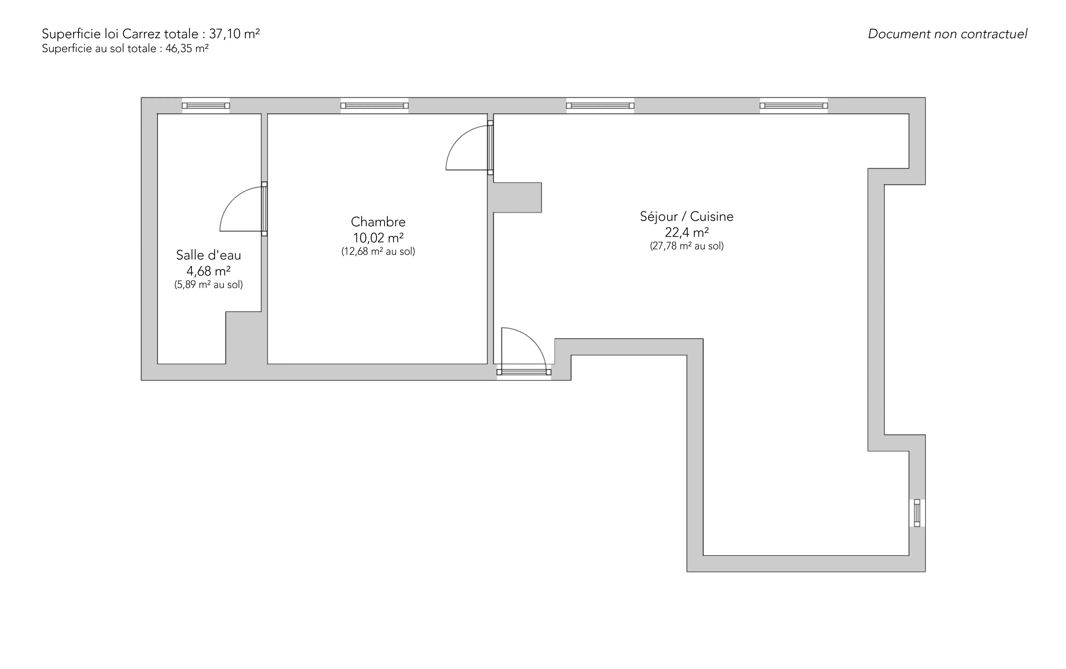
A few steps from the Croix-Rouge intersection and Saint-Sulpice square, in the heart of the highly sought-after rue du Cherche-Midi, this 37.10sqm Carrez and 46.35sqm fall apartment is located on the fourth floor by staircase in a very elegant old building.
Fully renovated with particular attention to materials and finishes, it offers a warm atmosphere and perfectly controlled. The living room, generous and harmoniously arranged, hosts an open kitchen with sleek lines, a dining area enhanced by a delicate custom banquette, as well as a lounge with integrated storage. The Velux windows bathe the space in soft and constant natural light, enhancing the feeling of space and serenity. The bedroom, comfortable and perfectly optimized, has large built-in storage. The bathroom, also illuminated by a Velux, includes toilet and a finely integrated laundry area, showcasing a layout thought out in every detail.
Quiet and bright, this apartment in perfect condition is appealing for the remarkable quality of its renovation and its emblematic address in the 6th arrondissement. It is an elegant pied-à-terre or an ideal main residence, offering the art of typically Parisian living, between Saint-Sulpice and the most beautiful addresses on the Left Bank.
EXCLUSIVE.
- Habitable : 399,34 Sq Ft Total : 498,91 Sq Ft
- 2 rooms
- 1 bedroom
- 1 bathroom
- Floor 4/5
- Orientation North West
- Excellent condition
What seduced us
- Highly sought-after address
- Last floor
- Luminous
- Calm
- Open view
We say more
Regulations & financial information
Information on the risks to which this property is exposed is available on the Géorisques website. : www.georisques.gouv.fr
| Diagnostics |
|---|
Final energy consumption : a - 140 kWh/m²/an.
Estimated annual energy costs for standard use: between 960,00 € and 1 330,00 € /year (including subscription).
Average energy price indexed to 01/01/2023.
| Financial elements |
|---|
Interior & exterior details
| Room | Surface | Detail |
|---|---|---|
| 1x Living room/kitchen | 241.11 Sq Ft | Floor : 4th |
| 1x Bedroom | 107.85 Sq Ft | Floor : 4th |
| 1x Bathroom/toilet | 50.38 Sq Ft | Floor : 41st |
Services
Building & Co-ownership
| Building |
|---|
-
Built in : 1800
-
Type : Rock
-
Number of floors : 5
-
Quality level : Standing
| Co-ownership |
|---|
44 housing lots
Average annual amount of the share of current charges : 900 €
Procedure in progress : Non
Meet your agency
Simulator financing
Calculate the amount of the monthly payments on your home loan corresponding to the loan you wish to make.
FAI property price
650 000 €
€
per month
Do you have to sell to buy?
Our real estate consultants are at your disposal to estimate the value of your property. All our estimates are free of charge.
Estimate my propertyA living space to suit you
Junot takes you on a tour of the neighborhoods in which our agencies welcome you, and presents the specific features and good addresses.
Explore the neighborhoods













