Let's take an overview
Ad reference : 3527BTLGAR
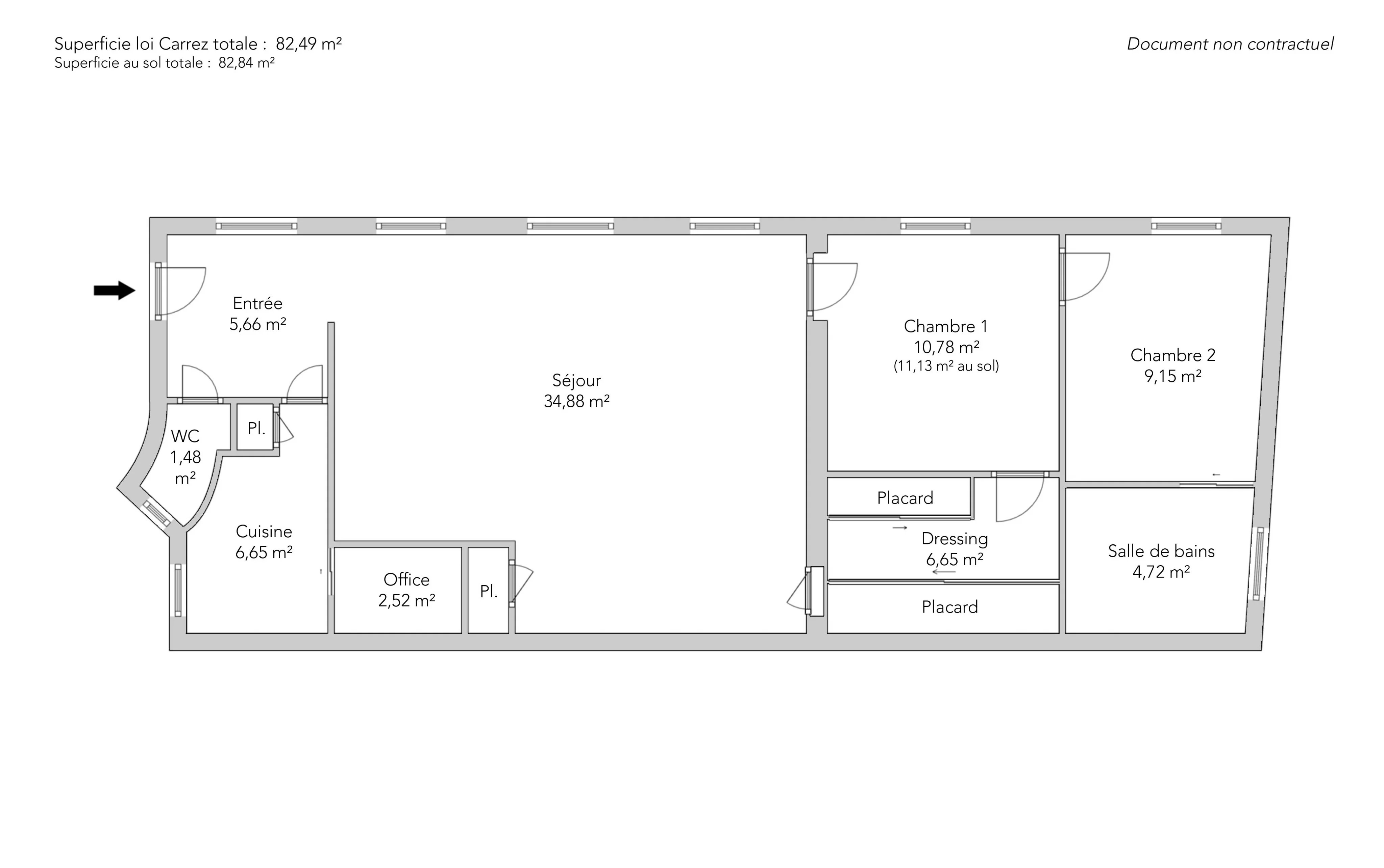
On the first floor (with elevator) of a well-maintained building, this elegant 82.49 sq m (Carrez Law) apartment combines period charm with abundant natural light.
An entrance gallery with a glass roof opens onto a superb living room of nearly 35 sq m, bathed in light thanks to three large southeast-facing windows. A fireplace and herringbone parquet flooring lend this reception area a Parisian flair.
The separate kitchen includes an adjoining pantry.
The sleeping area comprises two comfortable bedrooms with direct access to a shared bathroom.
Ample storage, including a large walk-in closet, is provided.
A cellar completes this quality property, ideally located in a sought-after neighborhood.
- Habitable : 878,66 Sq Ft
- 3 rooms
- 2 bedrooms
- 1 bathroom
- Floor 1/5
- Orientation South East
- Excellent condition
What seduced us
- Calm
- Elevator
We say more
Regulations & financial information
Information on the risks to which this property is exposed is available on the Géorisques website. : www.georisques.gouv.fr
| Diagnostics |
|---|
Final energy consumption : a - 221 kWh/m²/an.
Estimated annual energy costs for standard use: between 1 544,00 € and 2 090,00 € /year (including subscription).
Average energy price indexed to 01/01/2023.
| Financial elements |
|---|
Property tax : 1 721,00 € /an
Interior & exterior details
| Room | Surface | Detail |
|---|---|---|
| 1x Office | 24.22 Sq Ft | |
| 1x Dressing room | 71.58 Sq Ft | |
| 1x Bathroom | 15.93 Sq Ft | |
| 1x Entrance | 60.92 Sq Ft | Floor : 1st |
| 1x Stay | 375.44 Sq Ft | Floor : 1st |
| 1x Kitchen | 71.58 Sq Ft | Floor : 1st |
| 1x Bedroom | 116.03 Sq Ft | Floor : 1st |
| 1x Bedroom | 98.49 Sq Ft | Floor : 1st |
| 1x Bathroom/toilet | 50.81 Sq Ft | Floor : 1st |
Services
Building & Co-ownership
| Building |
|---|
-
Built in : 1850
-
Number of floors : 5
| Co-ownership |
|---|
19 housing lots
Average annual amount of the share of current charges : 4 228 €
Procedure in progress : Non
Meet your agency
Simulator financing
Calculate the amount of the monthly payments on your home loan corresponding to the loan you wish to make.
FAI property price
1 250 000 €
€
per month
Do you have to sell to buy?
Our real estate consultants are at your disposal to estimate the value of your property. All our estimates are free of charge.
Estimate my propertyA living space to suit you
Junot takes you on a tour of the neighborhoods in which our agencies welcome you, and presents the specific features and good addresses.
Explore the neighborhoods










