
Faisons un tour d'horizon
Référence de l’annonce : 2616MONRAS
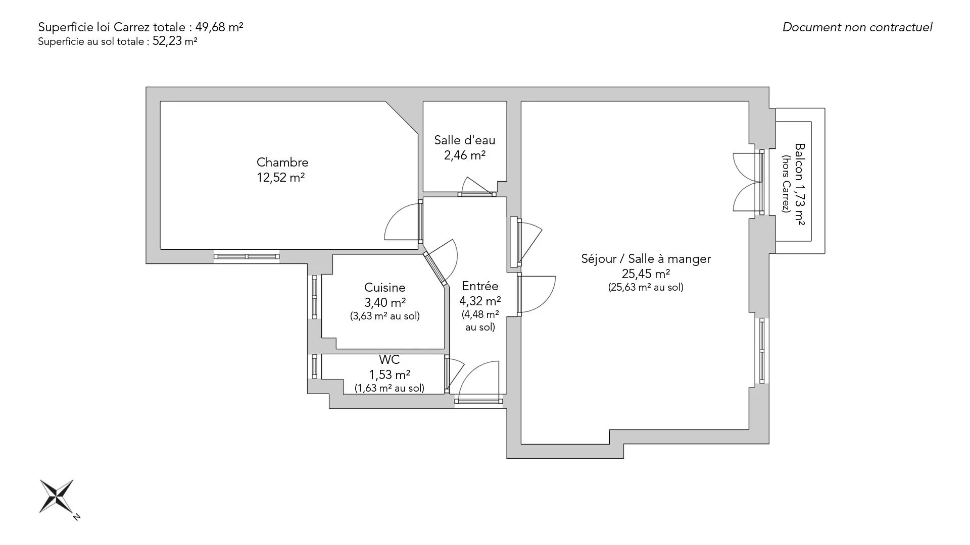
Proche des transports et commerces des rues Jouffroy d'Abbans et Tocqueville, charmant appartement en parfait état, de 49,68m² loi Carrez au deuxième étage avec ascenseur d'un immeuble haussmannien.
Traversant, avec de beaux volumes, il offre un plan optimal.
Il se compose d'une entrée, d'un double séjour de 25m² donnant sur un agréable balcon aux vues dégagées et arborées.
Côté cour, d'une cuisine indépendante équipée, d'une chambre spacieuse avec dressing, d'une salle d'eau et de toilettes séparées.
Charme de l'ancien (moulures, volumes, cheminée et poêle prussien).
Une cave complète ce bien.
EXCLUSIVITÉ.
- Habitable : 49,68 m² Total : 52,23 m²
- 2 pièces
- 1 chambre
- 1 salle de douche
- Étage 2/6
- Exposition Nord-ouest
- Excellent état
Ce qui nous séduit
- Balcon/Terrasse
- Gardien
- Calme
- Ascenseur
- Cave
- Vue dégagée
On vous en dit plus
Réglementations & éléments financiers
Les informations sur les risques auxquels ce bien est exposé sont disponibles sur le site Géorisques : www.georisques.gouv.fr
Diagnostics |
---|
Consommation énergie finale : C - 165 kWh/m²/an.
Logement à consommation énergétique excessive : classe F
Montant estimé des dépenses annuelles d’énergie pour un usage standard : entre 1 450,00 € et 2 020,00 € /an (abonnement compris).
Prix moyen des énergies indexées au 01/01/2021.
Éléments financiers |
---|
Taxe foncière : 1 004,00 € /an
Détails de l’intérieur & de l’extérieur
Pièce | Surface | Détail |
---|---|---|
1x Cave | ||
1x Entrée | 4.32 m² | Étage : 2ème |
1x Séjour | 25.45 m² | Étage : 2ème |
1x Cuisine | 3.4 m² | Étage : 2ème |
1x Chambre | 12.52 m² | Étage : 2ème |
1x Salle de douche | 2.46 m² | Étage : 2ème |
1x Toilettes | 1.53 m² | Étage : 2ème |
1x Balcon | Étage : 2ème |
Prestations
Bâtiment & Copropriété
Bâtiment |
---|
-
Construit en : 1860
-
Type : Pierre de taille
-
Nombre d'étages : 6
Copropriété |
---|
58 lots d'habitation
Montant moyen annuel de la quote part de charges courantes : 2 512 €
Procédure en cours : Non
Rencontrez votre agence

Simulateur de financement
Calculez le montant des mensualités de votre prêt immobilier correspondant à l'emprunt que vous souhaitez effectuer.
Prix du bien HAI
695 000 €
€
par mois
Vous devez vendre pour acheter ?
Nos consultants immobiliers se tiennent à votre disposition pour réaliser une estimation de la valeur de votre bien. Toutes nos estimations sont offertes.
Je fais estimer mon bienUn lieu de vie à votre image
Junot vous fait visiter les quartiers dans lesquels nos agences vous accueillent, et vous présente les spécificités et bonnes adresses.
Parcourir les quartiers