• Exclusivité

Local
Paris 18e - RUE DOUDEAUVILLE

2 700 000 €

Honoraires à la charge du vendeur

Barème des prestations Simuler votre financement

Ce bien vous plaît ?

Faisons un tour d'horizon

Référence de l’annonce : PL3344BTLOUV

Profession libérale exceptionnel situé au cœur du 18ème arrondissement de Paris. D'une superficie de 230,64m², ce bien offre un espace lumineux et généreux, avec une belle hauteur sous plafond. Composé de 7 pièces, il est idéal pour une profession libérale.
La cuisine, moderne et fonctionnelle s'ouvre sur un vaste open space d'environ 80m², lumineux grâce à ses grandes baies vitrées.
Totalement au calme et lumineux, cette profession libérale dispose d'un grand sous-sol directement accessible et aménagé en salle. Les caves attenantes ont été rachetées par les propriétaires et peuvent s'ajouter au sous-sol actuel (environ 65m² supplémentaires). Gardien.

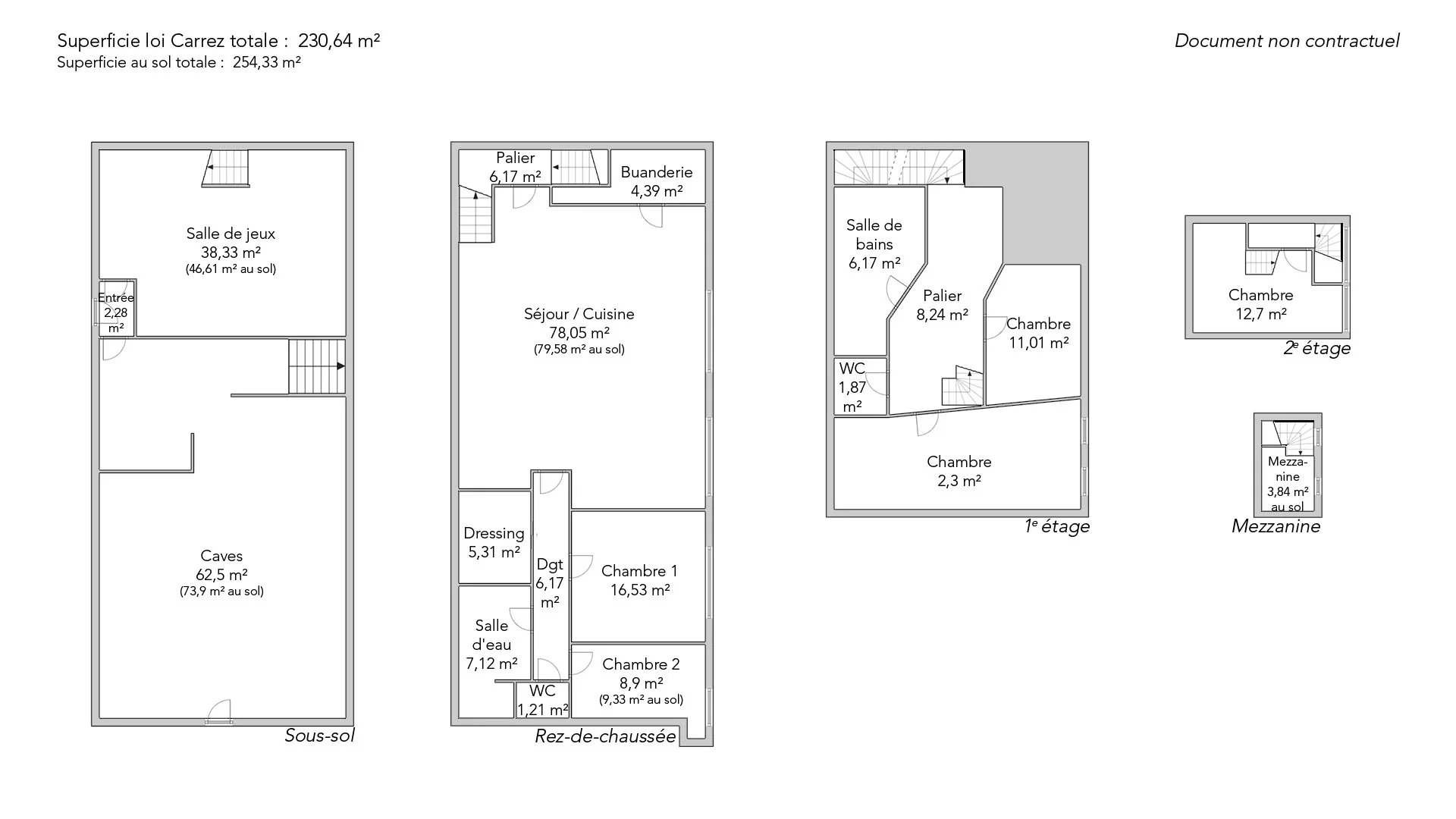
  • Habitable : 230,64 m² Total : 254,33 m²
  • 7 pièces
  • 5 chambres
  • 1 salle de bains
  • 1 salle de douche
  • Exposition Sud
  • Excellent état

Ce qui nous séduit

  • Gardien
  • Calme
  • Cave

On vous en dit plus

Réglementations & éléments financiers

Les informations sur les risques auxquels ce bien est exposé sont disponibles sur le site Géorisques : www.georisques.gouv.fr


Diagnostics

DPE Graph GES Graph

Consommation énergie finale : C - 132 kWh/m²/an.
Montant estimé des dépenses annuelles d’énergie pour un usage standard : entre 2 930,00 € et 4 040,00 € /an (abonnement compris).
Prix moyen des énergies indexées au 01/01/2021.


Éléments financiers
Montant moyen annuel de la quote part de charges courantes : 9 328 €

Taxe foncière : 3 854,00 € /an

Détails de l’intérieur & de l’extérieur

Pièce Surface Détail
1x Salle de jeux 38.33 m² Étage : Sous-sol
1x Entrée 2.28 m² Étage : Sous-sol
1x Cave Étage : Sous-sol
1x Séjour/cuisine 78.08 m² Étage : Rez-de-chaussée
1x Buanderie 4.39 m² Étage : Rez-de-chaussée
1x Palier 1.03 m² Étage : Rez-de-chaussée
1x Dégagement 6.17 m² Étage : Rez-de-chaussée
1x Chambre 16.53 m² Étage : Rez-de-chaussée
1x Chambre 8.9 m² Étage : Rez-de-chaussée
1x Toilettes 1.21 m² Étage : Rez-de-chaussée
1x Salle de douche 7.12 m² Étage : Rez-de-chaussée
1x Dressing 5.31 m² Étage : Rez-de-chaussée
1x Palier 8.24 m² Étage : 1er
1x Chambre 11.01 m² Étage : 1er
1x Chambre 21.3 m² Étage : 1er
1x Toilettes 1.87 m² Étage : 1er
1x Salle de bains 6.17 m² Étage : 1er
1x Chambre 12.7 m² Étage : 2ème
1x Mezzanine Étage : 2ème

Prestations

☑ Internet
☑ Gardien
☑ Digicode

Bâtiment & Copropriété

Bâtiment
  • Construit en : 1850
  • Nombre d'étages : 6

Copropriété

70 lots d'habitation
Montant moyen annuel de la quote part de charges courantes : 9 328 €
Procédure en cours : Non

Rencontrez votre agence

Simulateur de financement

Calculez le montant des mensualités de votre prêt immobilier correspondant à l'emprunt que vous souhaitez effectuer.

Prix du bien HAI

2 700 000 €

Ce calcul prend en compte des droits d'enregistrement de 7 %.

par mois

Ceci est une simulation, seule votre banque peut vous donner une valeur précise. Nos consultants sont à votre disposition pour vous accompagner.
Être recontacté

Ces biens pourraient aussi vous intéresser

    Vous devez vendre pour acheter ?

    Nos consultants immobiliers se tiennent à votre disposition pour réaliser une estimation de la valeur de votre bien. Toutes nos estimations sont offertes.

    Je fais estimer mon bien

    Un lieu de vie à votre image

    Junot vous fait visiter les quartiers dans lesquels nos agences vous accueillent, et vous présente les spécificités et bonnes adresses.

    Parcourir les quartiers
Je souhaite visiter
Souhaitez-vous vraiment quitter la page ?
Souhaitez-vous vraiment quitter la page ?
Souhaitez-vous vraiment quitter la page ?
Souhaitez-vous vraiment quitter la page ?
Souhaitez-vous vraiment quitter la page ?
Souhaitez-vous vraiment quitter la page ?
Souhaitez-vous vraiment quitter la page ?
Souhaitez-vous vraiment quitter la page ?
Souhaitez-vous vraiment quitter la page ?
Souhaitez-vous vraiment quitter la page ?
Souhaitez-vous vraiment quitter la page ?