• Nouveau

Local
Paris 9e - MAUBEUGE / SQUARE MONTHOLON

710 000 €

Honoraires à la charge du vendeur

Barème des prestations Simuler votre financement

Ce bien vous plaît ?

Faisons un tour d'horizon

Référence de l’annonce : PL3562MARGON

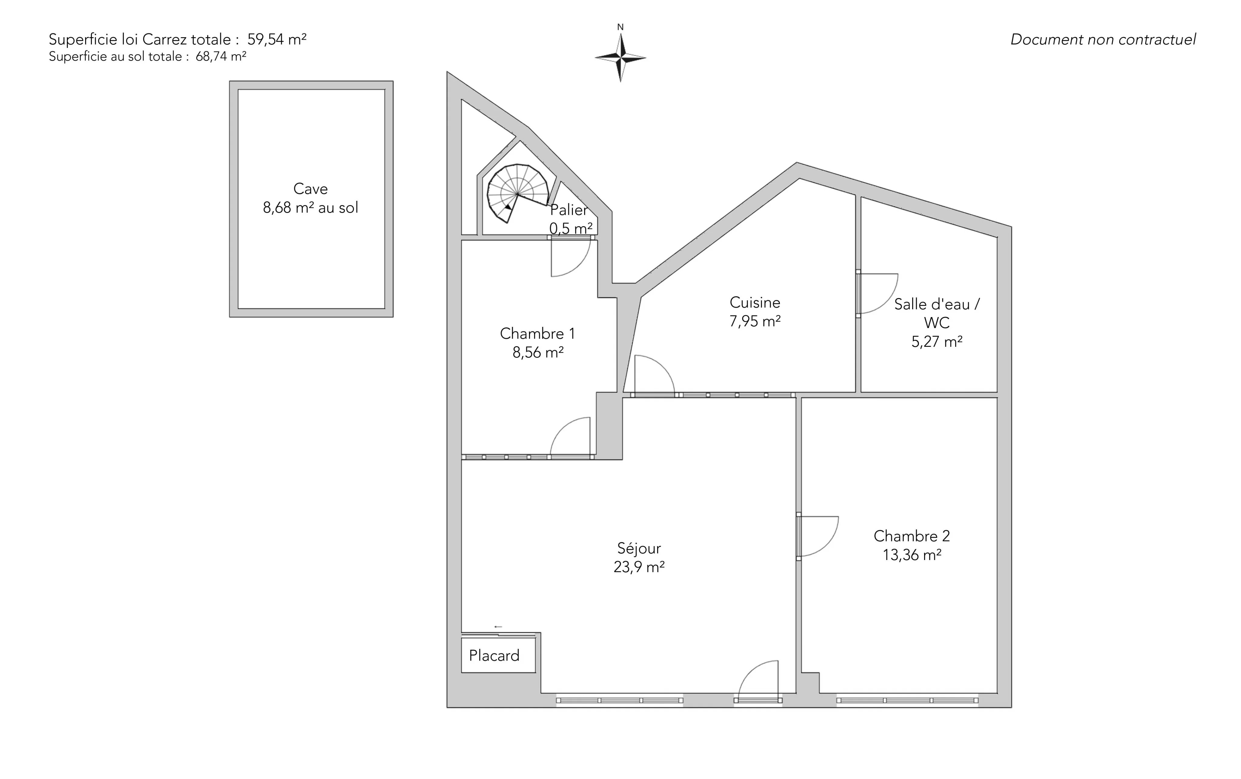
Au sein d'un bel immeuble en pierre de taille, à proximité des commerces et transports ainsi que du Square Montholon, cette superbe profession libérale de 59,54m² loi Carrez et 68,74m² au sol est situé au rez-de-chaussée sur la cour intérieure de l’immeuble.

Il comprend un beau open-space, une cuisine séparée aménagée et équipée, deux beaux bureaux avec rangements, dont une en second jour, une salle de douche avec toilettes et son espace buanderie. Un dressing au sous-sol est accessible via un bureau. Un cellier complète ce bien.

Son plan repensé et optimisé lui confère une atmosphère douce et agréable. Il profite de nombreux aménagements sur mesure, d’une très belle rénovation et de prestations de qualité.

Ce bien saura séduire par son charme, ses beaux volumes et son excellent état général.

  • Habitable : 59,54 m² Total : 68,74 m²
  • 4 pièces
  • suite
  • 1 salle de douche
  • Exposition Sud
  • Neuf

Ce qui nous séduit

  • Calme

On vous en dit plus

Réglementations & éléments financiers

Les informations sur les risques auxquels ce bien est exposé sont disponibles sur le site Géorisques : www.georisques.gouv.fr


Diagnostics

DPE Graph GES Graph

Consommation énergie finale : A - 51 kWh/m²/an.
Montant estimé des dépenses annuelles d’énergie pour un usage standard : entre 620,00 € et 860,00 € /an (abonnement compris).
Prix moyen des énergies indexées au 01/01/2021.


Éléments financiers
Montant moyen annuel de la quote part de charges courantes : 1 736 €

Taxe foncière : 1 193,00 € /an

Détails de l’intérieur & de l’extérieur

Pièce Surface Détail
1x Cellier 8.68 m² Étage : Sous-sol
1x Open space 23.9 m² Étage : Rez-de-chaussée
1x Cuisine 7.95 m² Étage : Rez-de-chaussée
1x Bureau 8.56 m² Étage : Rez-de-chaussée
1x Bureau 13.56 m² Étage : Rez-de-chaussée
1x Salle de douche / toilettes 5.27 m² Étage : Rez-de-chaussée
1x Palier 0.5 m² Étage : Rez-de-jardin

Prestations

☑ Internet
☑ Double vitrage
☑ Digicode

Bâtiment & Copropriété

Bâtiment
  • Construit en : 1900
  • Type : Pierre de taille
  • Nombre d'étages : 6

Copropriété

32 lots d'habitation
Montant moyen annuel de la quote part de charges courantes : 1 736 €
Procédure en cours : Non

Rencontrez votre agence

Simulateur de financement

Calculez le montant des mensualités de votre prêt immobilier correspondant à l'emprunt que vous souhaitez effectuer.

Prix du bien HAI

710 000 €

Ce calcul prend en compte des droits d'enregistrement de 7 %.

par mois

Ceci est une simulation, seule votre banque peut vous donner une valeur précise. Nos consultants sont à votre disposition pour vous accompagner.
Être recontacté

    Vous devez vendre pour acheter ?

    Nos consultants immobiliers se tiennent à votre disposition pour réaliser une estimation de la valeur de votre bien. Toutes nos estimations sont offertes.

    Je fais estimer mon bien

    Un lieu de vie à votre image

    Junot vous fait visiter les quartiers dans lesquels nos agences vous accueillent, et vous présente les spécificités et bonnes adresses.

    Parcourir les quartiers
Je souhaite visiter
Souhaitez-vous vraiment quitter la page ?
Souhaitez-vous vraiment quitter la page ?
Souhaitez-vous vraiment quitter la page ?
Souhaitez-vous vraiment quitter la page ?
Souhaitez-vous vraiment quitter la page ?
Souhaitez-vous vraiment quitter la page ?
Souhaitez-vous vraiment quitter la page ?
Souhaitez-vous vraiment quitter la page ?
Souhaitez-vous vraiment quitter la page ?
Souhaitez-vous vraiment quitter la page ?
Souhaitez-vous vraiment quitter la page ?