Let's take an overview
Ad reference : 1793VHUVER
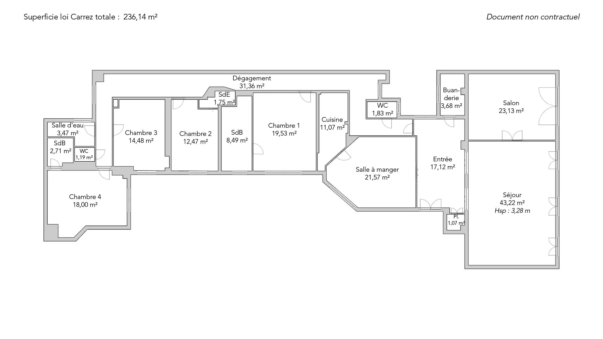
Ideally located between Place du Trocadéro and Rue de Passy, this elegant 236,14sqm loi Carrez apartment is on the third floor of a superb Haussmann building. It features a perfectly optimized floor plan, generous volumes and a functional layout.
On the street side, it features a vast double reception room and a luminous family room. On the courtyard side, the entrance leads to a dining room, a separate kitchen, a master suite and three bedrooms, each with its own shower room.
Period features such as parquet flooring, moldings and fireplaces have been carefully preserved and enhanced by a refined renovation. Numerous built-in cupboards provide additional comfort.
Two cellars complete this exceptional property.
In addition, a large parking space nearby can be purchased.
- Habitable : 2 541,79 Sq Ft
- 7 rooms
- 4 bedrooms
- 2 bathrooms
- 2 shower rooms
- Fireplace
- Orientation East
- Excellent condition
What seduced us
- Highly sought-after address
- Guardian
- Luminous
- Elevator
- Cellar
We say more
Regulations & financial information
Information on the risks to which this property is exposed is available on the Géorisques website. : www.georisques.gouv.fr
| Diagnostics |
|---|
Final energy consumption : E - 272 kWh/m²/an.
Estimated annual energy costs for standard use: between 5 230,00 € and 7 120,00 € /year (including subscription).
Average energy price indexed to 01/01/2021.
| Financial elements |
|---|
Property tax : 5 391,00 € /an
Interior & exterior details
| Room | Surface | Detail |
|---|---|---|
| 1x Cellar | ||
| 1x Cellar | ||
| 1x Living room |
Floor : 3rd Ceiling : 2.9m |
|
| 1x Entrance | 195.8 Sq Ft | Floor : 3rd |
| 1x Stay | 465.22 Sq Ft | Floor : 3rd |
| 1x Living room | 248.97 Sq Ft | Floor : 3rd |
| 1x Dining room | 232.18 Sq Ft | Floor : 3rd |
| 1x Kitchen | 119.16 Sq Ft | Floor : 3rd |
| 1x Laundry room | 39.61 Sq Ft | Floor : 3rd |
| 1x Clearance | 337.56 Sq Ft | Floor : 3rd |
| 3x Bathroom | 19.7 Sq Ft | Floor : 3rd |
| 1x Master bedroom | 210.22 Sq Ft | Floor : 3rd |
| 1x Bathroom | 91.39 Sq Ft | Floor : 3rd |
| 1x Bedroom | 134.23 Sq Ft | Floor : 3rd |
| 1x Bathroom | 18.84 Sq Ft | Floor : 3rd |
| 1x Bedroom | 155.86 Sq Ft | Floor : 3rd |
| 1x Bathroom | 37.35 Sq Ft | Floor : 3rd |
| 1x Bathroom | 12.81 Sq Ft | Floor : 3rd |
| 1x Bedroom | 193.75 Sq Ft | Floor : 3rd |
| 1x Bathroom | 29.17 Sq Ft | Floor : 3rd |
Services
Building & Co-ownership
| Building |
|---|
-
Built in : 1904
-
Quality level : Luxury
| Co-ownership |
|---|
69 housing lots
Average annual amount of the share of current charges : 10 544 €
Procedure in progress : Non
Meet your agency
Simulator financing
Calculate the amount of the monthly payments on your home loan corresponding to the loan you wish to make.
FAI property price
3 500 000 €
€
per month
Do you have to sell to buy?
Our real estate consultants are at your disposal to estimate the value of your property. All our estimates are free of charge.
Estimate my propertyA living space to suit you
Junot takes you on a tour of the neighborhoods in which our agencies welcome you, and presents the specific features and good addresses.
Explore the neighborhoods










