Let's take an overview
Ad reference : 3414MARLAC/2855WAG
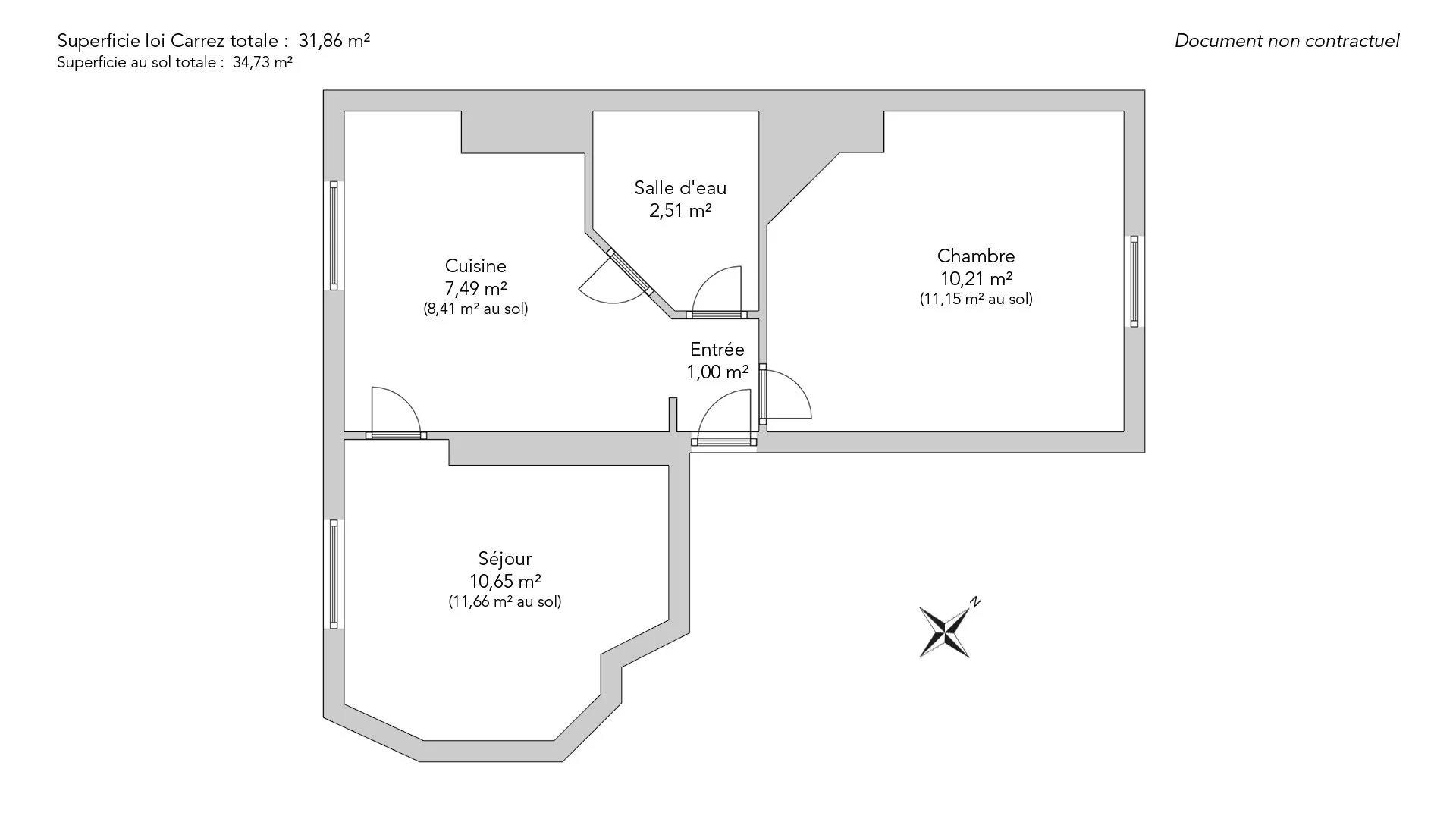
On the seventh floor by staircase of a beautiful stone building, charming three-room apartment of 31.86sqm loi Carrez (34.73sqm on the ground).
It offers lovely views over the rooftops of Paris and comprises an entrance hall with cupboards, a living room, a bedroom, a dining room with kitchen and a shower room with toilet.
You'll love its layout, old-world charm and calm.
EXCLUSIVE
- Habitable : 342,94 Sq Ft Total : 373,83 Sq Ft
- 3 rooms
- 1 bedroom
- 1 shower room
- Floor 7/7
- Fireplace
- Orientation South West
- Good condition
What seduced us
- Last floor
- Guardian
- Luminous
- Calm
- Crossing
- Open view
We say more
Regulations & financial information
Information on the risks to which this property is exposed is available on the Géorisques website. : www.georisques.gouv.fr
| Diagnostics |
|---|
Final energy consumption : a - 369 kWh/m²/an.
Logement à consommation énergétique excessive : classe F
Estimated annual energy costs for standard use: between 960,00 € and 1 310,00 € /year (including subscription).
Average energy price indexed to 01/01/2021.
| Financial elements |
|---|
Interior & exterior details
| Room | Surface | Detail |
|---|---|---|
| 1x Entrance | 10.76 Sq Ft |
Floor : 7th Coating : Parquet |
| 1x Living room | 114.64 Sq Ft |
Floor : 7th Exposure : South West Coating : Parquet |
| 1x Dining room/Kitchen | 80.62 Sq Ft |
Floor : 7th Exposure : South West Coating : Parquet |
| 1x Bedroom | 109.9 Sq Ft |
Floor : 7th Exposure : Northeast Coating : Parquet |
| 1x Shower room/toilet | 27.02 Sq Ft |
Floor : 7th Coating : Floor tile |
Services
Building & Co-ownership
| Building |
|---|
-
Built in : 1881
-
Number of floors : 7
-
Quality level : Normal
| Co-ownership |
|---|
33 housing lots
Average annual amount of the share of current charges : 400 €
Procedure in progress : Non
Meet your agency
Simulator financing
Calculate the amount of the monthly payments on your home loan corresponding to the loan you wish to make.
FAI property price
299 500 €
€
per month
Do you have to sell to buy?
Our real estate consultants are at your disposal to estimate the value of your property. All our estimates are free of charge.
Estimate my propertyA living space to suit you
Junot takes you on a tour of the neighborhoods in which our agencies welcome you, and presents the specific features and good addresses.
Explore the neighborhoods














