Let's take an overview
Ad reference : 2241NEUDEW
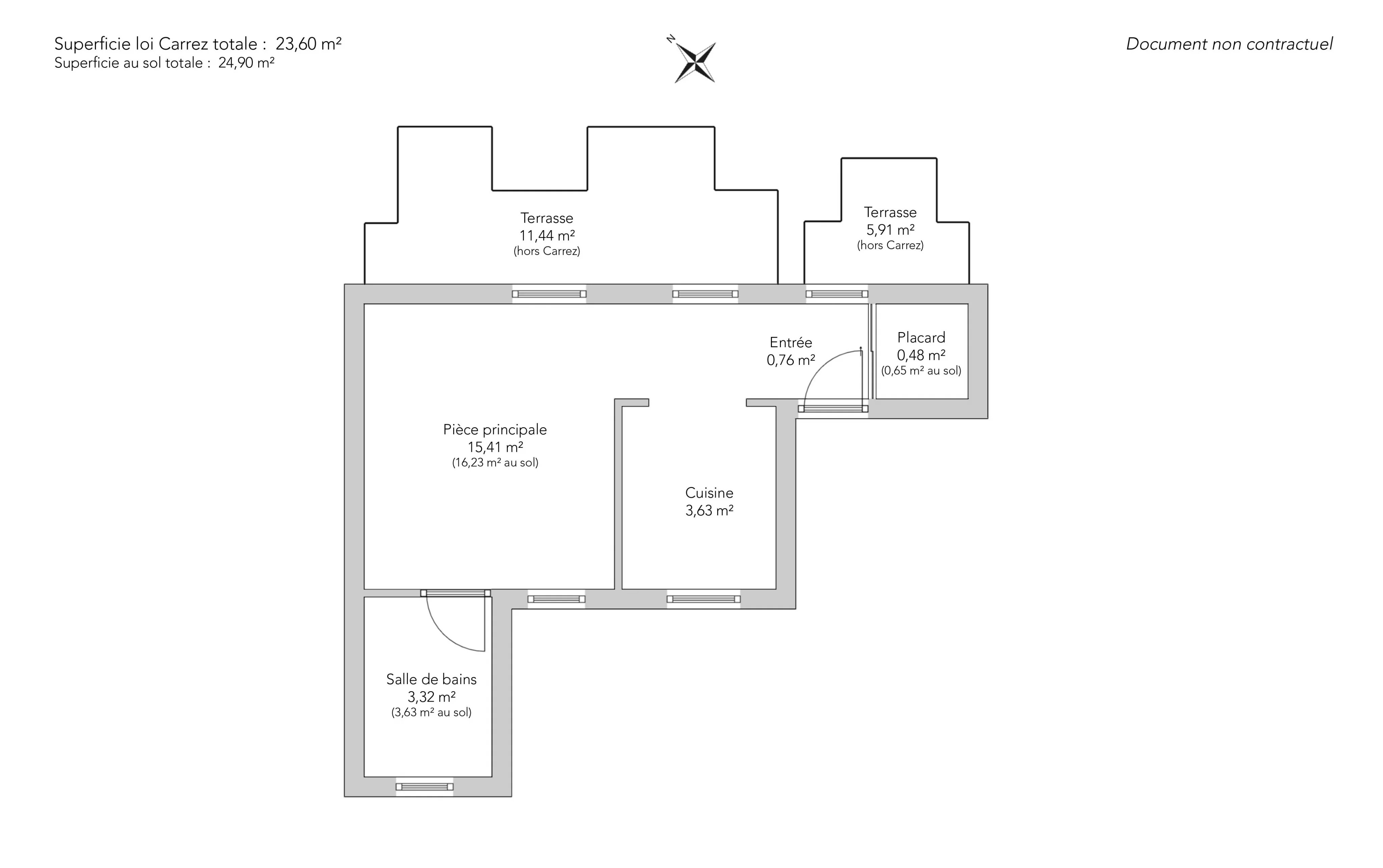
Located on the top floor of a perfectly maintained 1920s building with elevator access, this studio offers an exceptional living environment. With a surface area of 23.60m² loi Carrez, it benefits from two terraces offering a totally unobstructed 180° view.
It features a bright, bright living room in a peaceful setting, part of which has been converted into a fully-equipped kitchen. Plenty of storage space optimizes the layout. A shower room with toilet completes this property.
A particularly sought-after location, just a stone's throw from the Parc de la Planchette, close to the Anatole France metro station, shops and schools.
This property is ideal for a first purchase, a pied-à-terre or an investment.
More photos on request.
EXCLUSIVE.
- Habitable : 254,03 Sq Ft Total : 268,02 Sq Ft
- 1 room
- suite
- 1 shower room
- Floor 8/8
- Orientation Northeast
- Good condition
What seduced us
- Exceptional view
- Balcony/Terrace
- Last floor
- Luminous
- Calm
- Crossing
- Elevator
- Open view
We say more
Regulations & financial information
Information on the risks to which this property is exposed is available on the Géorisques website. : www.georisques.gouv.fr
| Diagnostics |
|---|
Final energy consumption : E - 366 kWh/m²/an.
Logement à consommation énergétique excessive : classe F
Estimated annual energy costs for standard use: between 510,00 € and 700,00 € /year (including subscription).
Average energy price indexed to 01/01/2021.
| Financial elements |
|---|
Property tax : 1 100,00 € /an
Interior & exterior details
| Room | Surface | Detail |
|---|---|---|
| 1x Entrance | 8.18 Sq Ft | |
| 1x Living room/kitchen | 204.84 Sq Ft | |
| 1x Shower room/toilet | 35.74 Sq Ft | |
| 2x Terrace | 193.75 Sq Ft |
Services
Building & Co-ownership
| Building |
|---|
-
Built in : 1920
-
Type : cut stone
-
Number of floors : 8
-
Quality level : Normal
| Co-ownership |
|---|
Average annual amount of the share of current charges : 2 340 €
Procedure in progress : Non
Meet your agency
Simulator financing
Calculate the amount of the monthly payments on your home loan corresponding to the loan you wish to make.
FAI property price
345 000 €
€
per month
Do you have to sell to buy?
Our real estate consultants are at your disposal to estimate the value of your property. All our estimates are free of charge.
Estimate my propertyA living space to suit you
Junot takes you on a tour of the neighborhoods in which our agencies welcome you, and presents the specific features and good addresses.
Explore the neighborhoods














