Let's take an overview
Ad reference : 2894WAGBER
Boulevard Malesherbes.
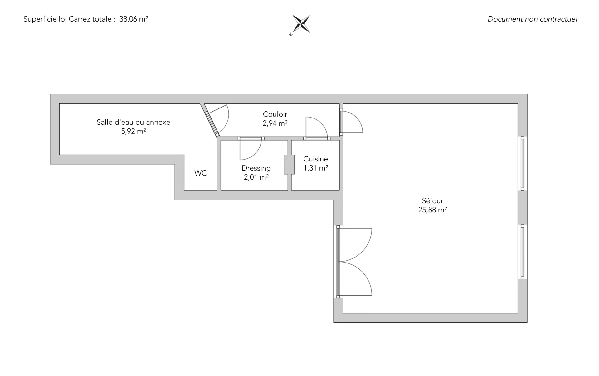
In a beautiful old stone building with a live-in janitor, this 38.06sqm Carrez apartment is located on the first floor facing the street.
The entrance hall leads to a magnificent room with high ceilings and south-west exposure, a separate kitchen, a separate room, a shower room and toilet.
The studio boasts old-world charm with parquet flooring, moldings and a fireplace.
A large 10sqm cellar completes this property.
Ideal for professionals at an attractive address.
- Habitable : 409,67 Sq Ft
- 1 room
- suite
- 1 shower room
- Orientation South West
- Good condition
What seduced us
- Highly sought-after address
- Guardian
- Luminous
- Elevator
- Cellar
We say more
Regulations & financial information
Information on the risks to which this property is exposed is available on the Géorisques website. : www.georisques.gouv.fr
| Diagnostics |
|---|
Final energy consumption : a - 361 kWh/m²/an.
Logement à consommation énergétique excessive : classe F
Estimated annual energy costs for standard use: between 1 340,00 € and 1 870,00 € /year (including subscription).
Average energy price indexed to 01/01/2023.
| Financial elements |
|---|
Property tax : 1 240,00 € /an
Interior & exterior details
| Room | Surface | Detail |
|---|---|---|
| 1x Cellar | Floor : Basement | |
| 1x Stay | 278.57 Sq Ft |
Floor : Ground floor Ceiling : 3.3m |
| 1x Corridor | 31.65 Sq Ft |
Floor : Ground floor Ceiling : 3.3m |
| 1x Kitchen | 14.1 Sq Ft |
Floor : Ground floor Ceiling : 3.3m |
| 1x Dressing room | 21.64 Sq Ft |
Floor : Ground floor Ceiling : 3.3m |
| 1x Bathroom | 63.72 Sq Ft |
Floor : Ground floor Ceiling : 3.3m |
Services
Building & Co-ownership
| Building |
|---|
-
Built in : 1880
-
Number of floors : 6
| Co-ownership |
|---|
50 housing lots
Average annual amount of the share of current charges : 1 680 €
Procedure in progress : Non
Meet your agency
Simulator financing
Calculate the amount of the monthly payments on your home loan corresponding to the loan you wish to make.
FAI property price
390 000 €
€
per month
Do you have to sell to buy?
Our real estate consultants are at your disposal to estimate the value of your property. All our estimates are free of charge.
Estimate my propertyA living space to suit you
Junot takes you on a tour of the neighborhoods in which our agencies welcome you, and presents the specific features and good addresses.
Explore the neighborhoods













