Let's take an overview
Ad reference : 1892CHMDEP05
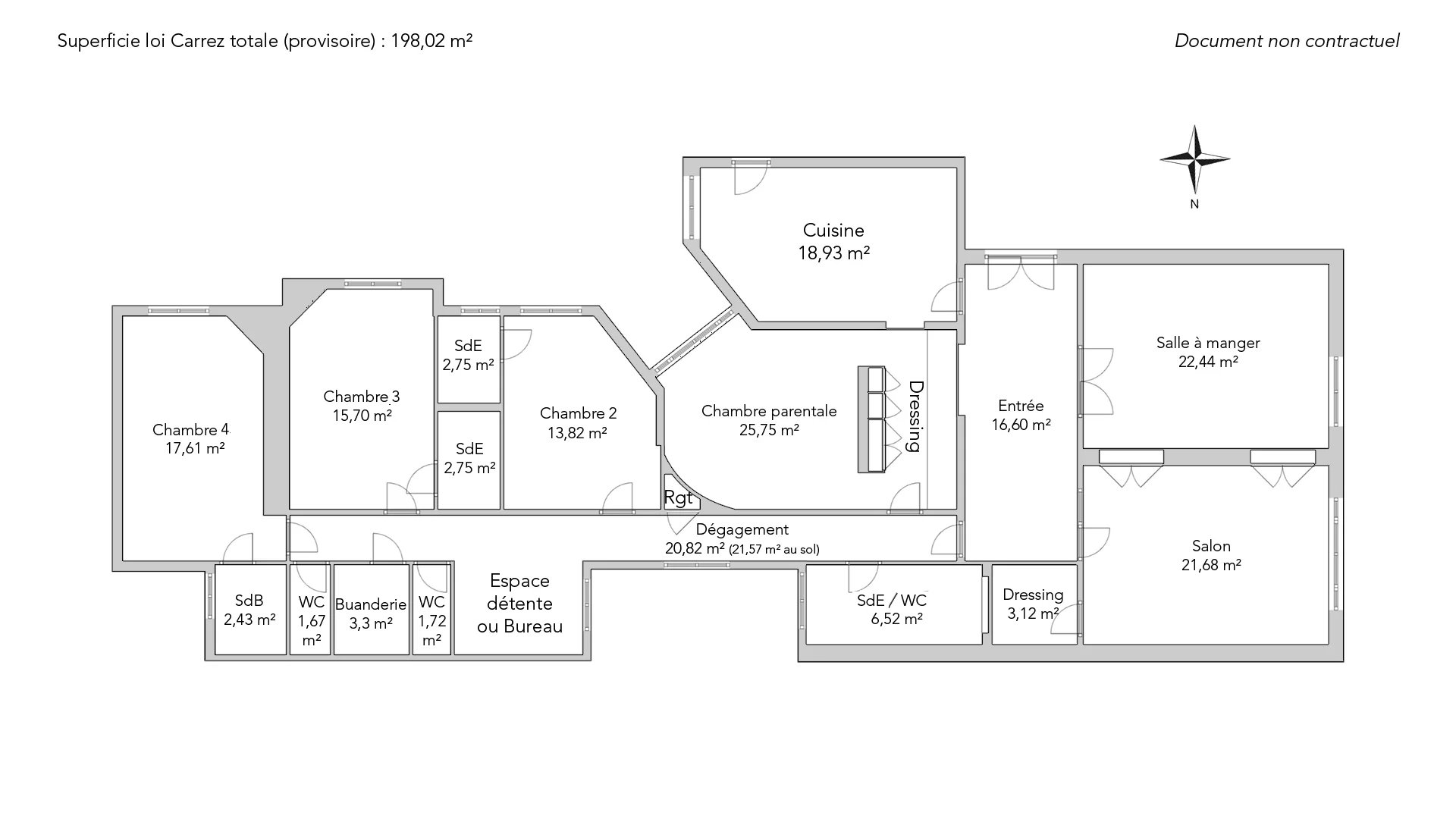
Located in the immediate vicinity of the Luxembourg Gardens, a remarkable 198.02sqm loi Carrez family apartment on the first floor of a beautiful, well-maintained old building.
This property, with its generous volumes and old-world charm, benefits from a harmonious layout and recent renovation.
The entrance gallery leads to a vast double reception room comprising a living room and a dining room, extended by a large separate, fully-equipped kitchen.
The master suite, overlooking the plant-filled courtyard, features a double dressing room and en-suite shower room with toilet, creating a warm and intimate space.
The night area also features three other generously-sized bedrooms, also overlooking the courtyard. The first two each have their own shower room, and the last one has its own bathroom. The hallway features a relaxation or office area, a laundry room and two separate toilets.
Circulation is optimized and spaces perfectly designed for comfortable family living.
Calm, functionality and elegance come together in this rare apartment, ideally located close to shops, transport and schools such as L'Alsacienne, Sévigné and Lavoisier.
A cellar completes this offer.
- Habitable : 2 131,47 Sq Ft
- 6 rooms
- 4 bedrooms
- 1 bathroom
- 3 shower rooms
- Fireplace
- Orientation West
- Excellent condition
What seduced us
- Guardian
- Elevator
- Cellar
We say more
Regulations & financial information
Information on the risks to which this property is exposed is available on the Géorisques website. : www.georisques.gouv.fr
| Diagnostics |
|---|
Final energy consumption : a - 234 kWh/m²/an.
Estimated annual energy costs for standard use: between 4 200,00 € and 5 730,00 € /year (including subscription).
Average energy price indexed to 01/01/2023.
| Financial elements |
|---|
Property tax : 3 285,00 € /an
Interior & exterior details
| Room | Surface | Detail |
|---|---|---|
| 1x Cellar | 95.26 Sq Ft | Floor : Basement |
| 1x Gallery | 178.68 Sq Ft | Floor : Ground floor |
| 1x Living room | 241.54 Sq Ft |
Floor : Ground floor Ceiling : 3.2m |
| 1x Stay | 233.36 Sq Ft |
Floor : Ground floor Exposure : West |
| 1x Equipped kitchen | 203.76 Sq Ft | Floor : Ground floor |
| 1x Closet | 4.41 Sq Ft | Floor : Ground floor |
| 1x Clearance | 224.1 Sq Ft | Floor : Ground floor |
| 1x Bathroom | 70.18 Sq Ft | Floor : Ground floor |
| 1x Dressing room | 33.58 Sq Ft | Floor : Ground floor |
| 1x Bathroom | 18.51 Sq Ft | Floor : Ground floor |
| 1x Bedroom | 189.55 Sq Ft | Floor : Ground floor |
| 1x Bathroom | 29.6 Sq Ft | Floor : Ground floor |
| 1x Bedroom | 168.99 Sq Ft | Floor : Ground floor |
| 1x Bathroom | 29.6 Sq Ft | Floor : Ground floor |
| 1x Bedroom | 148.76 Sq Ft | Floor : Ground floor |
| 1x Bathroom | 26.16 Sq Ft | Floor : Ground floor |
| 1x Laundry room | 35.52 Sq Ft | Floor : Ground floor |
| 1x Bathroom | 17.98 Sq Ft | Floor : Ground floor |
| 1x Bedroom | 277.17 Sq Ft | Floor : Ground floor |
Services
Building & Co-ownership
| Building |
|---|
-
Built in : 1913
-
Number of floors : 7
| Co-ownership |
|---|
26 housing lots
Average annual amount of the share of current charges : 7 728 €
Procedure in progress : Non
Meet your agency
Simulator financing
Calculate the amount of the monthly payments on your home loan corresponding to the loan you wish to make.
FAI property price
2 280 000 €
€
per month
Do you have to sell to buy?
Our real estate consultants are at your disposal to estimate the value of your property. All our estimates are free of charge.
Estimate my propertyA living space to suit you
Junot takes you on a tour of the neighborhoods in which our agencies welcome you, and presents the specific features and good addresses.
Explore the neighborhoods











