Apartment
Paris 6e

2 550 000 €

Fees payable by the seller

Fee schedule Simulate your financing

Do you like this property?

Let's take an overview

Ad reference : 248COMGRE

In a highly sought-after address, on the third floor by elevator, this 121 sqm apartment offers great potential after complete renovation.

Its rethinking plan allows imagining beautiful reception volumes with a living room, a dining room, and an open kitchen, as well as three bedrooms, including a possible master suite with dressing room and bathroom.

This property to be completely renovated benefits from a high ceiling and a typical neighborhood setting, with views of the street and/or courtyard depending on the configuration.

A cellar completes this rare property with high potential, ideal for a custom renovation project.

  • Habitable : 1 302,43 Sq Ft
  • 4 rooms
  • 3 bedrooms
  • 1 bathroom
  • Floor 3/6
  • Fireplace
  • Orientation East , West
  • To renovate

What seduced us

  • Highly sought-after address
  • Luminous
  • Calm
  • Crossing
  • Elevator

We say more

Regulations & financial information

Information on the risks to which this property is exposed is available on the Géorisques website. : www.georisques.gouv.fr


Diagnostics

DPE Graph GES Graph

Final energy consumption : a - 164 kWh/m²/an.
Estimated annual energy costs for standard use: between 2 020,00 € and 2 740,00 € /year (including subscription).
Average energy price indexed to 01/01/2021.


Financial elements

Interior & exterior details

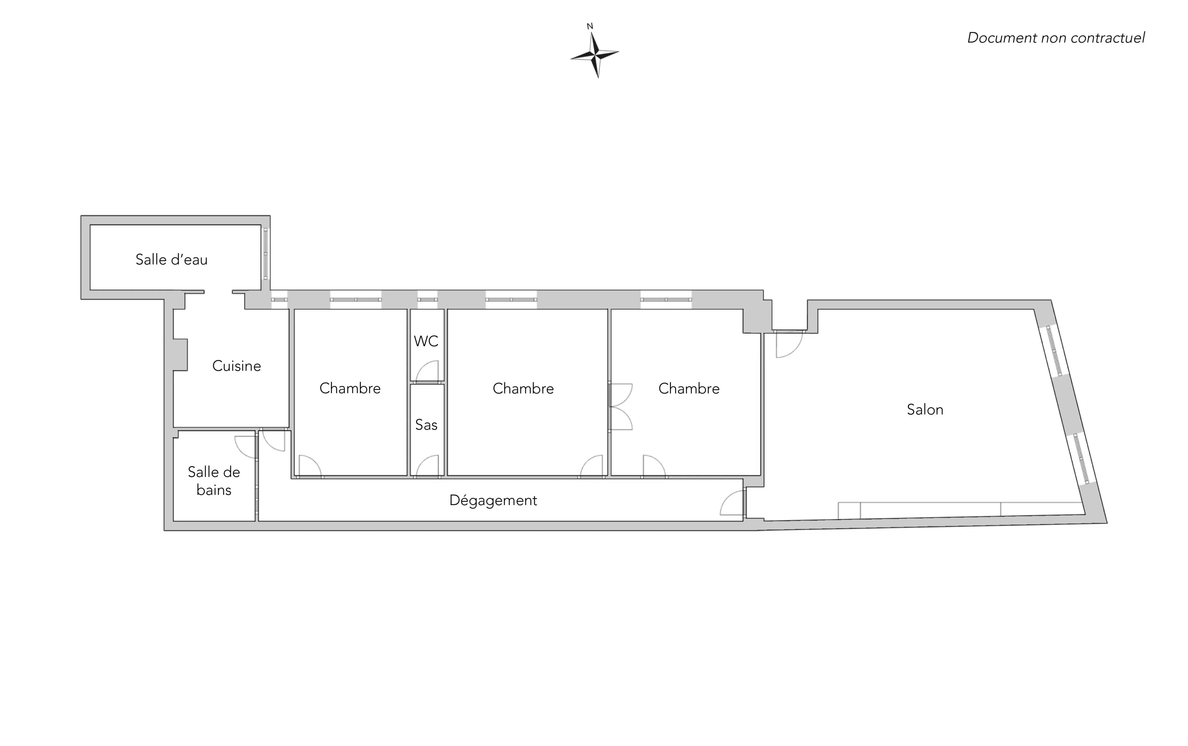
Room Surface Detail
1x Living room 400.63 Sq Ft
1x Corridor 156.4 Sq Ft
1x Bedroom 171.04 Sq Ft
1x Bedroom 186.43 Sq Ft
1x Bedroom 131 Sq Ft
1x Clearance 20.88 Sq Ft
1x Bathroom 16.04 Sq Ft
1x Bathroom 49.3 Sq Ft
1x Dining room 83.42 Sq Ft
1x Closet 9.8 Sq Ft
1x Kitchen 77.72 Sq Ft

Services

☑ Internet
☑ Fireplace
☑ Alarm
☑ Elevator
☑ Double glazing
☑ Intercom
☑ Reinforced door
☑ Digicode
☑ Fire alarm

Building & Co-ownership

Building
  • Built in : 1850
  • Type : Rock
  • Number of floors : 6
  • Quality level : Normal

Co-ownership

23 housing lots
Procedure in progress : Non

Meet your agency

Simulator financing

Calculate the amount of the monthly payments on your home loan corresponding to the loan you wish to make.

FAI property price

2 550 000 €

This calculation takes into account registration fees of 7%.

per month

This is a simulation, only your bank can give you a precise value. Our consultants are at your disposal to support you.
Be contacted

You may also be interested in these properties

    Do you have to sell to buy?

    Our real estate consultants are at your disposal to estimate the value of your property. All our estimates are free of charge.

    Estimate my property

    A living space to suit you

    Junot takes you on a tour of the neighborhoods in which our agencies welcome you, and presents the specific features and good addresses.

    Explore the neighborhoods
I would like to visit
Do you really want to leave the page?
Do you really want to leave the page?
Do you really want to leave the page?
Do you really want to leave the page?
Do you really want to leave the page?
Do you really want to leave the page?
Do you really want to leave the page?
Do you really want to leave the page?
Do you really want to leave the page?
Do you really want to leave the page?
Do you really want to leave the page?