Apartment
Paris 9e - CONSERVATORY

1 560 000 €

Fees payable by the seller

Fee schedule Simulate your financing

Do you like this property?

Let's take an overview

Ad reference : 3452STGRAT

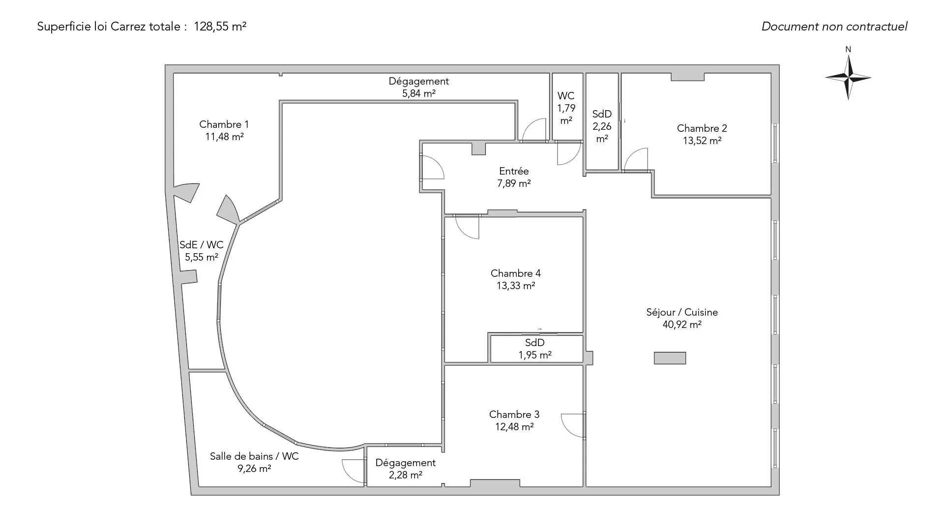
Located on the second floor of a beautiful old building, this 128.55sqm loi Carrez family apartment has been entirely renovated by an architect.

It comprises an entrance hall, a large reception room with balcony, a dining room with fully-furnished and equipped open kitchen, four bedrooms, each with its own shower room, and three toilets.

This apartment will seduce you with its quality fittings and spacious rooms. Brand new, never lived in.
A cellar completes this offer.

  • Habitable : 1 383,70 Sq Ft
  • 6 rooms
  • 4 bedrooms
  • 1 bathroom
  • 3 shower rooms
  • Floor 1/5
  • Orientation East
  • Nine

What seduced us

  • Luminous
  • Calm
  • Elevator
  • Cellar

We say more

Regulations & financial information

Information on the risks to which this property is exposed is available on the Géorisques website. : www.georisques.gouv.fr


Diagnostics

DPE Graph GES Graph

Final energy consumption : C - 122.7 kWh/m²/an.
Estimated annual energy costs for standard use: between 2 740,00 € and 3 720,00 € /year (including subscription).
Average energy price indexed to 01/01/2021.


Financial elements
Average annual amount of the share of current charges : 3 840 €

Property tax : 1 989,00 € /an

Interior & exterior details

Room Surface Detail
1x Cellar
1x Entrance 84.93 Sq Ft Floor : 1st
Coating : Parquet
1x Living room/kitchen 440.46 Sq Ft Floor : 1st
Coating : Parquet
1x Bedroom 123.57 Sq Ft Floor : 1st
Coating : Parquet
1x Shower room/toilet 59.74 Sq Ft Floor : 1st
Coating : Floor tile
1x Bedroom 145.53 Sq Ft Floor : 1st
Coating : Parquet
1x Bathroom 24.33 Sq Ft Floor : 1st
Coating : Floor tile
1x Bedroom 134.33 Sq Ft Floor : 1st
Coating : Parquet
1x Bathroom/toilet 99.67 Sq Ft Floor : 1st
Coating : Floor tile
1x Bedroom 143.48 Sq Ft Floor : 1st
Coating : Parquet
1x Bathroom 20.99 Sq Ft Floor : 1st
Coating : Floor tile
1x Bathroom 19.27 Sq Ft Floor : 1st
Coating : Floor tile
1x Clearance 24.54 Sq Ft Floor : 1st
Coating : Parquet
1x Clearance 62.86 Sq Ft Floor : 1st
Coating : Parquet

Services

☑ Elevator
☑ Double glazing
☑ Intercom
☑ Digicode
☑ Local à vélo

Building & Co-ownership

Building
  • Built in : 1900
  • Number of floors : 5

Co-ownership

23 housing lots
Average annual amount of the share of current charges : 3 840 €
Procedure in progress : Non

Simulator financing

Calculate the amount of the monthly payments on your home loan corresponding to the loan you wish to make.

FAI property price

1 560 000 €

This calculation takes into account registration fees of 7%.

per month

This is a simulation, only your bank can give you a precise value. Our consultants are at your disposal to support you.
Be contacted

You may also be interested in these properties

    Do you have to sell to buy?

    Our real estate consultants are at your disposal to estimate the value of your property. All our estimates are free of charge.

    Estimate my property

    A living space to suit you

    Junot takes you on a tour of the neighborhoods in which our agencies welcome you, and presents the specific features and good addresses.

    Explore the neighborhoods
I would like to visit
Do you really want to leave the page?
Do you really want to leave the page?
Do you really want to leave the page?
Do you really want to leave the page?
Do you really want to leave the page?
Do you really want to leave the page?
Do you really want to leave the page?
Do you really want to leave the page?
Do you really want to leave the page?
Do you really want to leave the page?
Do you really want to leave the page?