Let's take an overview
Ad reference : 1931CHMGIR
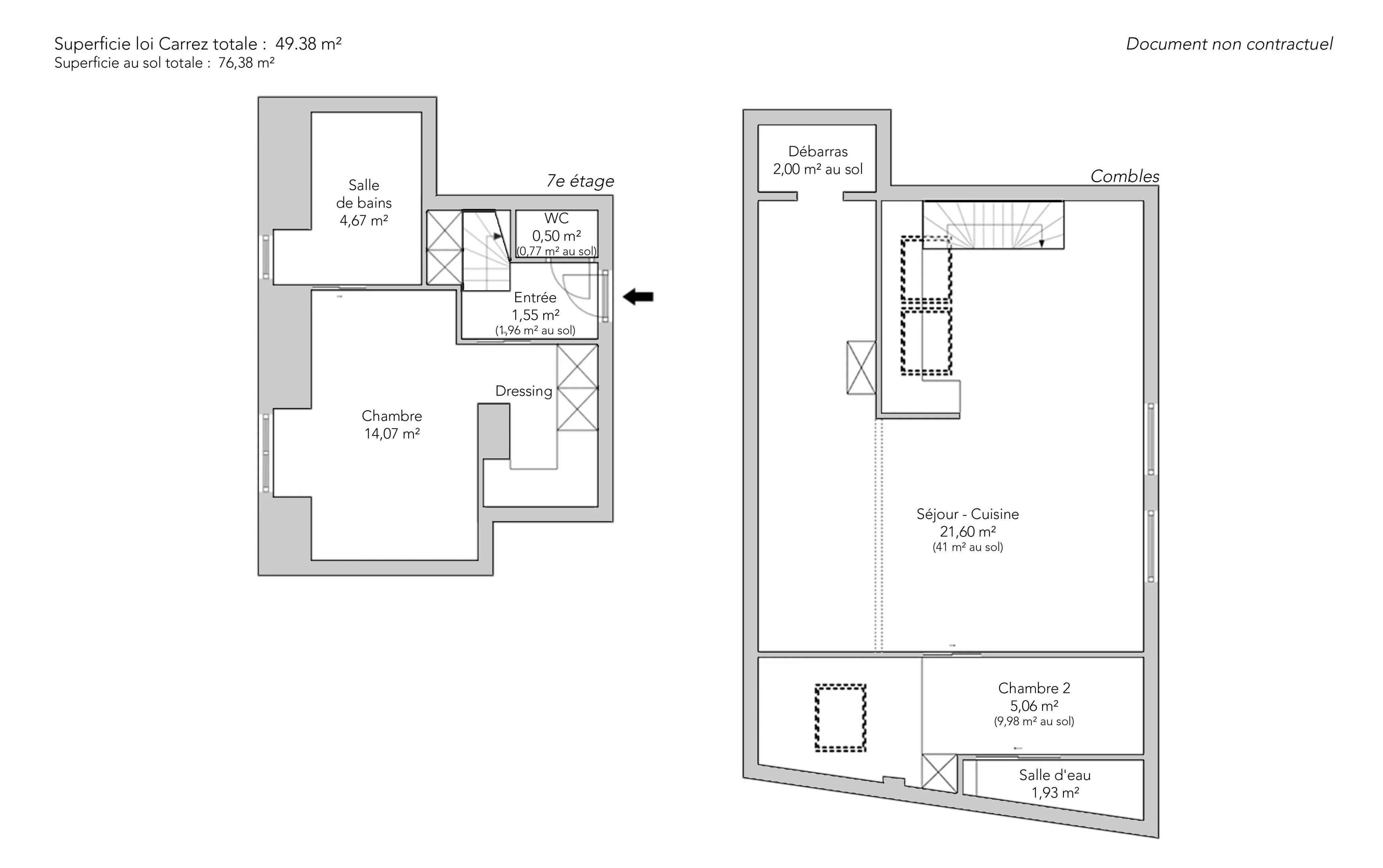
Ideally located on rue du Cherche-Midi, close to transport and shops, in a perfectly maintained 1970 building, this 49.38sqm Carrez and 82.03sqm floor duplex apartment on the top floors by elevator offers spectacular, unobstructed views all the way to the Eiffel Tower. Bathed in light and sheltered from view, it is a true haven of calm above the city.
On the seventh floor, the entrance hall leads to an elegant master suite with a vast dressing room and bathroom. A separate toilet completes this level. On the upper floor, a superb double living room with numerous glass windows welcomes a convivial kitchen with exceptional views. A second bedroom with en-suite shower room and toilet, plus generous storage space, complete the harmonious layout.
A bright, perfectly laid-out apartment with rare, sought-after views.
A cellar accompanies this property, with the possibility of acquiring additional parking.
- Habitable : 531,52 Sq Ft Total : 882,96 Sq Ft
- 3 rooms
- 2 bedrooms
- 1 bathroom
- 1 shower room
- Floor 7/8
- Orientation North, South
- Good condition
What seduced us
- Exceptional view
- Highly sought-after address
- Last floor
- Historical monument view
- Luminous
- Calm
- Crossing
- Car park
- Elevator
- Cellar
- Open view
We say more
Regulations & financial information
Information on the risks to which this property is exposed is available on the Géorisques website. : www.georisques.gouv.fr
| Diagnostics |
|---|
Final energy consumption : D - 191 kWh/m²/an.
Estimated annual energy costs for standard use: between 1 200,00 € and 1 700,00 € /year (including subscription).
Average energy price indexed to 01/01/2021.
| Financial elements |
|---|
Property tax : 996,00 € /an
Interior & exterior details
| Room | Surface | Detail |
|---|---|---|
| 1x Cellar | Floor : Basement | |
| 1x Car park | Floor : Basement | |
| 1x Entrance | 16.68 Sq Ft | Floor : 7th |
| 1x Bathroom | 5.38 Sq Ft | Floor : 7th |
| 1x Master bedroom | 151.45 Sq Ft | Floor : 7th |
| 1x Bathroom | 50.27 Sq Ft | Floor : 7th |
| 1x Living room/kitchen | 232.5 Sq Ft | Floor : 8th |
| 1x Bedroom | 54.47 Sq Ft | Floor : 8th |
| 1x Shower room/toilet | 20.77 Sq Ft | Floor : 8th |
| 1x Clearance | 21.53 Sq Ft | Floor : 8th |
Services
Building & Co-ownership
| Building |
|---|
-
Built in : 1970
-
Type : Concrete
-
Number of floors : 8
-
Quality level : Standing
| Co-ownership |
|---|
61 housing lots
Average annual amount of the share of current charges : 2 796 €
Procedure in progress : Non
Meet your agency
Simulator financing
Calculate the amount of the monthly payments on your home loan corresponding to the loan you wish to make.
FAI property price
1 144 000 €
€
per month
Do you have to sell to buy?
Our real estate consultants are at your disposal to estimate the value of your property. All our estimates are free of charge.
Estimate my propertyA living space to suit you
Junot takes you on a tour of the neighborhoods in which our agencies welcome you, and presents the specific features and good addresses.
Explore the neighborhoods












