Let's take an overview
Ad reference : 2947MONVIQ/3509ABB
Ideally located in the Abbesses district just steps from the shops of the Lepic market.
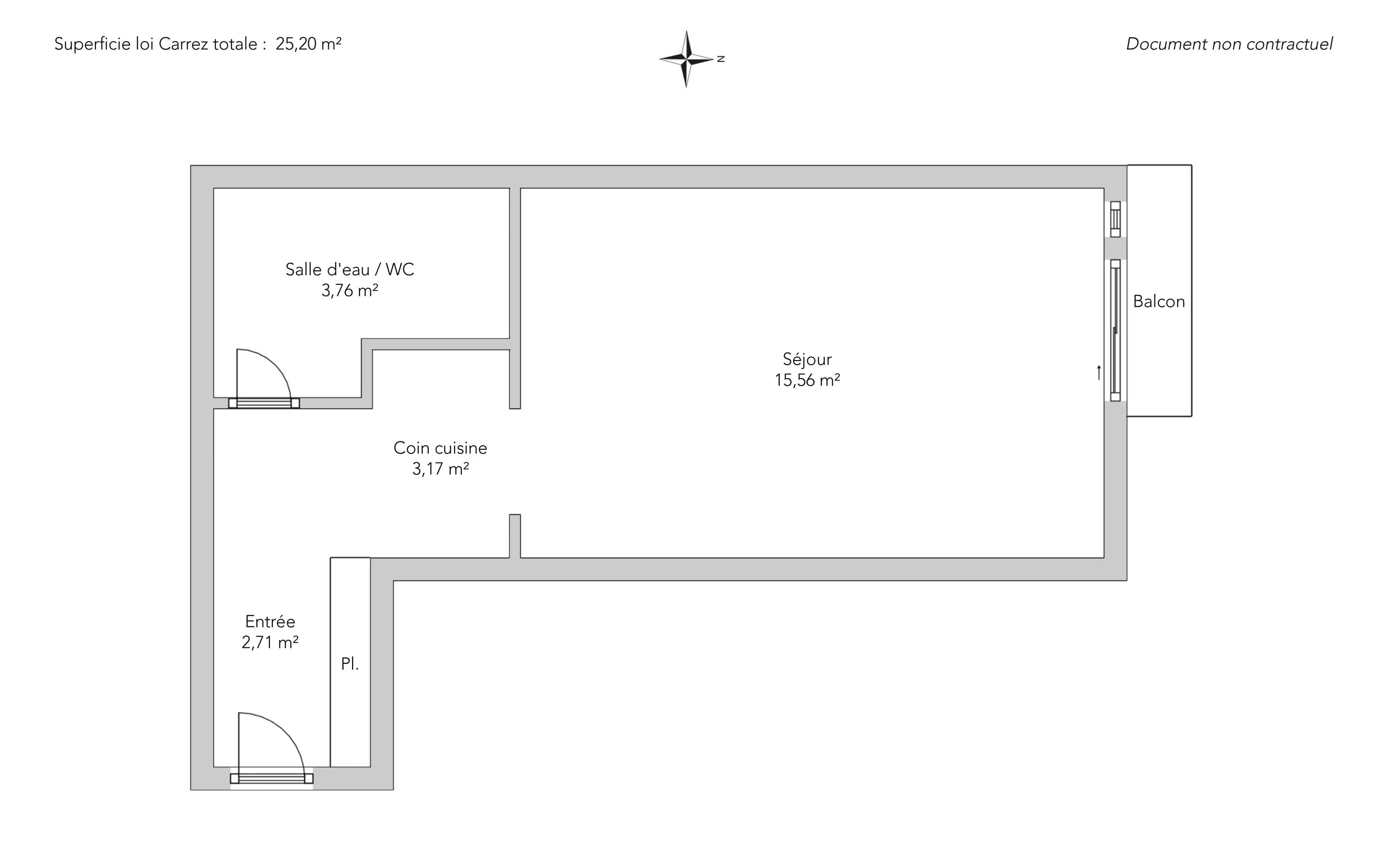
In a well-maintained and secure co-ownership, this 25.20sqm Carrez law studio is on the third floor with a lift.
It includes an entrance with storage, a large living room with a small balcony, an open kitchen, and a shower room with toilets.
EXCLUSIVITY.
- Habitable : 271,25 Sq Ft
- 1 room
- suite
- 2 shower rooms
- Floor 3/7
- Orientation North
- Good condition
What seduced us
- Guardian
- Calm
- Elevator
We say more
Regulations & financial information
Information on the risks to which this property is exposed is available on the Géorisques website. : www.georisques.gouv.fr
| Diagnostics |
|---|
Final energy consumption : a - 227 kWh/m²/an.
Climate class: D - estimated emissions 5 kg CO₂/m²·yr
Estimated annual energy costs for standard use: between 500,00 € and 660,00 € /year (including subscription).
Average energy price indexed to 01/01/2023.
| Financial elements |
|---|
Property tax : 739,00 € /an
Interior & exterior details
| Room | Surface | Detail |
|---|---|---|
| 1x Shower room/toilet | 40.47 Sq Ft | Floor : 3rd |
| 1x Entrance | 29.17 Sq Ft | Floor : 3rd |
| 1x Kitchen | 34.12 Sq Ft | Floor : 3rd |
| 1x Stay | 167.49 Sq Ft | Floor : 3rd |
| 1x Shower room/toilet | 41.01 Sq Ft | Floor : 3rd |
Services
Building & Co-ownership
| Building |
|---|
-
Built in : 1960
-
Type : Rock
-
Number of floors : 7
-
Quality level : Normal
| Co-ownership |
|---|
159 housing lots
Average annual amount of the share of current charges : 1 164 €
Procedure in progress : Non
Meet your agency
Simulator financing
Calculate the amount of the monthly payments on your home loan corresponding to the loan you wish to make.
FAI property price
315 000 €
€
per month
Do you have to sell to buy?
Our real estate consultants are at your disposal to estimate the value of your property. All our estimates are free of charge.
Estimate my propertyA living space to suit you
Junot takes you on a tour of the neighborhoods in which our agencies welcome you, and presents the specific features and good addresses.
Explore the neighborhoods













